簡介
太極宮宮門
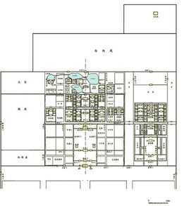
十個宮門
太極宮東、西、南、北四面共開有十個城門。宮城的南面有五個門,中間是承天門,東側是長樂門,次東永春門。承天門之西為廣運門,次西永安門;西面和北面各開有二個城門,西為嘉猷門、通明門,也是掖庭宮的東門;北為玄武門、安禮門;東面通向東宮只開有一個城門,名通訓門,也就是東宮的西門。
東宮南北尚開有四個城門,南面三門,為廣運門、重明門、永春門;北面一門名玄德門。掖庭宮因為宮女所居,故只開東西門,不開南北門,西面門只稱西門,無他名。
正門——承天門
太極宮門上有高大的樓觀,門外左右有東西朝堂,門前有廣三百步的宮廷廣場,南面直對朱雀門、明德門,寬約150米一155米的南北直線大街,位置十分重要。承天門為太極宮的正門,是封建皇帝舉行“外朝”大典之處。如元旦、冬至,設宴陳樂都在此處進行。朝廷遇有赦宥,或除舊布新,或接待萬國朝貢使者、四夷賓客,皇帝也要御承天門聽政。像唐太宗冊李治為皇太子、睿宗即皇帝位、玄宗受吐蕃宰相尚欽藏獻盟書等,都在此舉行大朝會。承天門樓還是皇帝歡宴群臣之處。先天二年(713年)九月己卯,玄宗宴王公百僚於承天門,並向樓下拋撒金錢,讓百官爭拾。
北門——玄武門
太極宮的北門玄武門,亦以其重要的政治、軍事地位稱雄當時。其地居龍首原餘坡,地勢較高,俯視宮城,如在掌握:是宮城北面的重要門戶。唐武德九年(626年)六月四日,秦王李世民誅殺太子李建成、齊王李元吉的“玄武門之變”就發生在這裡。貞觀十二年(638年),太宗李世民又下令,於玄武門置左右屯營,以諸衛將軍領之,其兵名之飛騎,後經不斷擴充,從百騎、千騎到萬騎,武則天垂拱元年改為左右羽林軍,因此,這裡成了中央禁軍的屯防重地,也就成了歷次宮廷政變的策源地。神龍元年,張柬之翦除張易之兄弟、景龍三年(709年)太子李重俊剪除武三思、唐隆元年(710年)臨淄王李隆基翦除韋後等三次宮廷政變均發生在這裡,這與左右羽林軍的布設以及爭奪禁軍主力的較量有很大的關係。當然,在平靜之時這裡仍然是皇帝舉行盛宴、歌舞昇平的重要場所。
貞觀十四年(640年),太宗曾於玄武門宴群臣及河源王諾曷缽,“奏倡優百戲之樂”;唐中宗景龍三年(709年)二月己丑,中宗登玄武門樓觀宮女分朋拔河為戲,並“遣宮女為市肆,鬻賣眾物,令宰臣及公卿為商賈,與之交易,因為忿爭,言辭蝟褻。上與後觀之,以為笑樂”。
殿閣
太極宮宮內布局也非常講究,嚴格按照古代宮室建築原則執行。宮內主體建築採用“前朝後寢”的原則,以朱明門、肅章門、虔化門等宮院牆門為界,把宮內劃分為“前朝”和“內廷”前後兩個部分。朱明門、虔化門以外屬於“前朝”部分,以內則為“內廷”部分。“前朝”部分又按照《周禮》“三朝制度”進行布局。
外朝——承天門
承天門及東西兩殿為外朝,是“舉大典,詢眾庶之處”。
中朝——太極殿
以太極殿為中朝,是皇帝主要聽政視朝之處,每逢朔(初一)、望(十五)之日,皇帝均臨此殿會見群臣,視朝聽政。另外,皇帝登基,冊封皇后、太子、諸王、公主大典及宴請朝貢使節等也多在此殿舉行。高宗以後,皇帝多移居大明宮和興慶宮,但每遇登基或殯葬告祭等大禮,如德宗、順宗、憲宗、敬宗即位,代宗、德宗葬儀仍移於此殿進行,它在長安三內諸殿中地位最尊。為行事方便,在太極殿的東側設有門下內省、宏文館、史館,西側設有中書內省、舍人院,為宰相和皇帝近臣辦公的處所,以備皇帝隨時顧問和根據皇帝旨意撰寫文書詔令;
內朝——兩儀殿
太極宮太極殿後為朱明門,其北為兩儀門,朱明門與兩儀門之間的橫街即是朝、寢之界。寢區內又被一條橫街(永巷)分為前後兩排宮殿,由於這部分是寢宮,防衛更加嚴密,永巷中加設了四道橫門:東橫門、西橫門、日華門、月華門。永巷南是皇帝生活區,即“帝寢”,永巷北師皇后妃子居住區,即“後寢”,絕對禁止外臣進入。前排正中是兩儀殿建築群,橫街以北,正中是甘露門,門內是寢殿甘露殿。甘露殿左右有神龍殿和安仁殿,再向兩側還有大吉殿、百福殿、承慶殿,諸殿各有院落。
寢區以北是後苑,苑中西部有幾個大池,稱東、西、南海池。圍繞三池布置有一些園林性質的殿宇,西北隅還有一組山池院,並設有千步廊等建築。東部建有凌煙閣、功臣閣、紫雲閣、凝雲閣等一系列樓閣,凌煙閣內壁繪有唐太宗為功臣畫的畫像,以表達對開國功臣的追思。
全宮在整個建築布局上仍然與整個長安城總體布局相一致,以中軸部位突出主要建築,承天門、太極殿、兩儀殿南北排列,處於全宮的中部,其他殿院與閣門分布於兩側,左右對稱。這就從建築布局手法上,突出了這些象徵封建皇權統治的殿門的重要地位。
影響
太極宮是都城長安第一處大的宮殿群,有殿、閣、亭、館三四十所,加上東宮尚有殿閣宮院二十多所,整個構成都城長安一組富麗堂皇的漢族宮殿建築。其中分布著許多著名的宮殿建築,太極殿、兩儀殿、承慶殿、武德殿、甘露殿、凌煙閣等等。除主要政殿太極殿、兩儀殿之外,甘露殿是皇帝在內宮讀書之處,也是第三大殿。武德殿,在隋代即較有名,它與東宮鄰接,隋文帝廢太子勇為庶人即在此殿宣詔,唐初李淵賜李世民居承乾殿後,又賜李元吉居武德殿,這更方便了他與太子李建成的溝通往來。先天元年(712年)李隆基即位之初,還曾在此殿聽政,可見地位也不一般。’ 凌煙閣因功臣圖形於其中而有名,它是功臣的畫像閣。貞觀十七年(643年),太宗曾為長孫無忌、杜如晦、魏徵等二十四人圖形,表彰其政績以及輔弼之功。這就是所謂的“凌煙 閣二十四功臣”。其實唐代圖形功臣於此閣共有三次,除貞觀年間的一次外,代宗廣德元年(763年)七月,又為功臣郭子儀、李晟等畫像。到德宗貞元五年(789年)九月,總匯前代功臣褚遂良、李光弼等二十七人圖像,在前代的基礎上進行了新的遴選。第三次是在宣宗大中二年(848年)七月,繪唐初以來“堪上凌煙閣功臣”王蛙如、岑文本、李峴、馬周、馬遂等三十七人圖形,“立閣圖形,榮號凌煙”。圖形凌煙閣成為唐朝褒獎功臣的一種重要形式。在陝西省麟遊縣文化館還藏有宋人游師雄摹刻的唐凌煙閣功臣畫像殘石,從中可以看出當年大唐帝國的許多榮登此閣的名臣。
附屬建築
太極宮的東西兩側分別為東宮與掖庭宮。兩宮面積均小於太極宮,為縱長方形結構,建於隋初。
掖庭宮
掖庭宮是宮女居住和犯罪官僚家屬婦女配沒人宮勞動之處。大致分三個區域,中部為宮女居住區,其中也包括犯罪官僚家屬婦女配沒人宮勞動之處。掖庭宮的北部為太倉,西南部為內侍省所在地。內侍省是宦官機構,所謂“內侍奉,宣制令”q),掌管宮中的一切大事小情。1978年5月,曾在西安城內西五台以西,距今西安西城牆240米處發現了唐“光化二年(899年)歲次己未六月癸亥朔二十七日己丑建”的《大唐重修內侍省之碑》,位置恰在原掖庭宮的西南,從而證明這裡確曾是內侍省無疑。
東宮
東宮為太子居住之處,亦稱春宮、儲宮。從隋太子楊勇、楊廣到唐高祖時原太子李建成、後太子李世民及太宗時太子李治等都居住在這裡,從玄宗以後,皇太子“但居於乘輿所幸別院”,才往往隨其父皇住在皇宮內別院。
明德殿
東宮中的最主要宮殿為明德殿。隋時稱嘉德殿,唐初更名為顯德殿。後因中宗李顯為太子住東宮,避其名諱,改稱明德殿。它為東宮第一正殿,是皇太子接見群臣和舉行重大政治活動的地方。武德九年(626年)八月九日,太子李世民在高祖李淵遜位後在此殿舉行登基儀式。當時太宗即在此殿聽政,一直到貞觀三年(629年)四月,太上皇李淵由太極宮遷居大安宮後,太宗李世民才去太極宮中太極殿聽政。另外,東宮中的崇文館也是一處非常重要的政殿。它建於太宗貞觀十三年(639年),本為皇太子讀書之處。唐代在此設“崇賢館學士”,以侍講宮中。崇文館又是唐代的貴族學校。唐制規定:“崇文館生二十人,以皇族中緦麻以上親,皇太后、皇后大功以上親,宰相及散官一品功臣,身食實封者,京官職事從三品中書黃門侍郎之子為之”。另外,崇文館也是宮內秘籍圖書校理之處,是一個大型的皇家圖書館。
遺址現狀
唐太極宮遺址的地面建築大部分已經被的西安城城建所疊壓。留存在地面的一些遺蹟最著名的是西安蓮湖路南邊的西五台雲居寺,這座寺廟是修建在唐太極宮南面宮牆遺址之上。西安蓮湖公園的承天閣修建在太極宮正南門承天門的遺址之上。西安光學儀器廠和西安鐵路職業技術學校西校區內的唐城牆遺蹟也應該是唐太極宮北牆遺蹟,宮殿遺蹟早已蕩然無存。
中國古代皇宮
| 名稱 | 朝代 | 位置 | 備註說明 |
|---|---|---|---|
| 阿房宮 | 秦朝 | 秦鹹陽城 | 是秦始皇在統一六國之後於渭河以南修建的豪華宮殿。 |
| 長樂宮 | 西漢 | 漢長安城 | 又稱東宮,與未央宮、建章宮同為漢代三宮,意為“長久快樂”。 |
| 未央宮 | 西漢 | 漢時稱西宮,是中國歷史上存在時間最長的宮殿。 | |
| 建章宮 | 西漢 | 漢武帝在位時為顯示大漢的國威和富足所建,規模比未央宮還大。 | |
| 東漢南北宮 | 東漢 | 漢洛陽城 | |
| 太極宮 | 唐朝 | 唐長安城 | 隋稱大興宮,是初唐政事的中心,貞觀之治的政令皆由此發出。 |
| 大明宮 | 唐朝 | 唐朝帝王大都居住在這裡,被作為國家統治中心歷時二百餘年。 | |
| 興慶宮 | 唐朝 | 唐長安城三大宮殿群之一,總面積是北京故宮面積的近兩倍。 | |
| 北宋皇宮遺址 | 北宋 | 汴京 | 原為唐宣武節度使衙,後梁建為宮城,宋太祖即位不久後擴建。 |
| 南宋皇宮遺址 | 南宋 | 臨安 | 在北宋杭州州治基礎擴建而成的,當時也被稱為“大內”。 |
| 隆福宮 | 元朝 | 元大都 | |
| 興聖宮 | 元朝 | ||
| 南京明故宮 | 明朝 | 南京 | 是北京故宮的藍本,是南京歷史上第一個全國統一王朝的皇宮。 |
| 紫禁城 | 明朝、清朝 | 北京 | 明、清兩代的皇宮,也是當今世界上現存規模最大的古代宮殿群。 |
| 瀋陽故宮 | 清朝 | 瀋陽 | 又稱盛京皇宮,是滿族人建立清政權的早期皇宮。 |

