發展沿革
研製背景
1941年10月30日在宿毛灣公開測試中的大和號 自20世紀30年代初葉起,已經躋身於世界海軍強國之列的日本帝國海軍開始在太平洋地區向美、英挑戰。1934年1月,日本修改帝國國防方針時,正式把美國列為假想敵。1935年,倫敦海軍會議召開,日本提出軍備建設的平等要求,主張制定世界各國共同的最大限度的擁有量,以“保證相互安全”,但遭到其他國家的反對。1936年,日本拒絕在新的倫敦海軍條約上籤字,並宣布退出裁軍會議。1936年6月,日本修改國防方針,明確提出對美截擊戰略,即日本帝國海軍在西太平洋地區對美作戰,開戰初期即須消滅美遠東海軍主力,摧毀或者奪取美海軍賴以活動的基地,再以小笠原群島以西海域作為預定海上決戰戰場,截擊並殲滅由美國本土前來增援的美軍艦艇編隊。
大和號電腦三維模型 由於日本是一個工業基礎相對薄弱,資源匱乏的國家,日本在戰艦數量上根本不可能與工業基礎雄厚、資源豐富的美國競爭,更無法在戰艦的數量方面,同美國海軍抗衡。日本按照其明治時代以來“數量不足,質量彌補”的方針,確立以單艘戰列艦的威力優勢來抵消對方的數量優勢的發展戰略。日本海軍預計,美國海軍建造的戰列艦艦艇寬度由於巴拿馬條約的限制,將搭載406毫米(16英寸)口徑艦炮。而日本早在1916年就試製過460毫米口徑艦炮,1920年又製造過480毫米口徑火炮,在大口徑火炮製造上具有一定的經驗。在這種思想指導和現實鼓舞下,日本海軍開始準備建造搭載460毫米口徑主炮的超級戰列艦,並組建以戰列艦為核心的海上打擊力量。
建造計畫
大和號透視圖 1934年10月,日本海軍軍令部對海軍艦政本部正式下達了新式戰列艦的設計任務,要求裝備460毫米口徑主炮8門以上,155毫米口徑副炮12門(四座三聯裝),或者200毫米副炮8門(四座雙聯裝),最高航速30節以上,艦體防禦裝甲能夠承受自身主炮在20000-35000米距離上的打擊。新艦由艦政本部第四部福田啟二大佐負責整體設計,由平賀讓造船中將負責技術指導,從1935年3月10日至1936年7月20日,先後提出23個設計方案(A-140—A-140F5)。最初的A-140方案,新戰列艦正常排水量69,500噸,長294米,主機輸出功率20萬軸馬力,最高航速31節,續航力8,000海里/18節,新艦的3座3聯裝460毫米口徑主炮和英國納爾遜級戰列艦一樣,集中配置在前甲板。日本海軍最終採用了兩座三聯裝主炮塔配置在前甲板,1座三聯裝主炮塔配置在後甲板的設計。被認為是最佳的戰列艦主炮配置方式。在新艦的各種設計方案中,動力裝置計畫要使用蒸汽輪機和柴油機並用的混合動力。由於日本海軍安裝了柴油機的大鯨號潛艇母艦故障率較高,最後放棄了這一計畫,在最終的A-140F5方案中只採用蒸汽輪機。
1941年10月30日在宿毛灣公開測試中的大和號 1937年,日本海軍制定了軍備補充計畫(即"03艦艇補充計畫",又稱03計畫),正式確定建造2艘A-140F5號方案大和級戰列艦,這就是“大和”號和“武藏”號(當時都未正式命名,只是被稱為1號艦和2號艦)。日本造船水平自明治維新以來不斷提高,到了昭和時代,日本已經成為世界造船大國之一,但是日本島國資源貧乏,科技實力與英美仍存在相當的差距,而且還處在戰爭條件下(1937年7月7日日本發動了全面侵華戰爭),日本仍然不惜代價建造空前強大的戰列艦。日本耗費巨資為其造船工業增添大量新式設備,從德國購進了15000噸水壓機(一說16000噸)以及3台70噸酸性平爐(據資料,這些設備一共花了1000萬美元),從而能夠製造出包括650毫米厚裝甲鋼板(大和艦主炮炮塔使用)在內的大型鍛造件。並且特意將吳海軍工廠的船塢加深了1米。在大和艦的整個建造過程中,日本人前後耗資1500億日元(戰後價格),平均每噸重量就需要200萬日元。
大和號戰列艦使用的炮彈 在製造主炮時,日本遇到的一個重大難題便是如何保證高膛壓條件下主炮炮身能具備足夠的強度。1920年試製的480毫米艦炮便是由於強度不足而在試射中報廢,460毫米艦炮在減裝藥的情況下勉強通過試射。為此,吳海軍工廠艦炮部採用了新的火炮自緊技術。通過內壓增強炮身的強度。用這樣的方法製造出來的炮身在試射中取得了成功,其身管壽命達200-250發。
建造過程
大和的建造 1937年11月4日,1號艦開始在吳海軍工廠動工建造。
1939年5月-10月,鍋爐安裝完畢,9月-11月,主機安裝完畢。
1940年7月15日,1號艦被命名為“大和”。
1940年8月8日,大和號下水。建造中的大和為了保密,造船廠執行著嚴謹的機密管制,在能俯視造船廠的地方都加上圍板。大和艦下水後開始舾裝工程。
1941年7月,該艦主炮已經安裝完畢。
1941年10月16日,大和艦開始試航。
1941年10月22日,在宿毛灣以153,553軸馬力的主機輸出功率達到了27.46節的航行速度,試航獲得成功。
1941年11月1日,大和艦首任艦長高柳儀八海軍大佐到任。
1941年12月7日,大和艦進行了首次主炮射擊(主炮開火的聲音連海邊城市裡的居民都聽到了)。同時,一支以6艘航空母艦為核心的日本艦隊正在向美國夏威夷進發,在12月8日凌晨(當地時間為12月7日),這6艘航空母艦上起飛的艦載機偷襲了美國太平洋艦隊的基地珍珠港。太平洋戰爭爆發。在這一天,大和艦試航結束。
1941年12月16日,大和艦竣工,入吳鎮守府船籍,被編入日本聯合艦隊。
艦名命名
1905年頒布的《日本海軍艦艇命名辦法》規定:戰列艦應以古國名(“國”是古日本地方行政單位)命名。“大和”的正式稱呼是“軍艦大和”,艦名“大和”的由來是以古代日本畿內五國(現稱為近畿地區)之一的大和國(現稱為奈良縣)來命名。使用日本的中心地及代名詞“大和”作為艦名,而大和也是日本人對自身民族的稱呼,可知日本海軍對該艦期待的程度。
技術特點
艦體設計
艦首球形 艦首的最大特點是呈球形,這種球狀艦首處於水線下約3米的地方。借鑑1935年法國建造的8萬噸級高速郵輪“諾曼第”號。建成後,經過試航也證明這種艦首具有明顯的優越性。球狀艦首內裝有水下聽音器,與當前的艦首聲納頗有些相似之處。大和號因採用了這種新穎的艦首,水線處約減少3米的長度,排水量節省30噸左右。那時,除日海軍的“翔鶴”型航母、“阿賀野”型輕巡洋艦採用了些種艦首外,美國海軍的衣阿華級戰列艦也採用了這樣的艦首。艦首內藏零號水聲偵聽器。
設計上特色之一就是其最上甲板從2號主炮塔基座|、107號肋骨的位置起向下彎曲,形成一個斜坡,從正面看去時尤其明顯。大和坂,究其原因是出於艦身輕量化和降低艦身前部重心的考慮。
大和坂 全艦重量分配如下:船殼20,212噸,裝甲21,266噸,防禦板1,629噸,武器系統11,611噸,主機設備5,300噸,舾裝1,756噸,固定設備417噸,非固定設備641噸,魚雷75噸(據認為大和攜帶6-10條610毫米直徑魚雷,但該艦沒有魚雷發射管,6-10條魚雷也沒有75噸重),導航,光學設備95噸,電力設備1,108噸,飛機111噸,鍋爐水297噸,預備食用水212噸,重油4,210噸,潤滑油61噸,輕質油48噸,合計重量69,100噸(正常排水量)。
動力系統
大和艦安裝4座蒸汽輪機,蒸汽壓力25千克/平方厘米,蒸汽溫度325度,最高輸出功率153,553軸馬力,最高速27.46節(試航狀態),最大續航力7,200海里/16節(最大重油裝載量6300噸)。大和艦還裝有8座發電機,總功率為4,800千瓦。大和艦動力系統的效率甚至都比不上日本翔鶴級航空母艦採用的主機。但該艦達到了設計所要求的速度。
艦橋
艦橋3D示意圖 大和號從設計段階就開始考慮如何完善司令部施設,大和號有2個艦橋,在煙囪之前的艦橋,是全艦的戰鬥指揮中樞。大和號一改大型戰鬥艦艇艦橋過大的情況,完全從海戰實際出發,顯得十分簡潔。艦橋側面積310平方米,正面面積卻只有159平方米,僅相當於側面積的一半,其迎風阻力自然也就比較小;採取二重筒狀結構,內筒中裝有各種線路和管道,內外簡之間的夾層里設有各種專用小室,外筒周圍則設有與指揮、探測有關的裝置。為減少衝擊波的影響,艦橋外面開口少,封閉而整潔。大和號的艦橋高達45米(從龍骨處算起),宛如一座高塔,在其頂部裝有主炮觀測所,內置98式方位盤,上裝潛望鏡式望遠鏡,下有15米測距儀。
中央艦橋內部構造3D示意圖 主炮射擊指揮所下是防空指揮所,在頂部露天甲板上的防護轉板四周裝有多部高色雙筒望遠鏡。防空指揮所下是晝間戰鬥艦橋,也稱第一艦橋。其前面與側面有調風板和防護裝置。通常,艦隊司令長官及其司令部、艦長等指揮參謀人員在此指揮戰鬥。下一層是作戰室、艦長休息室。以下依次是上部觀察所、羅經室(即夜戰指揮所)、下部觀察所(第二海圖室)和司令塔(實際是個通信用通道,即通信筒)等。
煙囪之後是後艦橋,是預備戰鬥指揮所。火炮實施前後分火射擊時,它也起後指揮所的作用。大和號採用單煙囪,各鍋爐的煙道均曲折向後,與煙囪的某一部分相接。煙囪也儘量向後傾斜,以避免排煙影響艦橋工作。 為保證艦體煙囪開口部的安全,在開口部裝設一種蜂窩狀板,厚380毫米,上面有直徑180毫米的許多小孔。有孔面積是無孔面積的55%,另外在煙囪前面的傾斜部及側面裝有50毫米厚的防護甲板,煙囪的安全性大大提高。
武器裝備
主炮
大和舾裝照 大和號以其巨型主炮聞名於世。主炮為三聯裝94式45倍徑460毫米口徑艦炮,3聯裝主炮塔三座,兩座三聯裝炮塔配置在前甲板,一座三聯裝炮塔配置在後甲板。當時日海軍對主炮口徑保密,稱為九四式身長45倍口徑的400毫米炮,實際是460毫米。炮身重165噸,一座炮塔內三門火炮總重為1,720噸,加上炮塔裝甲(790噸)和彈藥的重量,單座炮塔的旋迴部的重量總重為2,774噸(有些資料稱大和炮塔重2,510噸,系未計算彈藥時的重量),相當於日海軍秋月級驅逐艦的排水量。每發炮彈重1.5噸。炮塔後部裝有93式15米基線測距儀(裝有電羅經,航行時可保持穩定),炮塔兩側前面及頂部前面均裝有潛望鏡式瞄準鏡。炮塔的俯仰角是+45度,-5度,火炮裝填炮彈時,固定在+3度,俯仰速度每秒8度,炮塔旋迴一周3分鐘。發射速度2分鐘三個齊射,1.8發/每分;炮彈基數每門炮100發,每發炮彈重1.5噸,每發炮彈裝藥量330公斤。揚彈速度每發6秒,裝彈機械化。
該炮由吳海軍工廠艦炮部負責研製。9門主炮若指向一舷齊射,其后座力達8000噸,發射時衝擊波也很強,日艦船設計部門為減小衝擊波的影響煞費苦心,在後主炮前邊的擋風板之後集中設定升降、通風口,這樣既可使後主炮前的甲板顯得光淨簡潔,又可利用通風筒來減少主炮衝擊波的影響。由於希望縮短建造時間及提高工作效率,在建造期間使用了模組作業並取得成功。而建造大和型時使用的技術及生產管理,成為戰後日本工業的基礎參考。
吳港大和館的大和號所用炮彈 大和艦的460毫米火炮配有三種炮彈,分別為91式460毫米穿甲彈,三式對空彈和高爆彈。91式穿甲彈彈重1460公斤(內置炸藥33.85公斤),發射時膛壓32公斤/平方毫米,炮口初速785米/秒,最大射程42,050米(45度仰角),需飛行90秒。主炮仰角40度時,射程40,700米,30度時,35,826米,20度時,27,916米,10度時,16,843米。3式對空彈和高爆彈重量均為1,360公斤,炮口初速也均為805米/秒,前者用於對空射擊,最大射高為11,900米,後者裝填有59.5公斤炸藥,主要用於打擊無裝甲目標和執行岸轟任務。大和艦每門主炮配有120發炮彈,其中100發為穿甲彈。94式主炮的發射速度較低,為1.8發/分鐘。
三聯裝460mm艦炮3D復原圖 3聯裝主炮齊射後發射出去的炮彈在飛行中往往會互相干擾而影響射擊精度。以往解決這個問題的辦法便是讓中間那門火炮與邊上的2門交替發射,而大和艦在主炮上裝了一種火炮發射延遲裝置,使中間那門炮的發射時間比邊上2門延遲3/1000秒—5/1000秒,從而保證3門主炮能夠同時射擊。
大和主炮內部結構 大和艦裝備的94式460毫米口徑主炮是歷史上威力最大的艦炮,與“依阿華”級戰列艦配備的MK7式406毫米口徑50倍徑艦炮相比,94式460毫米艦炮在穿甲彈重量,炮口初速,射程上均處於優勢地位。大和艦主炮無疑要比“依阿華”主炮有著更強的裝甲穿透力。戰後美國發表的資料也證實了這一點。單純從數據來看,這種優勢似乎並不明顯,但如果考慮到雙方的裝甲防護水平,大和艦在20,000-30,000米距離上(這是戰列艦一般採用的遠程炮戰距離)已經可以貫穿“依阿華”級戰列艦的主裝甲帶(也可以擊穿世界上任何一艘戰列艦的主裝甲帶),而“依阿華”級的主炮卻還難以做到這一點。有認為大和艦的460毫米炮精度較差,射速也比MK7低,因而懷疑94式炮的實戰效能。關於大和艦的主炮火炮精度,由於大和號實戰經驗少,並未有發現過證明其精度較差的可靠證據。而就“大和”的94式主炮本身來說,其身管壽命200~250發,而火炮膛壓小得多的衣阿華級的Mk7型主炮身管壽命也只有 290~350發,這說明94式的身管強度並不差。另外還有一個影響戰列艦火炮射擊的問題往往被人們所忽視——在波濤洶湧的海上,戰列艦艦體的穩定性實際對主炮射擊精度影響非常大,而艦體粗短的“大和”無疑比艦體細長的衣阿華級擁有著更好的縱向穩定性。
副炮
大和艦的副炮採用從最上級重巡洋艦改裝時拆下來的60倍徑155毫米口徑艦炮12門(四座三聯裝),炮塔重150噸,設有25毫米裝甲板。最大射程(45度仰角)27,400米,最大射高12,600米(也可以用於對空射擊),射速5-7發/分,每門炮備彈150發,採用基線8米的測距儀。該副炮的配置頗有特色,4座炮塔分別設在上層結構的前後及艦上層建築的兩舷。(這兩座後來被拆除,以騰出空間來安裝高射炮)。這種配置可保證大和艦的全部4座副炮炮塔中的3座可以同時指向一舷,而大多數戰列艦隻能保證一半副炮同時指向一舷。
美國海軍發布的1945年大和號 艦船防護
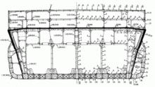
中央橫剖面線圖(第135號肋材附近) 大和艦是是整個戰列艦史上最厚重的一艘。不僅如此,該艦的裝甲帶還具有良好的防彈外形,其舷側410毫米裝甲呈20度傾角(向內側傾斜),舷側裝甲傾角在最後一代戰列艦中是最大的(其次是美國的“依阿華”級和“南達科他”級,舷側傾角19度),大和艦中甲板邊緣處的230毫米裝甲也帶有7度的傾角。大大提高了大和艦裝甲的抗彈性。
按照設計要求,裝甲應能夠承受自身460毫米主炮在20000-30000米距離上的打擊,中甲板還能抵禦從3900米高度投下的800公斤重航空炸彈。為實現上述要求,一共安裝了22895噸裝甲和防禦板,占全艦正常排水量的33%。
該艦的彈藥艙、主機、鍋爐艙等要害部位被集中布置在戰艦中部用厚重裝甲帶保護的防禦區劃內(從前主炮前端一直延伸到後主炮後端的位置)。防禦區劃的舷側裝甲從戰艦舯部水線處一直延伸至戰艦底部,其上端水線處的主裝甲帶厚度達410毫米(採用VH裝甲鋼,即維氏硬化鋼),主裝甲帶以下的舷側列板的厚度為75-200毫米(由上至下遞減)。防禦區劃頂部的裝甲敷設在戰艦的中甲板處,厚度為200-230毫米(採用加入鉬的均質鎳鎘合金鋼)。防禦區劃的前後兩端則由270-350毫米厚的裝甲橫隔壁防護。
主防禦區劃以外的舵機艙也敷設了厚甲,其主副舵機艙頂部裝甲均為200毫米,艙壁裝甲主舵機艙厚350-360毫米,副舵機艙厚250-300毫米。作為操舵室和重要的通信管道,位於大和艦艦橋處的司令塔也是一個重點防護區域。其側壁及頂部裝甲厚達500毫米,而從司令塔向下延伸至主防禦區劃的通信線路則被300毫米厚的重裝甲保護著。
大和級副炮裝甲防護示意圖 主炮炮塔是全艦防護最為堅固的地方,其炮塔正面裝甲厚達650毫米(45度傾角),側面250毫米,後部190毫米,而頂部裝甲則為270毫米。當時歐美在設計戰列艦主炮炮塔裝甲時,總是將側面和後部的裝甲設計的比頂部厚很多,而大和艦卻恰恰相反,其原因除了當時日本人對遠程炮戰中大角度落彈的警惕外,恐怕也和大和艦建造過程中,海軍航空制勝論者施加的壓力不無關係。
主炮底座的前部,側部裝甲厚度均為560毫米,後部裝甲則為380-440毫米。為了加強大和艦主炮彈藥庫的防護,日本人還在其主炮前的主甲板處敷設了35-50毫米厚的合金銅護板(可抵禦敵方俯衝轟炸機投下的250公斤炸彈)。
為了減輕重量,以保證炮塔的轉動速度,該艦副炮的防禦設計得較為薄弱,其炮塔裝甲為25毫米,僅能防禦彈片和近失彈殺傷。副炮的炮塔底座採用75毫米厚的合金銅裝甲來保護通向彈藥庫的通道。2座被安裝在位於艦體中心線的防禦能力薄弱的副炮塔與主炮塔相鄰,彈藥庫距離過近,一旦中彈損害容易波及主炮彈藥庫,是個顯而易見的缺陷,為此後來還專門強化了防護措施。
大和艦煙囪的下部設有50毫米的裝甲,而在位於中甲板的煙囪開口處則裝了一塊非常獨特的“蜂窩”裝甲板,其厚度達380毫米,板面上布滿直徑180毫米的小孔。這樣既可以保證排煙順暢,又使這一區域的得了有效的保護。
大和艦裝甲線圖 在水下防護能力方面,大和被要求能夠承受400公斤TNT的爆炸當量(美國最後一代戰列艦要求能抗擊300公斤TNT的打擊,德國的俾斯麥級戰列艦要求抗擊250公斤TNT),而在命中2-3發魚雷的情況下不能影響戰鬥力,為了防水雷,艦底採用3層底。同時為了提高抗沉性,全艦被劃分出了1147個水密隔艙。但作為一艘以炮戰為主要任務,強調集中防禦的戰列艦,水下防護系統總長只占戰艦全長的40%,這對其防禦魚雷打擊顯然是不利。
雷達偵查
21型電波探信儀 大和艦在建成時沒有裝備雷達,後來先後裝備了3種雷達。
21號電波探信儀(對空雷達),1943年9月被安裝在大和艦艦橋頂端的15米主炮測距上,其雷達波長1.5米,功率25-30千瓦,可探測120公里處的機群,70公里處的的單機。角度誤差大。 22號對海電波探信儀(對海雷達),雷達長10厘米,屬超短波對海雷達,磁控電子管,功率2千瓦,探測戰列艦35公里(距離誤差±700米),對巡洋艦20公里,對驅逐艦17公里,角度誤差±5度。該雷達於1944年1-4月安裝於大和艦的艦橋兩側。
E27型逆探(雷達信號探測器) 3D復原圖 13號電波探信儀(對空雷達),1944年1-4月安裝於大和艦的後桅,功率10千瓦,可在100公里發現機群,50公里發現單機,距離誤差±2-3公里,角度誤差±10度。這型雷達比22號在性能上有了一定的提高,同時尺寸也要的小的多。
E27型逆探,可接受300公里以外目標發出的雷達波。
整體來說,日本海軍的雷達在性能上要比美國的同類產品落後,而且日本艦艇也沒有火控雷達,因而使大和艦的夜戰能力低於美國戰列艦。
水上飛機
水上飛機 一共搭載有 零式雙座水上觀測機和 零式三座水上偵察機總計7架。
三菱F1A2零式雙翼水上觀測機,最大速度:370km/3440m;自重1928kg;最大航程:740km;武備:7.7mm機槍×3,60kg炸彈×2;翼展11m,全長9.5m。
愛知E13A1零式三座水上偵察機,最大速度:376km/2180m;自重2642kg;最大航程:2090km(有資料為1644km);武備:7.7mm機槍×1(後部鏇轉式),60kg炸彈×4;翼展14.5m,全長11.49m。
這兩種飛機的主要任務是為戰列艦提供偵察,以及在炮戰中觀察炮彈的落點。
水面艦艇
水面艦艇 1942年時搭載有17米艦載魚雷艇型內火艇1艘,15米掌管交通艇1艘,將校用11米摩托艇1艘,軍官及水兵用12米汽艇4艘,8米汽艇、9米划艇、6米划艇各1艘,合計10艘。為了避免主炮爆風損壞艦載艇,在機庫外設有短艇格納架(金屬架,上包棕毛和皮革),兩艘6米和9米划艇分別疊放於兩艘12米內火艇之上。格納庫出口處設有巨大的防護門,平時關閉。隨著艦上防空火力陸續增強,艦員由2500人增至3000人,居住設施緊張,因此將大半部艇庫改為居住區。到戰爭後期,大和級通常只搭載11米摩托艇和12米汽艇各兩艘。
搭載的17米艦載魚雷艇型內火艇是根據1913年從英國購入的金剛號戰列巡洋艦搭載艇仿造的,排水量21噸,150馬力柴油機,速度10.54節,最多可搭載成員100人,舷側甲板還可搭載魚雷或深水炸彈,首部甲板可安裝一挺0.303英寸機槍。日本海軍對其相當滿意,此後40多年裡一直沒有改動過艇型。一些小型地方造船社在承接17米內火艇建造任務後,對其古舊艇型提出疑問,並提出改進意見(如加裝減搖的舭龍骨,以改善港外航行條件),但海軍對此的態度莫名保守,拒絕作出任何改動,被時人譏諷為“海軍七大不思議之一”。15米內火艇(長官交通艇),寬3米,排水量12噸,航速13.5節,可搭載45人。
其他設備
起重機 大和號艦尾起重機由石川島造船所起重機部製作。使用半徑8~20米,迴旋角300°。使用220v交流電驅動,安裝40馬力起重馬達和25馬力迴旋馬達各一台。
艦員配置
編制艦員總數2300名(建成時),其中準士官以上150名,下士官及水兵2,150名,分為炮術、航海、通信、內務、機關、飛行、醫務、主計(財務)等八個科,各科主官分別為通信長、航海長、內務長、飛行長、機關長、軍醫長、主計長。每科下轄一個或幾個分隊,設有大尉分隊長一名、少尉分隊士數名;分隊之下為班,一班通常為15人,班長為上等兵曹。編制改定前大和級共有20個分隊,大和號臨終時設有22個分隊,高炮分隊是大和在雷伊泰灣大海戰後才增設的。艦上的最高指揮官是大佐銜艦長,戰鬥時,艦長在晝戰艦橋或夜戰艦橋上指揮戰鬥,大佐銜副艦長則在防護嚴密的司令塔內襄助之,主要負責損管防禦指揮。炮術科首腦為炮術長。一至三號主炮塔分別配有第1-3分隊,各炮塔設有炮塔長,以及火炮操作員、彈藥庫操作員等。炮術長之下為負責副炮的副炮術長和負責高炮的高炮長,1-3號主炮塔分配有第1-3分隊,前後副炮塔設有第4和第10分隊,高炮設有第5,6分隊(左右舷127mm炮)和第7,8分隊(左右舷25mm炮),第9分隊負責主炮射擊管制和火控數據計算,第11分隊負責測距,探照燈照射,航跡測定等,第12分隊為通信科,第13分隊為航海科(操舵,航海,信號,雷達,水音偵聽);第14分隊為運用分隊,第15分隊為工作分隊,均屬於內務科;第16分隊負責電機,第17分隊負責輔機(含損管、消防),第18分隊屬於飛行科,機關科包括第19(機械)、第20(鍋爐)分隊,分為四個分掌區,每區負責3台鍋爐和一台主機。醫務科為第21分隊。主計科為第22分隊,負責掌管艦上一切經費開支,薪金髮放,被服、軍需品、糧食及酒保品補給,以及烹飪、理髮、洗衣等庶務。
凡是新兵上艦,都要接受四到五日的培訓,學習艦上規章,並熟悉大和級的艦內各部門位置。培訓的最後一日早上8點,所有新兵員都要在最上甲板集合,每人發一張紙,由各自艦上所在分隊出題,為了防止互相串通作弊,題目都是因人而異。新人領到試卷後,要獨自找到上面列出的一系列艦內部門的位置,讓艙室人員蓋上印簽,印簽蓋全後再回到出發點,大和號水兵稱之為“艦內旅行”。有些方位感比較差的路痴,到晚上9點還收集不全所有的印簽。儘管有這樣的測試,還是經常有水兵在艦內迷路,因此對兵員的最低要求是能夠從最上甲板找到所在分隊的居住區一一唯一的例外是從住所到食堂的路,再笨的人也不用專門培訓就能記住。
在軍艦停泊於港口或柱島泊地時,往往採取“半舷上岸”的方式讓左右舷兵員輪流上岸放假休息。凡是上岸的水兵,都會領到一枚稱為“上陸札”的木牌,上書“軍艦大和”或“軍艦武藏”,背面寫有所在的船舷、部門、分隊、軍銜、姓名。海軍勤務服役三年以上的水兵,其上陸札還標有“善一”(善行章第一線)字樣。上陸札在離艦時按上岸名單依次發放,歸艦時交還。
大和旅館
南滿鐵道株式會社在中國各地開辦的大和旅館 1945年之前,號稱“日本東印度公司”的南滿鐵道株式會社在瀋陽(今遼寧賓館)、大連(今大連賓館)、長春(今長春春誼賓館)、哈爾濱(今龍門大廈貴賓樓)等城市開辦有若干家“大和ホテル”,即“大和旅館”,在當時是偽滿最高級、最豪華的飯店。 大和號戰列艦則有一個同名的“大和旅館”綽號,大和號的烹飪員都是從當時日本最高檔的東京帝國酒店、以及戰前郵船會社的幾艘豪華郵船上徵用來的。在日本海軍徵召的兵員中,凡是有日式酒家和餐館服務經驗的人,都優先分配到大和級(大和級服役以前則是長門級)上。當時日本海軍驅逐艦以上軍艦分別設有軍官烹飪室和兵員烹飪室,大和號則分為長官及艦長專用烹飪室、第一士官烹飪室、第二士官及準士官(準尉)烹飪室等。艦上乘員通常保持在2300一2500人,比原聯合艦隊旗艦長門號多出1000人。
大和號上各烹飪室都設有專門的食品冷庫、烹飪台、料理台、配餐檯,還有當時非常罕見的電氣食品保溫器。士兵烹飪室設有6個巨大的六斗(110升)蒸飯鍋、兩個同等大小的菜鍋、一個36升粥鍋、兩台15千瓦“萬能烹炊器”(電飯鍋)、兩個“合成調理機”(可以切蘿蔔、削土豆、攪拌肉泥),還有洗米機、餐具消毒器等設備。烹飪所里設有烤箱,可以自己烤制麵包、洋果子(西式點心)和布丁。此外,艦上還可以自制茶湯、羊羹,以及利用消防用二氧化碳兌制檸檬汽水等清涼飲料。各廚房均配有一台1馬力冷凍機,用來製造冰淇淋。大和號上的冰淇淋用料非常講究,所用的黃油、煉乳都是自神戶六甲山農場的優質牛乳提煉的;平時用清水、砂糖和香精製作一些“冷果”,也大受歡迎。當時日本海軍中裝有冰淇淋製作機的艦船還有間宮號和伊良湖號兩艘給糧艦,以及被潛艇部隊官兵讚譽為“劍崎大旅館”的兩艘劍崎級潛艇母艦;不過在戰鬥軍艦中,只有大和級戰列艦有如此奢侈的設備。
艦上冷庫的總容積223.4立方米,相當於560台家用冰櫃。大和級艦上一般儲存有三個月用的食品,其中魚肉、豬牛肉、火腿、雞蛋、乳製品、新鮮蔬菜、水果等易壞品儲存於冷庫中,肉庫溫度為零下2度,菜庫為零上5度;米麥、麵粉、乾魚、味噌、醬油、醬菜、砂糖等不易腐壞的物資則分別存放於上甲板和中甲板的四十多個食品庫里。
酒保倉庫還存有50多噸酒保品,如酒類、菸草、糖果等,其中清酒多半是補給基地吳港附近的廣島出產的“加賀鶴”和兵庫縣出產的著名灘酒“月桂冠”,洋酒則五花八門,威士忌多為進口的“強尼沃克”,有“黑方”和“紅方”兩種。香菸有“旭日”、“金蝙蝠”和“譽”,都是在日本家喻戶曉的牌子。大和號的艦上商品非常便宜,果子為5錢一包,香菸是7錢一包(1日元=100錢)。凡是士兵有採購需要,都是由班長提前收集定購單,然後在第二天早上交到小賣部,酒保按照定單將商品裝到寫有班名的木盒子中,晚上5點半到6點小賣部開張後再去提取。
無論陸軍還是海軍,舊日本軍隊的一伙食比當時日本國內一般家庭的一伙食水準高出許多.師法英國的日本海軍尤其以講究吃喝而著稱,幾乎每天都能吃上魚和肉。一位服役期滿回鄉的士兵的老父親曾發牢騷說:“我家的兒子退伍回家後,死乞白賴地要吃肉,真沒辦法。”當時在日本農村,只有新年、中元節(七月十五)及婚喪吊慶之日才能吃上魚,肉更是奢侈品。一年奔忙到頭,連幾斤豬肉都吃不上,這在高度富裕的日本是無法想像的。
一般士兵不像軍官一樣必須每天吃全套西餐,但是菜色中也是和洋並有,包括炸豬排、奶油燉雞、咖哩牛肉等洋菜,味噌湯、魚、醃醬菜等日式菜。艦上士兵七點半用早餐,以米飯、醬菜、味噌湯為主,但是在輪到吹起床號前就必須起床值日的時候,為了先填飽肚子,值班士兵會跑到廚房先要些吃的。通常廚房給他們的是用大麥飯和切成碎塊的油豆腐拌上醬油跟醬菜做成的“雜菜飯”。
當時日本海軍士兵的食品定量是每人每日米6合(一合大約是0.18公斤)、肉180克、魚50克、蔬菜300克、鹽三撮,攝入熱量2500到3000卡路里。為了預防腳氣病,士兵主食是混了一半米、一半大麥(有時是米70%、大麥30%)的大麥飯。士兵一般按照15人一組,由班長帶領前往士兵餐廳進餐。各班住艙附近有單獨的烹水所,可以自己煮食一些東西。戰鬥時,廚房用米飯和乾梅子握成飯糰,用“四斗博”木桶送到艦上各戰鬥崗位。
判任官級別以上的軍官長早餐內容為魚乾、海苔、味噌湯、漬物(醃醬菜)、白米飯(日本人只在生病時吃粥);如果有人想吃西式的早餐,也可以於前一天晚上告訴勤務兵誰備咖啡、麥片粥、麵包之類的英式早餐。軍官午餐內容為按照湯、魚、肉、甜點次序上菜的西式全餐。不論寒暑,用餐時都要穿上外套,並且按照英式餐桌禮儀用餐。聯合艦隊司令長官在自己的私室中用餐,有勤務兵隨伺在旁;有時也會在司令官廳用餐,同時招待艦隊要員等一同進餐。軍官分高低階,分別在軍官室和基層軍官室中用餐。如果遇到演習或戰鬥任務,則由勤務兵乘電梯向艦橋內各處的司令部軍官送飯。
聯合艦隊司令長官在進午餐時有一套相當複雜的禮儀:長官坐於桌子一側中央,參謀長跟他對面而坐,其它有資深幕僚人員、副官、艦隊密碼長、艦隊氣象長、艦隊輪機長、艦隊主計長、艦隊醫務長、艦隊軍法長、旗艦艦長等。司令長官用餐前五分鐘,軍樂隊集合在後甲板,演奏古典音樂或歐美流行音樂,而非軍歌軍樂,即使在戰中也保持這項傳統,這也算是樂隊每日的練習時間。官兵們多半儘快吃完午飯,到後甲板享受音樂。不過這隻有在錨泊的時候才會舉行。等長官用餐完畢、端上紅茶時,音樂演奏正好結束。
軍官晚餐為日式,包括生魚刺身、鹽烤加吉魚、蒸蛋、醃漬蔬菜、味噌湯等日式料理。在軍艦停泊於不同地方時,會有當地風味菜,如龍蝦、鯛魚等。晚餐後,吃不飽的軍官會向勤務兵要剩飯,事實上是伙房特地多煮一鍋飯來應付這些軍官,另外再加上幾個荷包蛋,澆上醬油、烏醋等,當作第二頓晚餐。此外,軍官必須自付一伙食費,年輕的軍官們往往花錢如流水,有家眷的特務軍官相較之下比較懂得節約。即使是擱置在吳港無所事事的那幾個月,艦上的餐點還有咖哩飯、香蕉、蘋果、通心粉、生菜沙拉等;至於旁邊的那些驅逐艦和潛艇,就只有在停靠修理艦或母艦時才有機會改善一伙食了。
到晚上五時,全艦晚餐供應結束,一號主炮塔附近的上甲板處設有小賣部,軍官和士兵都可以從這裡購買食品當作夜宵。小賣部由酒保長經營,備有艦上烤制的麵包、煎餅、點心,以及奶糖、羊羹、餅乾、清酒、啤酒、汽水、香菸、信紙、手紙、火柴等商品。
裝備有大型洗衣機,並雇有專門的洗衣鋪工作人員,這些人屬於軍隊僱傭的民間人員。艦上理髮師也是同樣的平民身份,理髮收費標準,軍官以上是20錢,剃光頭15錢,修面10錢;士兵收費分別是13錢、8錢和5錢。大和號理髮師一天的平均收人是1元30錢左右,遠比陸上營業收入高,不過一旦捲入戰鬥,就有可能連性命也保不住了。
大和號戰列艦是當時日本帝國海軍內唯一一艘搭載中央空調的戰鬥艦艇,各生活工作區域都通有冷暖空調,製冷用的是彈藥庫冷卻機的強大剩餘功率,取暖則來自蒸汽加熱器。艦內溫度為恆溫,病員室最低溫度控制在24度左右,最高28度;軍官住艙、事務室、食堂的空調冷暖溫度區間為20一26度,艦內通路18一30度,作業室15一30度,操舵室10度一32度。最初在確定艦內製冷區域時,準備為全艦所有住艙都通上冷氣。不過軍令部認為,給士兵住艙也提供冷氣太奢侈了,因此除了煙道附近的兵員室和軍官居住區外,其他區域的士兵住艙都只是用通風機來保持通風。此外為了節約燃料、減少故障,制冷機很少滿負荷運行,所以除了保證彈藥庫溫度外,其他艙室的室溫都比額定溫度高。1943年大和停泊於特魯克時規定的室溫是:士兵住艙溫度不高於38度、機艙不高於40度,官艙、事務室和發令所等區域則保持在27度左右。
可以攜帶淡水509噸,但是除去鍋爐和蒸汽輪機用水、以及飲用水外,可以供洗濯用的淡水非常有限,甚至連士兵廚房洗米都是使用海水。洗澡也是使用熱海水,上至聯合艦隊司令、下至普通兵員都是如此,洗完後再用淡水沖刷。全艦隻有司令長官、參謀長和艦長三人享有專用浴室,副艦長及以下各部門長、分隊長及其他軍官、士官都按級別設有專門的公共浴室。艦上設有兩個兵員浴室,水兵每三天洗一次澡,每次入浴人數是五六十人。入浴前每人領取三枚木牌,先用第一枚交換一小盆熱水(淡水)擦洗全身,交出第二枚後放熱海水沖洗,第三枚用淡水衝去身上鹽分。此外,也有官兵接取制冷機管道外凝結的滴水來擦洗身體。從大和第一代艦長高柳儀八時代起,為了振奮士氣,每天午前和午後全艦乘員都要光著上半身,在艦長帶領下集中於露天的前甲板、中甲板和後甲板上做海軍體操,做完之後自然是一身臭汗,因此每三日一次的洗澡日自然成了士兵們期盼的日子。此外,在艦隊停泊於多暴雨的熱帶時,如果氣象預報有雨,則通知全員於最上甲板上集中,利用雨水洗澡。同時在前部炮塔群上架設收集雨水用的帆布槽,積攢下來的雨水存放在空的油槽、注水槽和鐵桶中,用做消防和洗濯用水。
住宿環境
大和號的司令長官套房一反過去戰列艦設在艦尾的傳統,改設在上甲板右舷中央部附近。自艦首向艦尾依次為長官室(辦公室)、長官公室(會議室兼長官餐室)、長官私室(臥室)、浴室及廁所。在這套房間前方為艦隊參謀長的套房,也包括辦公室、臥室和浴室。聯合艦隊參謀長以及艦隊幕僚的住艙則設在左舷對應位置、以及艦橋下部前後的中甲板上。長官套房的入口在長官公室前部,內有長方形會議桌兼餐桌一張,每側各有椅子七把,兩端分別為長官及參謀長座位。長官座位右後方有門通往長官室,內有寫字檯及寫字椅一套,六人小沙發及茶几一套,三人長沙發一個,書櫃一個。長官室有門通往隔壁的廊室,其內有長官餐具室,記憶體24人用銀餐具2套、高級“美濃燒”瓷餐具3套、和式及洋式茶具各1套,酒具及咖啡具各2套。這裡還存有配給長官的洋酒、茶葉、餅乾、朱古力、香菸和罐頭等食品。長官公室反方向為長官私室,內有單人床、寫字檯、長沙發、書櫥、衣櫃、保險柜,各處都安有電話、空調,鋪著銀灰色的羊毛地毯,艙壁為咖啡色的麻栗木護板,非常豪華。長官私室另有一門,進門為一小走廊,左手為設有淋浴和浴缸的浴室,右手為廁所,前方則通往副官室和長官寢具室。
大和號連普通士兵都配有專用的臥鋪(士兵總數的三分之一,其餘士兵仍住吊床)。以滿員2500人計算,其人均居住面積達3.2平方米,與之相比,長門級只有2.6平方米,驅逐艦更是只有1平方米左右。大和級的兵員居住區大多設定在艦體前方,住艙為白色,設有三層臥鋪,長1.8米、寬0.75米;軍官則是雙層臥鋪,兩人或四人一室。
艦隊幕僚軍官住在中部左舷,一人一間,房間內設有單人床、寫字檯、衣櫃和摺疊式洗面台。從房間的整潔度可以看出各位參謀的性格,例如制訂奇襲珍珠港計畫的聯合艦隊首席參謀“甘地”黑島龜人,其房間內就是永遠焚著薰香,地上到處散落紙片,菸灰缸里是堆成小山的“朝日”香菸菸頭。大和號上生活設施完備,居住舒適;而且自日美開戰以後幾乎都停泊在特魯克,足不出戶、不上戰場,生活悠閒愜意,難怪會被其他軍艦官兵揶揄為“大和旅館”。
性能數據
| 艦體數據 | ||
| 排水量 | 標準排水量 | 64000噸 |
| 試航排水量 | 69100噸 | |
| 滿載排水量 | 72808噸 | |
| 艦體尺寸 | 艦長 | 263米 |
| 水線長 | 256米 | |
| 垂線長 | 244米 | |
| 水線寬 | 36.9米 | |
| 艦寬 | 38.9米 | |
| 型深 | 18.915米 | |
| 平均吃水(滿載) | 10.86米 | |
| 平均吃水(試航) | 10.4米 | |
| 動力系統 | 動力 | 12台鍋爐,4台蒸汽輪機 |
| 傳動 | 4軸 | |
| 功率 | 主機輸出功率153000馬力(倒車45000馬力) | |
| 航速 | 27節 | |
| 推重比 | 2.1馬力/噸 | |
| 續航 | 7200海里/16節 | |
| 儲油量 | 儲油量6400噸 | |
| 裝甲 | 總重22895噸 | |
| 主裝甲帶 | 中甲板以下 | 410mm(硬化層135mm) |
| 外傾角 | 20° | |
| 甲板 | 上甲板 | 35~55mm |
| 中甲板 | 200mm | |
| 炮塔 | 前 | 650mm |
| 側面 | 250mm | |
| 頂 | 270mm | |
| 炮座 | 560mm | |
| 底 | 250mm | |
| 彈藥艙壁 | 頂 | 270mm |
| 底 | 50~80mm | |
| 傾角 | 25° | |
| 機艙、鍋爐艙 | 頂 | 200mm |
| 到艦底 | 75~90mm | |
| 傾角 | 14° | |
| 武器系統 | ||
| 裝備 | 數量 | 配置 |
| 460mm/45倍口徑主炮 | 9門 | 3聯裝3座 |
| 155mm炮 | 6門 | 3聯裝2座(改裝中拆除了兩座) |
| 127mm炮 | 24門 | 雙聯裝12座(改裝中增加了6座) |
| 25mm炮 | 156門 | 3聯裝45座、單裝21座 |
| 13.2mm機槍 | 4挺 | 雙聯裝2座 |
| 艦載機 | 7架 | |
服役動態
入役
1941年海試中的大和 1937年8月12日,發布建造訓令。
1937年11月4日,在吳海軍船廠開工。
1940年8月8日,下水命名為大和號。
1941年11月1日,初代艦長高柳儀八大佐(海兵41期)就任。
1941年11月29日,開始在德山灣進行公試12月7日結束。
1941年12月16日,正式竣工服役,艦籍歸屬吳鎮守府,編入聯合艦隊。
1941年12月21日,前往柱島錨地進行警戒,訓練。
1942年2月12日,號接替長門號戰列艦成為日本聯合艦隊旗艦(這時擔任聯合艦隊司令長官的卻是曾極力反對建造大和艦的山本五十六)。日本海軍對它的期望值很大,將其當做最後決戰的王牌未經許可聯合艦隊不得輕易動用。然而,大和艦建成服役之時,恰好趕上戰列艦的霸主地位被航空母艦所取代的時代。太平洋戰爭期間在美航空母艦特混艦隊的打擊下,“大和”號幾乎無所作為。雖然威力強大但卻生不逢時。
1942年5月29日,從柱島出擊參加中途島作戰6月14日返回柱島。
參戰
1942年6月,大作為聯合艦隊旗艦參加了中途島海戰出師受挫,戰列艦艦隊和航空母艦艦隊分開使用。四艘航空母艦全軍覆沒(南雲中將指揮的第1航空艦隊,擁有4艘航空母艦),而大和號則在三百海里以外無所事事。6月14日,回到柱島錨地。
1942年8月5日,編入聯合艦隊第一戰隊。
1942年8月17日,從柱島出港,這次的任務是支援對索羅門群島方面作戰。但在8月28日,到達特魯克群島後,只是呆在港里很少出戰。
1942年12月17日,二代艦長松田千秋大佐(海兵44期)就任。
1943年5月8日,向本土返航離開了特魯克。
1943年5月13日,抵達柱島。
1943年5月21日,進入吳工廠船塢進行修理5月30日出塢。
1943年7月12日,進入吳工廠船塢進行整備,加裝了25毫米高炮和21號對空警戒雷達
1943年7月17日,出塢。
1943年8月16日,從吳港出發前往特魯克8月23日到達。其後一些日子裡,該艦被指派去向一些島嶼上的日軍運送物資和補充兵員。
1943年9月7日,三代艦長大野竹二大佐(海兵44期)就任。
1943年12月12日,由特魯克向本土返航12月17日抵達橫須賀。
1943年12月20日,由橫須賀出發 25日抵達特魯克在該島北部遭到美軍潛艇雷擊,一枚魚雷擊中右舷輪機艙後方,造成進水人員裝備無損失。
1943年12月25日,在特魯克附近遭到美國潛艇的魚雷攻擊,戰艦右舷第165號肋骨(第3號主炮塔附近)被一發魚雷命中,由於爆炸的衝擊導致船舷支持裝甲板的弧形構造則插穿防禦彈片的水密艙縱向隔壁,機械室及火藥庫進水,進水約3000噸。受損後的大和號加速撤離了這一海域。
1944年1月16日,再次回到吳港入塢修理,出於防雷的考慮,在其舷側水線以下的防水區域內增設了一層呈45度傾角,厚6毫米的鋼板。同時進行改裝提高防空能力,戰列艦舷側的2座155毫米炮塔被拆除,加裝6座127毫米雙聯裝高炮,25毫米高炮數則增至98門。同時艦上還裝上了22號對海警戒雷達和13號對空警戒雷達。
1944年4月10日,修理及改裝工程結束。
1944年1月10日,由特魯克向內地返航1月16日抵達吳港。
1944年1月25日,四代艦長森下信衛大佐(海兵45期)就任。
1944年2月25日,編入第二艦隊第一戰隊,進入吳工廠船塢修復損傷進行改裝。
1944年3月18日,撤去兩舷155毫米副炮加裝高射炮,機關炮。
1944年4月21日,搭載補給物資由吳港出發,4月26日抵達馬尼拉。
1944年5月1日,由馬尼拉出發抵達林加錨地,進行訓練。
1944年5月11日,由林加錨地出發5月14日抵達塔威塔威。
1944年6月11日,由塔威塔威出擊,參加馬里亞納海戰,6月22日返回中城灣。
1944年6月23日,由中城灣返航本土24日晚抵達柱島錨地28日返回吳港進行整備加裝15座25毫米機關炮以及22號電探7月8日搭載陸軍部隊由吳港出發,途經中城灣於7月16日抵達林加錨地,進行訓練。
1944年10月18日,由林加錨地出發10月20日抵達汶萊。
由汶萊向雷伊泰灣(右起:長門、武藏、大和) 1944年9-10月,美國開始實施菲律賓戰役,1944年10月22日,大和號作為栗田艦隊的核心,包括武藏等5艘戰列艦,12艘巡洋艦,14艘驅逐艦的第二艦隊,由汶萊出擊,執行捷號作戰計畫(在馬里亞納海戰中,日本海軍航空母艦艦隊遭到了重創),參加雷伊泰灣海戰。
1944年10月23日,在巴拉望水道接替沉沒的愛宕,擔任第二艦隊旗艦。
1944年10月24日,進入萊特島東北的錫布延海遭到美國海軍第3艦隊航母艦載機的猛烈空襲。在戰鬥中,武藏號被擊沉。大和號僅在前甲板被美機投中一顆炸彈,左舷錨鎖庫中彈艦體破損,大量進水。
1944年10月25日晨,在薩馬島附近,第二艦隊發現美軍護航航母編隊(第7艦隊的護航航空母艦),並展開炮戰。中午時分,大和號放棄開始回撤。
雷伊泰灣海戰中的大和號 1944年10月26日,在返航途中於錫布延海再遭美軍空襲中,被兩枚航空炸彈命擊中,整個戰役期間全艦陣亡29人負傷55人。
1944年10月28日,返回汶萊進行燃料補給。
1944年11月15日,第一戰隊解散,轉由第二艦隊直轄。
1944年11月18日,由汶萊出發向本土返航24日抵達吳港入塢修理改裝。
1944年11月24日,大和號返回日本本土吳港。
1944年11月25日,五代艦長有賀幸作大佐(海兵45期)就任。
3月19日呉空襲,正在迴避敵機攻擊的大和 1945年1月1日,編入第2艦隊第1戰隊。
1945年2月10日,編入第2艦隊第一航空戰隊。
1945年3月26日,美軍開始實施沖繩島登入戰。日本出動大量自殺飛機攻擊美國艦隊同時,企圖出動包括“大和”號在內的水面艦艇艦隊支援沖繩日軍的作戰。對此聯合艦隊司令部表示反對,但日海軍軍令部卻以大和等艦的出擊事關海軍“榮譽”為藉口,堅持出動該艦。4月5日,軍令部正式下達了命令“大和”號自殺性出擊作戰的“天一號作戰”命令,1945年4月6日,以“大和”號為旗艦的第2艦隊10艘軍艦(還有1艘巡洋艦及8艘驅逐艦)在伊藤整一海軍中將的指揮下,從瀨戶內海西部的德山錨地起航。
1945年4月5日,受命前往沖繩實施海上特攻,前往德山補給燃料4000噸。
1945年4月6日,由德山灣出擊。
1945年4月7日凌晨 ,美國潛艇在九州島西南海面發現了這支艦隊,並在東海洋面遭到美軍艦載機攻擊,被命中魚雷10枚,炸彈24枚,於14時23分大幅左傾,前部彈藥庫殉爆沉沒,第2艦隊司令官伊藤整一中將,艦長有賀幸作大佐以下2498名陣亡倖存者僅269人。
1945年4月7日,大和艦正式註銷船籍。
沉沒
”不沉”的大和的沉沒 1945年4月7日12時31分,美國海軍58特混編隊發出的第一個攻擊波,美國飛機集中攻擊大和號左舷,有4枚炸彈落到了“第3號主炮塔附近,其中2枚225公斤炸彈穿透了後部主甲板爆炸,將戰艦後部的155毫米副炮和預備射擊指揮所炸毀。
12時43分,左舷前部被1發魚雷命中,航速降至22節。13時35分,美軍第二攻擊波飛機到達。
13時37分,艦體左舷中部被3條魚雷命中(分別命中143、124、131號肋骨),使其艦體左傾達7-8度。幾乎與此同時,由於一枚450公斤重的航空炸彈炸毀了排水閥門,使該艦無法進行排水作業,艦長下令向右舷艙室對稱注水以恢復艦體平衡,航速降至18節。
13時44分,左舷中部又被2條魚雷命中,使左傾增加到15-16度,這使該艦的大口徑高炮無法使用。
14時01分,美機3顆航空炸彈擊中左舷中部。
14時07分,一條魚雷還擊中右舷150號船肋。
14時12分,大和艦左舷中部和後部又被2條魚雷命中,艦體傾斜達16-18度。由於右舷注排水區已經注滿水,只能繼續往機械室、休息室和鍋爐艙里注水。
14時15分,左舷再中1雷,航速漸漸減至7節,艦長被迫發出了棄艦令。
14時23分,主炮彈藥庫發生爆炸,全艦2498名官兵(連同司令部人員共有2767人)中僅有269人獲救(另有7名司令部人員獲救),其沉沒地點在日本九州島南西,德之島西北,東經128度04分,北緯30度43分。
艦長
有賀幸作大佐 宮裡秀德(大佐):1941年9月5日~(艤裝委員長)
高柳儀八(大佐):1941年11月1日~
松田千秋(大佐):1942年12月17日~1995年11月6日
大野竹二(大佐):1943年9月7日~
森下信衛(大佐):1944年1月25日~
有賀幸作(大佐):1944年11月25日~1945年4月7日
現況
大和沉沒殘骸 如今的大和,在北緯30度43分、東經128度04分,即長崎縣男女群島女島南方176公里,在水深345米的地方,艦橋由底部折斷並在艦首之下,而艦首朝北西(方位310度)、艦尾部朝東(方位90度)方向,右舷下是艦首部的一號副炮遺留下的原型部分,在覆轉狀態下的三號主炮塔基部結構,於後部附近的原型艦尾約170米之間,中央部的原型是剩餘艦體的中央部份,成為一個起伏,並在艦尾艦首70米以南成覆轉的狀態,約一半埋在泥中。
改裝升級
| 大和竣工時(1941年12月)艦體中央部構造 | 大和號戰艦 | 初建狀態。 |
| 大和1943年7月改裝後艦橋中央部構造 | 大和號戰艦 | 第一艦橋附近加裝了2號1型電波探信儀(21型電探,即對空警戒雷達);22型對海電探;E27型雷達信號探測器(接收敵艦雷達發出的偵測電波,以提前預警);對空觀測所加裝18cm望遠鏡;第二艦橋後部露天平台延長了3米,把作戰室甲板上取消的信號觀測所移到了這裡;兩舷副炮前後加裝25mm三聯裝機關炮。 |
| 大和1944年2月25日~3月18日改裝後艦橋中部形態 | 大和號戰艦 | 後主桅桿上安裝13號電探;拆除了兩舷的155mm副炮,加裝“八九式40口徑”127mm高炮,“九六”式25mm機關炮,4.5米高炮測距儀(淡藍色),兵員待機室。 |
| 大和1945年4月對空火力增設狀況 | 大和號戰艦 | 艦橋中部各戰位95式2米測距儀同25mm機關炮管制。 |
總體評價
大和號的姊妹艦武藏號 大和級戰列艦可以說是人類有史以來建造過的最大的戰列艦。但是,由於日本海軍的戰列艦用兵思路存在致命缺陷,致使大和級在建成後始終處於一種作用不明的曖昧狀態,以至於被當成聯合艦隊的水上豪華飯店使用。對實力不足的日本國力和日本海軍兵力來說,這無疑是巨大的浪費。
大和艦的噸位,主炮威力,裝甲厚度超過了同時代的戰列艦,是名副其實的世界最強戰列艦。由於日本人對大和艦的建造和使用採取了極為嚴格的保密措施,使得美國海軍在很長時間裡大大低估了該艦的實力,錯誤地認為其排水量不超過46000噸,採用406毫米口徑的主炮,航速30節。基於錯誤情報,美國人相信“依阿華”級戰列艦在達到33節高速的同時,其火力和裝甲厚度已經足以對付日本的新式戰列艦,而這種的判斷顯然是錯誤。
回顧整個1930年代,我們會發現當時的日本海軍對戰列艦的速度要求,並非是以能夠伴隨機動部隊航空母艦作戰為標準,而是遵循傳統的教科書式炮戰思路,即“以最快速度接敵”來確定的,其目的是儘快搶占T字陣橫列陣位。日本海大海戰後,“日本馬漢”秋山真之參謀所說的“由於聯合艦隊具有3節速度優勢,所以取得了海戰勝利”的說法對此後的日本戰列艦設計思路影響很大。在海軍中這種思想受到海軍軍令部總長伏見宮博恭親王、海軍大臣大角岑生和艦政本部部長中村良三為首的,擁有一大批可以說都是聞著對馬海戰的硝煙味成長起來的十九世紀的東洋“80後”們冬粉的死硬“戰艦派”的推崇。
至1940年代,航速33節以上的翔鶴級和大鳳級航母陸續服役,有人因此指責27節的大和級無法與其相伴行動。不過,在大和竣工時,日本海軍機動部隊主力是航速31.2節的赤城和28節的加賀,兩艘編為同一戰隊,勢必要遷就航速較慢的加賀號,而大和級與加賀的航速相差無幾。此外,龍驤號,千歲級和伊吹級(計畫中)航母的航速為29節,信濃號航母為27節,隼鷹級為25.5節,它們都可以與大和級相伴行動。
再者,包括大和級在內,日本戰列艦的防空火力並不是很強,如果僅僅作為護衛軍艦用的話,發揮不了多大價值。以高速戰列艦為航母護航,主要是為了在航母派出艦載機,無力自衛時執行對空和對海防禦任務。就防空能力而言,大和級的副炮主要是為了在近距離交戰上應對條約性巡洋艦和驅逐艦,不能作為防空炮。實際經驗則表明,在有巡洋艦、驅逐艦等軍艦編隊護衛的情況下,戰列艦的水平副炮使用價值並不大。美國北卡羅來納級以後的戰列艦,以及英國的英王喬治五世和後續的獅級和前衛級,都完全廢除了專門對海的水平副炮,全部改裝高平兩用炮。綜上所述,即使日本海軍像美國海軍那樣將大和級作為機動部隊護航力量,也並不會帶來多大的戰術優勢。同時,大和級6300噸的龐大耗油量(如果大和是以30節的高速戰列艦,燃料耗費量將更為龐大)對於經常為艦隊油船數量不足而苦惱的日本海軍來說,也是個很大的負擔。
由上述分析可以看出來,日本海軍對於大和級的使用思路和用兵方略是按照一種“理想化”的模式來安排的,也就是說,在太平洋戰爭爆發之前,按照原有的“漸減迎擊”戰略,面對占有優勢的美國海軍兵力,大和級在西太平洋固守待命,等日本海軍使用多種手段將來襲的美國主力艦隊逐漸削弱後,再在靠近日本近海的大決戰中出動大和級,將殘破的美艦隊一舉擊破。這是一種守勢戰略,然而一旦這個固定模式被打破,大和級就將變成食之無味、棄之可惜的雞肋。
大和號在特攻作戰中受損 早在決定建造超戰艦之初,海軍航空本部的激進派就曾經有過“埃及的金字塔、中國的萬里長城、日本的大和號,是世界三大馬鹿(蠢事)”的說法。甚至到1980年代,還有日本國會議員說大和型戰艦、伊勢灣排海造田工程、青函海底隧道是“昭和三大馬鹿”。大和級的單艦建造費用為1億3780萬2000日元,按當時日元的含金量計算,為12.134噸純金。相當於3艘飛龍級航母或1.6艘翔鶴級航母;建造4艘大和級戰列艦所用的資金、物料、人力足以建造12艘飛龍級或6艘翔鶴級航母。如果軍令部的老傢伙們能夠採納航空本部(山本五十六、井上成美等人)的意見,那么在日美開戰之初,日本海軍在太平洋上將有16~22艘現役航母,遠遠壓過美國海軍的3艘航母。如果軍令部和聯合艦隊能夠結合這一兵力優勢,適時地由守勢戰略思維轉變為攻勢,那么將日本海軍的最前線推至阿拉斯加-美國西海岸-巴拿馬運河一線也不是沒有可能,太平洋戰爭初期和中期的態勢也必將大幅改觀。
此外在戰時,艦隊決戰思想始終統治著大部分日本海軍高級指揮官的頭腦。他們始終幻想著以一次日本海海戰式的決戰來取得戰爭的勝利,即使不是通過戰列艦的大炮,也是通過航母的飛機。卻始終沒有意識到,這場戰爭的勝負已經不是通過一兩件新式武器所能左右的,更多的是以奪取制空權為核心,多兵種協同機動、連續作戰。當經過兩年的戰爭消耗,聯合艦隊失去了奇襲帶來的短暫優勢和微弱的技術優勢。日本海軍在1943年後才認識到航母的核心地位,並以後來發展出來以岸基航空兵和特攻作戰為中心的“航空決戰”模式,但這一切都不能抵消日美兩國在綜合實力上的巨大差距,過去幾十年來帝國積攢下來的航空精銳早已耗費殆盡,此時日本海軍不僅是在航母數量上處於劣勢,在艦載機的性能上和飛行員的素質等方面也全面劣與美國。之前一直雪藏的大和級戰列艦,已經變成為機動艦隊航母護航的角色了,被寄予厚望的460毫米巨炮只能用三式對空彈向美軍飛機實施射擊。
大和號戰列艦威力雖大,但生不逢時,恰逢戰列艦的主力艦地位開始被航空母艦所取代的時代,並且日本海軍將其當作最後決戰的王牌未經許可聯合艦隊不能動用而很少出戰,導致大和號錯過了最佳時期,缺乏戰鬥經驗,也為後來的作戰埋下隱患。大和號戰列艦的沉沒宣告了日本海軍的覆滅,也宣告了大艦巨炮時代的結束。
通俗文化
由於大和號戰列艦的名稱及日本民族文化的影響,即使在他沉沒了半個多世紀,但其在日本民眾的心中占據著一定的地位,日本在戰後拍攝了許多影視、動畫、紀錄片作品,都是以大和號戰列艦作為核心。
| 上映時間 | 類型 | 劇名 | 導演 |
| 1974-10-06 | 動畫 | 宇宙戰艦大和號 | 西崎義展 |
| 2005-12-17 | 電影 | 男人們的大和 | 佐藤純彌 |
| 2005-07-28 | 紀錄片 | 大和戰艦的悲劇 | NHK |
| 2005 | 紀錄片 | 擊沉大和號 | Keiko Hagihara Bang |
| 2010-12-01 | 電影 | 宇宙戰艦大和號 | 山崎貴 |
政治與戰爭
| 政治與戰爭 。 |


大和號戰艦
大和號戰艦
大和號戰艦
大和號戰艦 