建築領域所指“泛水”
泛水是建築上的一種防水工藝,通俗的說其實就是在牆與屋面,也就是在所有的需要防水處理的平
泛水處進行的防水處理,說白了就是用防水材料把牆角包住。和散水不同。
其構造要點及做法為
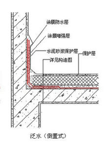
(1)將屋面的卷材繼續鋪至垂直牆面上,形成卷材防水,泛水高度不小於250mm。
(2)在屋面與垂直女兒牆面的交接縫處,砂漿找平層應抹成圓弧形或45度斜面,上刷卷材膠粘劑,使卷材膠粘密實,避免卷材架空或折斷,並加鋪一層卷材。
(3)做好泛水上口的卷材收頭固定,防止卷材在垂直牆面上下滑。一般做法:在垂直牆中鑿出通長的凹槽,將卷材收頭壓入凹槽內,用防水壓條釘壓後再用密封材料嵌填封嚴,外抹水泥砂漿保護。凹槽上部的牆體亦應做防水處理。
通俗解釋:泛水是指屋面女兒牆、挑檐或高低屋面牆體的防水做法,其主要作用就是保證女兒牆、挑檐、高低屋面牆不受雨水沖刷,以及保護屋面其餘地方的防水層(不至於進水)。
書中解釋:突出於屋面之上的女兒牆、煙囪、樓梯間、變形縫、檢修孔、立管等壁面與屋頂的交接處,將屋面防水層延伸到這些垂直面上,形成立鋪的防水層,稱為泛水。
房屋建築學名詞目錄
| 房屋建築學是建築學的分支學科,內容涉及概論、建築平面設計、建築剖面設計、建築體型和立面設計、常用建築結構概述、建築防火與安全疏散、民用建築構造概述、基礎與地下室、牆體、樓地層等。 |

