簡介
平面圖是地圖的一種。當測區面積不大,半徑小於10公里(甚至25公里)的面積時,可以水平面代替水準面。在這個前提下,可以把測區內的地面景物沿鉛垂線方向投影到平面上,按規定的符號和比例縮小而構成的相似圖形,稱為平面圖。
測繪學
雖然地球表面是個曲面,但在極小的範圍內,可以把它當做平面,因為地面實形和圖上實形間的誤差已經非常小,可以忽略不計(如在2600KM2的範圍內進行地行測量,要繪成1∶5000的大比例尺圖上,半徑誤差小到0.072mm)。在
平面圖h平面圖一個圖能畫在平面上,除結點之外,再沒有邊與邊相交.
面、邊界和面的次數由連通平面圖G的邊圍成的其內部不含G的結點和邊的區域是面,常用r表示.圍成面的各邊組成的迴路是邊界.邊界迴路的長度是面的次數,記作deg(r).
平面圖定義:將地面上各種地物的平面位置按一定比例尺、用規定的符號縮繪在圖紙上,並注有代表性的高程點的這種圖。
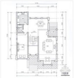
房屋建築學
建築平面圖簡稱平面圖,是建築施工中比較重要的基本圖。平面圖是建築物各層的水平剖切圖,假想通過一棟房屋的門
建築平面圖建築平面圖既表示建築物在水平方向各部分之間的組合關係,又反映各建築空間與圍合它們的垂直構件之間的相關關係。
圖論
概述
在圖論中,平面圖是可以畫在平面上並且使得不同的邊可以互不交疊的圖。而如果一個圖無論怎樣都無法畫在平面上,並使得不同的邊互不交疊,那么這樣的圖不是平面圖,或者稱為非平面圖。完全圖K5和完全二分圖K3,3是最“小”的非平面圖。平面圖的條件
庫拉托夫斯基定理波蘭數學家卡齊米日·庫拉托夫斯基提出的一類禁忌準則(指滿足某種條件的圖就一定無法具有某個性質)中,也包括
平面圖一個有限圖(頂點數和邊數有限的圖)是平面圖若且唯若它並不包含一個是(有五個頂點的完全圖)或(三個頂點的二部圖)的分割的子圖。
其中,一個圖A是另一個圖B的分割是指:A是在B的基礎上,在某些邊的中間加上頂點而得到的新的圖。用圖的同胚理論來說,就是:一個有限圖是平面圖若且唯若這個圖不包含任何同胚於或的子圖。
這個定理的一般化是羅伯森-西摩定理。
歐拉公式
一個平面圖將平面分成若干個互不相通的封閉區域,以及圖的外部的區域。其中,圖的外面的區域稱為圖的外部面,而圖裡面每個被頂點和邊分割出來的封閉並連通的區域稱為圖的內部面。圍成每個面圖的每個面至少對應著三條邊。
平面圖的頂點個數、邊數和面的個數之間有一個以大數學家萊昂哈德·歐拉命名的公式:
V-E+F=C+1
其中,V是頂點的數目,E是邊的數目,F是面的數目,C是組成圖形的連通部分的數目。當圖是單連通圖的時候,公式簡化為:
V-E+F=2

