吊籃術語
吊籃,指籃球比賽中拋射的俗稱.所謂拋射,即為一種特殊的投籃方式:球所經過的高度差更大,這樣可以防止封蓋,但這對運動員手腕力量的要求是很嚴的,多為小個子運動員所使用。
施工吊籃
簡介
吊籃分類
根據施工難度和施工地點不同可生產煙囪用環形吊籃、船用掛式吊籃、爐內檢測吊籃、橋用超長吊籃、電梯安裝吊籃、軌道式滑移吊籃等各種非標吊籃,根據材質分可分為鋼架電動吊籃、鋁合金電動吊籃,根據起吊的動力來源不同分為手動吊籃和電動吊籃等。
結構
(一)懸吊平台
懸吊平台是施工人員的工作場地,他由高低欄桿、籃底和提升機安裝架四個部分用螺栓連線組合而成。
(二)提升機
提升機是懸吊平台的動力部件,採用電動爬升式結構。
提升機由電磁製動三相異步電機驅動,經渦輪蝸桿和一對齒輪減速後帶動鋼絲繩輸送機構使提升機沿著
工作鋼絲繩上下運動,從而帶動懸吊平台上升或者下降。
(三)安全鎖
安全鎖是懸吊平台的安全保護裝置,當工作鋼絲繩突然發生斷裂或者懸吊平台傾斜到一定角度時,能自動
快速的鎖牢安全鋼絲繩,保證懸吊平台不墜落或者繼續傾斜。
(四)懸掛結構
懸掛機構是架設於建築物上部,通過鋼絲繩來懸吊懸掛平台的裝置。
(五)電氣控制箱
電氣控制箱是用來控制懸吊平台運動的部件,主要元件安裝在一塊絕緣板上,萬能轉向開關、電源指示燈、
啟動按鈕和緊急停機按鈕裝置箱板門板上。
操作
1、操作人員必須身體健康,並經過專業培訓考試合格,在取得有關部門頒發的操作證後方可獨立操作。學員必須在師傅的指導下進行操作。
2、安裝後進行下列各項檢查試驗,確認正常後,方可交付使用。
1)檢查屋面機構的安裝,應配合良好,錨固可靠;懸臂長度及連線方式均正確;
2)鋼絲繩無扭結、擠傷、鬆散;磨損、斷絲不超限,懸掛、繞繩方式及懸重均正確;
3)防墜落及外鏇轉機構的安全保護裝置齊全可靠;
4)電機無異響、過熱,啟動正常、制動可靠;
5)吊籃應做額定起重量125%的靜超載試驗和110%的動超載試驗,要求升降正常,限位裝置靈敏可靠。
3、作業前應進行下列檢查:
1)屋面機構、懸重及鋼絲繩符合要求;
2)電源電壓應正常,接地(接零)保護良好;
3)機械設備正常,安全保護裝置齊全可靠;
4)吊籃內無雜物,嚴禁超載。
4、啟動後,進行升降吊籃運轉試驗,確認正常後,方可作業。
5、作業中,發現運轉不正常時,應立即停機,並採取安全保護措施。未經專業人員檢驗修復前不得繼續使用。
6、利用吊籃進行電焊作業時,必須對吊籃、鋼絲繩進行全面防護,不得用其作為接線迴路。
7、作業後,吊籃應清掃乾淨,懸掛離地面3m處,切斷電源,撤去梯子。
保養
1、每天工作結束時,做好懸吊平台、鋼絲繩和懸掛機構的清潔工作,清理各種垃圾、塗料及表面粘附灰漿雜質。
2、吊籃(尤其是電力系統)應採取防水、防潮措施,防止受潮進水造成電氣短路。
3、地面多餘鋼絲繩應盤放紮好。吊籃停用拆除後,應將各種繩索、電纜線盤好,分解構件放齊,連線件集中,妥善存放,防止霉變、腐蝕、變形和散失。
4、安全繩的自鎖器每次使用後,應在彈簧處加防鏽滑,保持動作靈活。
5、減速箱及傳動裝置首次使用三個月後須跟換潤滑油,以後每月加一次潤滑油,每六個月換一次潤滑油。
6、安全鎖活動部位每月加一次潤滑油。
7、電氣短路、電氣元件及電線接點處必須保持乾燥、清潔,不得有油污積垢。
8、在安全、日常、定期檢查中和作業過程中,發現故障或異常時,應立即停止使用,由專職人員進行檢修,嚴禁吊籃“帶病”使用。
手動吊籃定型製作,其產品質量必須符合行業標準《建築施工安全檢查標準》(JGJ59-2011)和依據《高處作業吊籃》(GB19155-2003)製作、使用的吊籃腳手架,都必須對吊籃及挑梁結構進行強度和剛度驗算,鋼絲繩安全係數驗算,並經過總工程師、總監理工程師審批合格後方可製作及組裝搭設,製作及組裝搭設後,嚴格檢查質量,經上級技術、質量、安全部門和監理工程師驗收合格後投入使用,確保全全施工。
手動吊籃
手動吊籃吊籃架由空腹型鋼焊接(或錨栓連線)成格構式籃型架。一組吊籃長不得超過3.0m,寬0.7~1.0m,外側及兩端防護欄桿高不低於1.50m,每道欄桿間距不大於0.50,擋腳板不低於0.18m,吊籃內側必須於0.60m和1.20m,高處各設護身欄桿一道,擋腳板不低於0.18m,立桿縱距不得大於2.0m。腳手板使用的鋼跳板,不能有裂紋、腐蝕、嚴重變形、必須鋪設嚴密、有防止物品掉出的措施。每塊鋼跳板下邊必須由三道橫樑支撐,鋼跳必須用8號鐵線鎖牢,嚴禁探頭跳。吊籃外側與兩端用2000目安全網密封;高度超過30m的,還須在吊籃頂部設防護頂棚。吊籃內側兩端應有可伸縮的護牆輪裝置,使吊籃與建築物在工作狀態時能靠緊,以減少架體晃動。多組吊籃同時使用時,兩組吊籃之間的間隙不得大於0.20m,內側距牆間隙為0.10~0.20m。
注意事項
1、安裝地面應選擇水平面,遇有斜面時,應在角輪下面可靠墊平,如安裝面是防水保溫層面時,應在前、后座下加墊2.5~3厘米厚木板,防止壓壞防水保溫層面。
2、可調式懸掛支架的調節支座高度應使前梁下側面略高於女兒牆高度
3、前梁伸出端懸伸長度額定調整範圍為0.3~1.5米。超出額定懸伸長度時,必須採取可靠的加強措施和額定工作載荷。
4、前、后座間距在場地允許條件下,應儘量調整至最大距離。
5、兩個支架間距離應調整至前梁懸伸端點間距離比懸吊平台長度小3~5厘米。
6、張緊加強鋼絲繩時,應使前梁略上翹3~5厘米,產生預應力,提高前梁鋼度。
套用常識
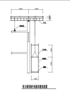
吊籃懸臂樑型懸掛機構:
1、適用於所有吊籃及屋面結構,後面壓配重塊;
2、鋼絲繩後掛式設計,改善了懸臂受力狀況,鋼絲繩收放方便、安全;
3、高度可調,懸臂伸出量可調:700mm~1500mm。
女兒牆夾鉗型懸掛機構:
1、結構簡單,不需配重塊,安裝方便,運輸便利,節省人工和費用;
2、主要適用於女兒牆強度較高的建築物或結構屋;
3、根據用戶需要,還可提供女兒牆安裝的獨立安全繩懸掛架。
安裝步驟
1、可調式懸掛支架的調節支座高度應使前梁下側面略高於女兒牆(或其它障礙物)高度,可能情況下,應在懸掛機構定位後,在前梁伸出端下側面與女兒牆間加墊木塊固定。
2、前梁伸出端懸伸長度額定調整範圍為0.3~1.5米。
3、前、后座間距在場地允許條件下,應儘量調整至最大距離。
4、兩個支架間距離應調整至前梁懸伸端點間距離比懸吊平台長度小3~5厘米。
5、張緊加強鋼絲繩時,應使前梁略上翹3~5厘米,產生預應力,提高前梁鋼度。
6、裝夾鋼絲繩時,繩夾的數量不少於3個,U形開口再鋼絲繩尾端對側,且方向一致。繩夾應從吊裝點處依次夾緊,並在最後一個繩夾和前一個繩夾間,應使鋼絲繩有少許拱起。繩夾螺母擰緊時,應將鋼絲繩夾扁至1/2~1/3直徑。
7、垂放鋼絲繩時,應將鋼絲繩自由盤放在樓面,將繩頭仔細抽出後沿前面緩慢向下滑放,嚴禁將鋼絲繩成盤向下拋放。鋼絲繩放完後應將纏結的繩小心分開壓住,地面多餘的鋼絲繩應仔細盤好紮緊,不得任意散放地面。
安全規則
吊籃是一種懸空提升人機具,在使用吊籃進行施工作業時必須嚴格遵守使用安全規則。
作業人員安全規則
1、吊籃操作人員必須是經過培訓,考核合格後取得有效證明方可上崗操作。吊籃必須指定人員操作,嚴禁未經培訓人員或未經主管人員同意擅自操作吊籃。
2、作業人員作業時佩戴安全帽和安全帶,安全帶上的自動鎖扣應扣在單獨牢固固定在建(構)築物上的懸掛生命繩上。
3、作業人員酒後、過度疲勞功情緒異常時不得上崗作業。
4、雙機提升的吊籃必須有二名人員進行操作作業,嚴禁單人升空作業。
5、作業人員不得穿著硬底鞋、塑膠底鞋、拖鞋或其它滑的鞋子進行作業,作業時嚴禁在懸吊平台內使用梯、簦、擱板等攀高工具和在懸吊平台外另設吊具進行作業。
6、作業人員必須在地面進出吊籃,不得在空中攀緣窗戶進出吊籃,嚴禁在懸空狀態下從一懸吊平台攀入另一懸吊平台。
吊籃對比
隨著國內高層建築的大量興建,城市環境美化要求的提高,高空作業電動吊籃普及迅速。在國外已開發國家,推廣使用高處作業電動吊籃已有40年歷史。我國從八十年代開始參照國外技術,進行國產化設計,逐步投入批量化生產。建築外牆裝飾是一項繁重的綜合性工程,施工量大,工期長,使用勞動力多,經濟效益低。傳統的施工方法有: a、採用簡易建築吊籃施工。從建築物頂部懸掛鋼絲繩,配置吊船,上下移動用手搬葫蘆,機具簡陋,使用不便,無安全保障,勞動強度大,效率低。 b、沿建築物立面搭設腳手架。此方法費工、費時,占地面積大,需要鋼材多,價格高,運輸量大。 高空吊籃的使用克服了上述施工存在的缺點,安裝方便,電動升降,作業效率高,占地面積小,配置有工作繩和安全繩,安全係數提高,適合各種複雜施工環境。如建築物外牆施工作業和維修裝飾作業。在大城市高層建築、樓房密集區的施工作業,住宅小區的維修粉刷,更能顯示其經濟、方便、安全、高效的優越性。
礦井吊籃
煤礦工人用於存放衣物及各類勞動保護用品的藍裝裝置,該裝置吊於澡堂天花板上,使用鑰匙控制升降,藍內裝有暖氣用於烘乾潮濕衣服等物品。
安裝流程
準備工作
開箱後,按照包裝箱內發貨清單,清點各零件部件的數量。檢查各零部件是否有損壞、變形等異常情況。
安裝調試
(1)將插桿插入三角形的前支架套管內,根據女兒牆高度,插桿的高度在1.15-1.75米的範圍內調節,用
螺栓固定,完成前座安裝。
(2)將插桿插入後支架內,插桿的高度與前支架插桿等高,用螺栓固定,完成后座安裝。
(3)將前梁、後梁分別裝入前、後支架的插桿套管內,用中梁將前梁、後梁套連,並根據現場情況選定前梁的懸伸,前後支架之間的距離應放至最大,將上支柱放置於前座的插桿套管上。小連線套置於後支架的插桿套管上,用螺栓固定,支架組裝完成。
(4)無論是安裝還是移位,懸掛機構必須滿足抗傾覆。要注意的是:前梁伸出部分長度通常為1.1米-1.3米。最大伸出量不得超過1.7米,如果由於施工需要,前梁伸出長度大於1.3米時,必須採取相應的安全措施,相應地減少工作載荷或增加配重,保證抗傾覆安全係數不於2.
(5)將加強鋼絲繩一端與前樑上連線套的滾輪固定,裝鋼絲繩夾擰緊,索具螺鏇扣的開口端,鉤住後支架插幹上小連線套的銷軸,鋼絲繩的另一端上支柱繩輪、穿過索具螺鏇扣的封閉端後用鋼絲繩夾固定,調節螺鏇扣的螺桿,使加強鋼絲繩緊繃。【注意:鋼絲繩應正確安裝並擰緊】
(6)將工作鋼絲繩、安全繩按上述方法分別固定在前梁鋼絲繩吊板上,並在安全鋼絲適當處安裝上限位塊。
【注意:使用的鋼絲繩的結構、規格必須正確,應直接從我廠購買定製鋼絲繩。請根據使用說明書的要求,使用規定結構、直徑的鋼絲繩,不同的提升機應使用不同的鋼絲繩,不得搞錯。】提升機鋼絲繩的使用:ZLP630吊籃使用卷繩方式為"a"形的提升機,應使用4x31sw+Nf-8.3結構的鋼絲繩,直徑為8.3mm。
(7)檢查上述各部分的安裝是否正確,尤其是鋼絲繩夾是否按要求安裝。確認無誤後,將懸掛機構放逐於工作位置,前吊板伸出作業面60cm左右,兩懸掛機構前梁的內測間距等於工作平台的長度。配重平均放置在后座上,並上緊防盜螺栓。
將工作鋼絲繩、安全鋼絲繩緩緩放下。
平台安裝
(1)將懸吊平台的幾個底架墊高200mm以上放平,並排成一直線,分別裝上欄桿,將低的欄桿放於工作面的一側,認準螺栓長短,各孔穿進螺栓,方管上的螺栓兩端應使用大墊圈,將底架與欄桿、欄桿與欄桿連線,螺栓暫不擰緊。提升機安裝架安裝在欄桿的兩端,各孔穿進螺栓。
(2)檢查以上安裝是否正確,確認無誤後,將所有螺栓擰緊,將腳輪安裝在提升機安裝架上,用螺栓固定。
安裝說明
(1)將提升機安裝在提升機安裝架上,用所配置的銷軸緊固。【ZLP630提升機下部用一套銷軸,上部用所配的螺栓緊固。】
(2)將安全鎖裝在安裝架的安全鎖支板上,用螺栓固定。將上限位開關安裝在安全鎖上的螺栓上並緊固。
(3)將電器掛在工作平台的後欄桿的中間部位,把提升機電機的插頭、手握開關的插頭接到電器箱下相應的插孔內。按三相五線制連線電源線,確認無誤後插入電源插頭,接通電源。
5、試運轉
(1)操作人員上機前必須戴好安全帽,系好安全帶,並將安全帶鎖扣在可靠固定在建築物上部的安全繩鎖上,安全帶、安全繩鎖和自鎖器均應符合有關標準。
(2)打開電器箱,合上電源開關後關上電器箱門。檢查電鈴、限位開關、手握開關、轉換開關、電動機等應處於正常狀態。
(3)電器箱上的轉換開關拔向待穿鋼絲繩的電機一側,先將工作鋼絲繩穿過擺臂式防傾斜安全鎖的套環後插入提升機上端進繩口內,啟動上行開關,提升機可自動穿繩。打開安全鎖,安全鋼絲繩從安全鎖上端孔插入。另一端同樣操作。
(4)將電器箱門板上的選擇開關拔到中間位置,啟動上行開關,將懸吊平台升到離地面1米處,在工作鋼絲繩、安全鋼絲繩距地面15cm處安裝重錘。
(5)檢查搖臂式防傾斜安全鎖工作狀態,具體步驟:將轉換開關拔至一側,按下行開關,使懸吊平台傾斜,當懸吊平台傾斜至3度-8度時,安全鎖應能鎖住鋼絲繩,將懸吊平台升起,安全鎖自動復位,安全鋼絲繩在安全鎖內處於自由狀態。(若使用離心觸髮式安全鎖,可在開鎖狀態上,在安全鎖上方用手猛拉動安全鋼絲繩,安全鎖應能鎖住安全鋼絲繩)
(6)檢查提升機上、下運行情況,懸吊平台應能保持平衡,上限位開關接觸上限位塊後應停止運行,並且電鈴警報。
(7)空載試驗:操作人員站在地面操作,懸吊平台空載狀態下上、下運行,整個過程應升降平衡,無異常現象。電路靈敏可靠,各連線處無鬆動現象。
(8)近地面載人操作:操作人員站在懸吊平台內上、下運行,主要檢查電動機啟動、制動情況和手動滑降情況。
(9)額定載荷試驗:引出控制開關,操作人員站在地面操作,懸吊平台內均勻裝在額定載荷,在1米的行程中升降,至少三次。在運行中無滑降現象和異常聲響。
(10)全部檢查合格後方可投入使用。
應急處理
在施工中,如遇到如下特殊情況,應保持鎮靜,並採取相應應急措施
l、施工突然停電
施工中突然停電時,應立即切斷電箱電源開關,防止送電時發生意外,待接到來電通知後再合上電源開關,並經檢查正常後開始工作。
如停電後需返回地面時,應同時抬起兩端提升機電機的手動滑降手柄,使懸吊平台自由滑降至地面。
2、懸吊平台升、降過程中鬆開按鈕後不能停止
懸吊平台在升、降過程中如鬆開按鈕後仍不能停止時,應立即按下電箱門上的紅色緊停開關,使懸吊平台緊急停止。然後切斷電箱電源開關,
檢查接觸器接觸情況,清理接觸器表面粘附油垢雜質,手按接觸器能恢復正常動作後,合上電源開關,鏇動緊停開關使其恢復原位後繼續工作。
如故障仍不能排除時,應切斷電源開關,採用手動滑降方法將懸吊平台降至地面進行檢修。
3、懸吊平台因水平傾斜而自動鎖繩
懸吊平台在升、降過程中或一端滑降面水平傾斜至一定範圍時,安全鎖自動鎖繩,此時應立即停機,然後將電箱上的轉換開關轉向平台低端,再按上升按鈕將懸吊平台降至地面,檢查並調整兩端提升機中電磁製動器間隙至符合要求;或檢查兩端電機轉速差異,如差異明顯應更換電機。
4、安全鎖在工作時應該時開啟的,處於自動工作狀態,無需人工操作。
它的作用是當提升系統出現故障而導致吊籃超速下降時,能自動鎖定在安全鋼絲繩上,使吊籃停止下降保證人機安全。當故障排除,需重新打開安全鎖時,首先應點動吊籃上升,使安全鎖稍松後,方可扳動開啟手柄,打開安全鎖。嚴禁在安全鋼絲繩繃緊情況下,硬性扳動開啟手柄,以免損壞安全鎖。不要在安全鎖鎖閉後開動機器下降這樣極易引起提升機嚴重損壞。
5、工作鋼絲繩因松股,扭結或提升機別件損壞而卡塞在提升機內
工作鋼絲繩發生卡塞在提升機內時,應立即停機。嚴禁反覆升、降進行強行解脫。在確保全全的情況下,撤離懸吊平台內的施工人員,
派遣經過專業培訓的維修人員進人懸吊平台進行維修。首先將安全鋼絲繩纏繞於兩端提升機安裝架上,用繩扣將安全鋼絲繩兩端扣緊。然後鬆開兩安全鎖擺臂滾輪的保護環(參見圖五),將工作鋼絲繩與滾輪脫開,使兩端安全鎖處於鎖繩狀態。在採取上述安全措施後,取下提升機檢查,並退出卡塞的鋼絲繩,必要是可將故障鋼絲繩截斷和打開提升機箱蓋進行檢查,並小心取出留在提升機內的鋼絲繩。同時在懸掛機構的相應位置換上新的鋼絲繩,將換好鋼絲繩重新放下和穿人提升機內至拉緊鋼絲繩,然後將工作鋼絲繩裝人安全鎖擺臂滾輪槽中,裝好保護環,使安全鎖打開後,將懸吊平台提升0.5米左右停止,取除安全鋼絲繩上的繩扣和將安全鋼絲繩放至懸垂位置,再將懸吊平台下降至地面,經過提升機進行嚴格檢查、維修後,方允許繼續使用。
6、工作鋼絲繩斷裂時
懸吊平台一端工作鋼絲繩斷裂時,懸吊平台發生傾斜,至一定傾斜位置時安全鎖自動閉合,將懸吊平台鎖住在安全鋼絲繩。此時,懸吊平台內施工人員應保持鎮靜,嚴禁在懸吊內奔跑和蹦跳,並按工作鋼絲繩卡塞在提升機內時的緊急措施進行處理。

