工作原理
水泵2、葉片泵:利用葉片和液體相互作用來輸送液體。
容積式泵是依靠工作元件在泵缸內作往復或迴轉運動,使工作容積交替地增大和縮小,以實現液體的吸入和排出。工作元件作往復運動的容積式泵稱為往復泵,作迴轉運動的稱為迴轉泵。前者的吸入和排出過程在同一泵缸內交替進行,並由吸入閥和排出閥加以控制;後者則是通過齒輪、螺桿、葉形轉子或滑片等工作元件的鏇轉作用,迫使液體從吸入側轉移到排出側。容積式泵在一定轉速或往複次數下的流量是一定的,幾乎不隨壓力而改變;往復泵的流量和壓力有較大脈動,需要採取相應的消減脈動措施;迴轉泵一般無脈動或只有小的脈動;具有自吸能力,泵啟動後即能抽除管路中的空氣吸入液體;啟動泵時必須將排出管路閥門完全打開;往復泵適用於高壓力和小流量;迴轉泵適用於中小流量和較高壓力;往復泵適宜輸送清潔的液體或氣液混合物。
總的來說,容積泵的效率高於動力式泵。動力式泵靠快速鏇轉的葉輪對液體的作用力,將機械能傳遞給液體,使其動能和壓力能增加,然後再通過泵缸,將大部分動能轉換為壓力能而實現輸送。動力式泵又稱葉輪式泵或葉片式泵。離心泵是最常見的動力式泵。動力式泵在一定轉速下產生的揚程有一限定值,揚程隨流量而改變;工作穩定,輸送連續,流量和壓力無脈動;一般無自吸能力,需要將泵先灌滿液體或將管路抽成真空後才能開始工作;適用性能範圍廣;適宜輸送粘度很小的清潔液體,特殊設計的泵可輸送泥漿、污水等或水輸固體物。動力式泵主要用於給水、排水、灌溉、流程液體輸送、電站蓄能、液壓傳動和船舶噴射推進等。
其他類型的泵是指以另外的方式傳遞能量的一類泵。例如射流泵是依靠高速噴射出的工作流體,將需要輸送的流體吸入泵內,並通過兩種流體混合進行動量交換來傳遞能量;水錘泵是利用流動中的水被突然制動時產生的能量,使其中的一部分水壓升到一定高度;電磁泵是使通電的液態金屬在電磁力作用下,產生流動而實現輸送;氣體升液泵通過導管將壓縮空氣或其他壓縮氣體送至液體的最底層處,使之形成較液體輕的氣液混合流體,再借管外液體的壓力將混合流體壓升上來。
類型
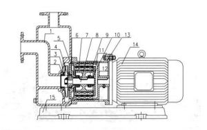
離心泵
1、離心泵的工作原理

2、離心泵的一般特點
(1)水沿離心泵的流經方向是沿葉輪的軸向吸入,垂直於軸向流出,即進出水流方向互成90°。
(2)由於離心泵靠葉輪進口形成真空吸水,因此在起動前必須向泵內和吸水管內灌注引水,或用真空泵抽氣,以排出空氣形成真空,而且泵殼和吸水管路必須嚴格密封,不得漏氣,否則形不成真空,也就吸不上水來。
(3)由於葉輪進口不可能形成絕對真空,因此離心泵吸水高度不能超過10米,加上水流經吸水管路帶來的沿程損失,實際允許安裝高度(水泵軸線距吸入水面的高度)遠小於10米。如安裝過高,則不吸水;此外,由於山區比平原大氣壓力低,因此同一台水泵在山區,特別是在高山區安裝時,其安裝高度應降低,否則也不能吸上水來。
軸流泵
1、軸流泵的工作原理
軸流泵與離心泵的工作原理不同,它主要是利用葉輪的高速鏇轉所產生的推力提水。軸流泵葉片鏇轉時對水所產生的升力,可把水從下方推到上方。
軸流泵的葉片一般浸沒在被吸水源的水池中。由於葉輪高速鏇轉,在葉片產生的升力作用下,連續不斷的將水向上推壓,使水沿出水管流出。葉輪不斷的鏇轉,水也就被連續壓送到高處。
2、軸流泵的一般特點
(1)水在軸流泵的流經方向是沿葉輪的軸向吸入、軸向流出,因此稱軸流泵。
(2)揚程低(1~13米)、流量大、效益高,適於平原、湖區、河區排灌。
(3)起動前不需灌水,操作簡單。
混流泵
1、混流泵的工作原理
由於混流泵的葉輪形狀介於離心泵葉輪和軸流泵葉輪之間,因此,混流泵的工作原理既有離心力又有升力,靠兩者的綜合作用,水則以與軸組成一定角度流出葉輪,通過蝸殼室和管路把水提向高處。
2、混流泵的一般特點
(1)混流泵與離心泵相比,揚程較低,流量較大,與軸流泵相比,揚程較高,流量較低。適用於平原、湖區排灌。
(2)水沿混流泵的流經方向與葉輪軸成一定角度而吸入和流出的,故又稱斜流泵。
常用的農用泵
離心泵
水泵1、單級單吸離心泵
老的泵型號有BA、B型單級單吸離心泵,80年代,我國根據國際標準和排灌機械實際情況,對離心泵產品進行更新換代研製工作,並生產IB型、IQ型單級離心泵系列產品,已列為國家專業標準和行業標準。
單級單吸離心泵,水由軸向單面進入葉輪,葉輪只有一個,因此稱為單級單吸離心泵。其特點是,與混流泵、軸流泵相比,揚程較高,流量較小,結構簡單,使用方便。
IQ型單級單吸離心泵(又稱輕小型離心泵)是針對國國情並滿足用戶提出結構簡單、重量輕、價格低、性能好和配套方便的要求而設計的,共有84種產品,分3個派生系列,413個規格型號。
(1)性能範圍泵口徑50~200毫米,流量12.5~400立方米/時,揚程8~125米,配套動力有柴油機直聯、皮帶傳動,電動機直聯,功率1.1~110千瓦,轉速1450~2900轉/分。
(2)結構型式輕小型離心泵為軸向吸入單級單吸懸架式離心泵,泵體後開門,出口位於中心向上,後蓋為壓嵌式,軸承體與泵體直接聯結,泵腳位於泵體下方,軸承用黃油潤滑,軸封分為軟填料、機械密封、橡膠油封三種。葉輪均為閉式,傳動分為聯軸器傳動和皮帶傳動兩種。泵葉輪轉向:從泵進口方向看,葉輪轉向為順時針,當泵與柴油機直聯傳動時,為逆時針。泵出口可裝置手動泵,可去掉底閥,減少水力損失,並能使泵自吸。
2、單級雙吸離心泵
它是從葉輪兩面進水的單級雙吸離心泵,因泵蓋和泵體是採用水平接縫進行裝配的,又稱為水平中開式離心泵。與單級單吸離心泵相比,效率高、流量大、揚程較高。但體積大,比較笨重,一般用於固定作業。適用於丘陵、高原中等面積的灌區,也適用於工廠、礦山、城市給排水等方面。
單級雙吸離心泵有S型、Sh型、SA型、SLA型幾種型號,S型與Sh型的區別是,從驅動端看,S型泵為順時針方向鏇轉,Sh型為逆時針方向鏇轉。SLA型為立式單級雙吸離心泵。
S型泵性能範圍流量160~18000立方米/時,揚程12~125米,進水口直徑150~1400毫米,轉速2950、1450、970、730、585、485、360轉/分。
(1)D型泵性能範圍流量6.3~720立方米/時,揚程16~600米,進水口徑:50、75、100、125、150、200毫米,其中50~125毫米泵型為高轉速2950轉/分,150~200毫米泵型轉速為1480轉/分。
(2)結構型式D型多級離心泵為臥式多級(2~12級),葉輪為單吸,泵體為分段式。當首級葉輪為雙吸時,用DS表示,當同時規定有兩種轉速時,低速用DA表示,用於鍋爐給水的多級離心泵,用DG表示。
3、自吸離心泵
自吸泵是靠泵自身的特殊結構而產生自吸作用的單級單吸離心泵,稱為自吸離心泵。和普通離心泵相比,在泵體結構上有顯著差別:一是泵進口位置提高,有時還裝上吸入閥;二是在出水側設定了一個氣水分離室。
泵外自吸泵,是在泵外加有自吸裝置,如帶有鏇渦泵、水環真空泵、射流泵以及手動泵等。
自吸泵與普通離心泵相比,具有結構緊湊、使用操作簡單,不但省去了起動前灌大量引水的麻煩,也省去了進水管低閥,減少了進水阻力,增加泵的出水量,但與同規格的普通離心泵的效率相比要低3%~5%。自吸泵較多的是套用在輕小型噴灌機組和管道灌機組上。
潛水電泵
磁懸浮潛水電泵它實現了世界潛水電泵領域重大突破,有效解決了傳統潛水電泵的種種弊端:如轉換效率偏低、耗電過高、揚程受限、軸承易損、檢修頻繁等。廣泛套用於工礦企業的供排水、農田灌溉及高原、山區供水等領域。
磁懸浮潛水電泵它以獨有的專利技術改變了潛水電泵的製造工藝,轉換效率達到令人震驚的新水平,創造了巨大節能降耗效益。
磁懸浮潛水電泵解決了制約世界潛水電泵領域發展的軸向力問題,潛水電泵的揚程有了突破性提高,填補了超高揚程(單機揚程設計到上千米)和超大流量(高承載)潛水電泵的市場空白;揚程、流量曲線趨於平緩。其轉換效率、單機最高揚程均居世界領先地位。
磁懸浮潛水電泵是新一代潛水電泵,它實現了立軸磁懸浮(在不同工況下保持高效率)、不磨損,使用時間及檢修周期延長數倍,省去頻繁的定期檢修工作,可連續運轉數萬小時,節省維修、檢修費用。
磁懸浮潛水電泵通過了國家級試驗室、山東省泵類產品質量檢測中心檢測。試驗數據證明,磁懸浮潛水電泵的轉換效率超過傳統潛水電泵,用戶使用情況結合實驗數據及領域內對比,進一步證明其高效節能、轉換效率世界領先、單機揚程世界領先及高承載、超大流量、免檢修、長壽命等特點!
採用高分子複合材料
在水泵工作過程中,泵內流動的水受到其與流道和泵葉輪表面的摩擦以及水身粘度的影響,泵所消耗的能量主要用於抵抗水表面的流動摩擦力及渦流阻力。水在流動過程中所消耗的能量(水頭損失)就是用來克服內摩擦力和水與設備界面的摩擦力。如果泵、葉輪表面光滑(這種表面稱為水力光滑表面)表面阻力較小。消耗能量就小,在水泵過流面和葉輪上噴塗高分子複合材料,使其表面形成水力光滑表面,超光滑表面塗層表面光潔度是經過拋光後不鏽鋼的20倍,這種極光滑的表面減少了泵內流體的分層,從而減少泵內部紊流,降低了泵內的容積損失和水力損失,降低了電耗。達到降低水流阻力損失的目的,從而提高水泵的水力效率,同時在一定程度上也可提高機械效率和容積效率。塗層分子結構的緻密性,能隔絕空氣、水等介質和水泵葉輪母材的接觸,最大程度減少電化學腐蝕及鏽蝕。另外,高分子複合材料質是高分子聚合物,具有抗化學腐蝕性,可以提高泵的抗腐蝕性,能大大增強泵抵抗沖蝕和抗腐蝕能力。
用途
實際套用
在造船、石油開採、載重機等方面廣泛套用。2008年船舶產量達到15000噸,載重噸數量占世界市場的21%,到2015年將成為世界第一造船大國。為了保證船的正常航行或系泊,滿足船員和旅客的生活需要,每條船都要配有一定數量的、能起相應作用的船用泵,船用泵是重要的輔機之一。據不完全統計,在各種船舶輔助機械設備中,各種類型和不同用途的船用泵的總數量,約占船舶機械設備總量的20%-30%,船用泵的價格在船舶設備費用中所占的比重也比較大。在總的造價中,船用泵約占船設備費用的4%-8%,一般情況下,一條中型以上船舶的船用泵採購可達1000萬元以上。說到重點用泵市場,不可不說我國已經完工的"西氣東輸"工程,"西氣東輸"工程中同樣需要泵類產品。同時國家還要修建其它的輸送天然氣管線,在這些工程中也都需要大量的泵類產品。
不同用途
水泵具有不同的用途,不同的輸送液體介質,不同的流量、不同揚程的範圍,因此,它的結構形式當然也不一樣,材料也不同,概括起來,大致可以分為:
1、城市供水2、污水系統3、土木、建築系統4、農業水利系統5、電站系統
6、化工系統7、石油工業系統8、礦山冶金系統9、輕工業系統10、船舶系統
分類
按用途分類
輸送泵、循環泵、消防泵、試壓泵、排污泵、計量泵、衛生泵、加藥泵、糊化泵、輸液泵、消泡泵、流程泵、輸油泵、給水泵、排水泵、疏水泵、挖泥泵、噴灌泵、增壓泵、高壓泵、保溫泵、高溫泵、低溫泵、冷凝泵、熱網泵、冷卻泵、暖通泵、深井泵、止痛泵、化療泵、抽氣泵、血液泵、抽料泵、除硫泵、剪下泵、研磨泵、燃油泵、吸魚泵、浴缸泵、源熱泵、過濾泵、增氧泵、洗髮泵、注射泵、充氣泵、燃氣泵、美工泵、加臭泵、切碎泵、按行業分類
水泵按原理分類
往復泵、柱塞泵、活塞泵、隔膜泵、轉子泵、螺桿泵、液環泵、齒輪泵、滑片泵、羅茨泵、滾柱泵、凸輪泵、蠕動泵、擾性泵、葉片泵、離心泵、軸流泵、混流泵、漩渦泵、射流泵、噴射泵、水錘泵、真空泵、鏇殼泵、軟管泵、蝸桿泵按介質分類
清水泵、污水泵、海水泵、熱水泵、熱油泵、稠油泵、機油泵、重油泵、渣油泵、瀝青泵、雜質泵、渣漿泵、沙漿泵、灰漿泵、灰渣泵、泥漿泵、水泥泵、混凝土泵、粉末泵、酸鹼泵、空氣泵、蒸汽泵、氧氣泵、氨氣泵、煤氣泵、血液泵、泡沫泵、乳液泵、塗料泵、硫酸泵、鹽酸泵、膠體泵、酒精泵、啤酒泵、葡萄酒泵、朱古力泵、奶泵、澱粉泵、麥汁泵、牙膏泵、鹽滷泵、滷水泵、鹼液泵、熔鹽泵、油脂泵、農藥泵、化肥泵、藥劑泵、氣液泵、油劑泵、化纖泵、紡絲泵、劑量泵、油漆泵、果漿泵、紙漿泵、胰島素泵、濃漿泵、氣泵、水泵、油泵根據不同的工作原理可分為容積水泵、葉片泵等類型。容積泵是利用其工作室容積的變化來傳遞能量,主要有活塞泵、柱塞泵、齒輪泵、隔膜泵、螺桿泵等類型。葉片泵是利用迴轉葉片與水的相互作用來傳遞能量,有離心泵、軸流泵和混流泵等類型。潛水電泵的泵體部分是葉片泵。其他類型的水泵有射流泵、水錘泵、內燃水泵等,分別利用射流水錘和燃料爆燃的原理進行工作。水輪泵則是水輪機與葉片泵的結合。上述各類水泵中以下列各式較具代表性。
水泵離心泵是利用離心力的作用增加水體壓力並使之流動的一種泵。由泵殼、葉輪、轉軸等組成。動力機帶動轉軸, 轉軸帶動葉輪在泵殼內高速鏇轉,泵內水體被迫隨葉輪轉動而產生離心力。離心力迫使液體自葉輪周邊拋出,匯成高速高壓水流經泵殼排出泵外,葉輪中心處形成低壓,從而吸入新的水流,構成不斷的水流輸送作用。葉輪具有逆鏇轉方向彎曲的葉片,其結構型式有封閉式、半封閉式和敞開式3種,農用的多為封閉式葉輪,葉片兩側由圓盤封閉。泵體沿出水管方向逐漸擴張成蝸殼形。水流自葉輪一面吸入的稱單吸離心泵,自葉輪兩面吸入稱雙吸離心泵。為增加揚程,可將多個葉輪裝在同一軸上成為多級離心泵。由前一葉輪排出的水進入後一葉輪的進水口,增壓後再從後一葉輪排出,因而葉輪數愈多,壓力愈高。有的離心泵帶有能自動排除吸水管和泵體內空氣的裝置,在起動前無需向泵體灌水,稱自吸離心泵,但其效率常低於一般離心泵。離心泵在農田排灌和農牧業供水中套用最廣。多用於揚程高而流量小的場合。單級離心泵的揚程為5~125米,排出的流量均勻,一般為6.3~400米3/小時,效率約可達86~94%。
安裝方法
1.在地理環境許可的條件下,水泵應儘量靠近水源,以減少吸水管的長度。
水泵安裝處的地基應牢固,對固定式泵站應修專門的基礎。
2.進水管路應密封可靠,必須有專用支撐,不可吊在水泵上。裝有底閥的進水管,應儘量使底閥軸線與水平面垂直安裝,其軸線與水平面的夾角不得小於45°。水源為渠道時,底閥應高於水底0.50米以上,且加網防止雜物進入泵內。
3.機、泵底座應水平,與基礎的聯結應牢固。機、泵皮帶傳動時,皮帶緊邊在下,這樣傳動效率高,水泵葉輪轉向應與箭頭指示方向一致;採用聯軸器傳動時,機、泵必須同軸線。
4.水泵的安裝位置應滿足允許吸上真空高度的要求,基礎必須水平、穩固,保證動力機械的鏇轉方向與水泵的鏇轉方向一致。
5.若同一機房內有多台機組,機組與機組之間,機組與牆壁之間都應有800mm以上的距離。
6.水泵吸水管必須密封良好,且儘量減少彎頭和閘閥,加注引水時應排盡空氣,運行時管內不應積聚空氣,要求吸水管微呈上斜與水泵進水口聯接,進水口應有一定的淹沒深度。
水泵安裝注意事項
農用水泵的安裝技術要求很嚴格。首先,水泵底座要牢固,並儘量縮短吸水管的長度。其次,進水管路應密封可靠。底閥與膠管用保險繩索系牢。水源為渠道的,底閥應高於水底0.5米以上,且加網防止雜物進入泵內。第三是在機泵皮帶傳動時,皮帶的緊邊應在下,以提高傳動效率。水泵葉輪轉向應與箭頭方向保持一致。
檢查水泵應注意三點:
(1)泵軸應能靈活轉動,無撞擊聲;泵軸徑向無明顯晃動,需加足潤滑油。
(2)檢查進水膠管有無破損,如有開裂要及時粘修。檢查各緊固螺栓有無鬆動,要擰緊鬆動的螺栓。
(3)潛水泵的電機繞組、電纜線絕緣須符合要求,才能使用。
故障排除的方法:
(1)管路漏水或漏氣,可能是安裝時螺栓沒擰緊。如果滲漏不嚴重,可在漏水或漏氣的地方塗水泥漿,並用板手擰緊螺帽;若漏水嚴重,則要重裝。
(2)水泵劇烈震動,可能是在電動轉子不平衡,或者聯軸器結合不良,軸承磨損、彎曲;也可能是由轉動部件松馳、破裂和管路支架不牢等引起。應視不同情況進行調整、加固、校直或更換。
(3)不吸水或不出水,多由於底閥卡死,濾水部分淤塞;吸水的高度太高或吸水管漏氣;以及葉輪流道堵塞等所致,應分別採取相應辦法解決。
使用注意事項
①水泵投入運行前,應檢查水泵與電動機的固定是否牢靠。採用聯軸器連線的應檢查兩軸是否同心;採用皮帶傳動的,應檢查兩皮帶輪是否對正。然後,要用手轉動聯軸器或皮帶輪,應轉動靈活。
②需要灌水的水泵開機前應灌滿清水;在出水管路上有閘閥的離心泵,開機前要關閉閘閥,以降低啟動電流。深井泵和離心泵在開車前應往泵里灌些清水,同時轉動泵軸數圈,以潤滑橡膠軸承。
③啟動時,在轉速接近額定轉速時,若採用降壓啟動,應及時將手柄轉至運行位置,若出水管路有閘閥的水泵應馬上打開閘閥。
④在水泵運行過程中,應注意各種儀表的指示,特別是電流表,應注意電流指示值是否超過電動機的額定電流值,還要注意電動機及軸承部位溫升是否在允許範圍以內。
⑤應隨時注意電機和水泵運轉的聲音是否正常,若發現大的震動和機械撞擊聲,應立即停車。
⑥水泵填料處滴水應在正常範圍,一般每分鐘30滴左右為宜。滴水過多(超過60滴),說明填料過松,空氣可能由此進入,破壞真空,影響水泵流量和效率;滴水過少(少於10滴),說明填料過緊,潤滑冷卻條件將會變壞,使功率消耗變大。
⑦應注意吸水池水面和吸水揚程的變化。若水面下降很多時,應及時加接一段吸水管,若吸水揚程超過規定,應降低水泵安裝高度。
⑧對農村排灌,應特別注意進水位置有無雜萆或其它污物,防止堵塞底閥。
⑨停泵時,對出水管路有閘閥的水泵,應先關好閘閥再停泵;對水泵電機使用啟動器的,應先停啟動器,後拉電閘。
⑩停機後若長期不用或在冬季使用過後,應將放水塞打開,把水放淨,以免生鏽或凍裂水系。
注意事項
水泵2、如果水泵在使用的過程中發生強烈的震動這時一定要停下來檢查下是什麼原因,否則同樣會對水泵造成損壞。
3、當水泵底閥漏水時,有些人會用乾土填入到水泵進口管里,用水衝到底閥處,這樣的做法實在不可取。因為當把乾土放入到進水管里當水泵開始工作時這些乾土就會進入泵內,這時就會損壞水泵葉輪和軸承,這樣做縮短了水泵使用壽命。當底閥漏水時一定要拿去維修,如果很嚴重那就需要更換新的。
4、水泵使用後一定要注意保養,比如說當水泵用完後要把水泵里的水放乾淨,最好是能把水管卸下來然後用清水沖洗。
5、水泵上的膠帶也要卸下來,然後用水沖洗乾淨後在光照處晾乾,不要把膠帶放在陰暗潮濕的地方。水泵的膠帶一定不能沾上油污,更不要在膠帶上塗一些帶粘性的東西。
6、要仔細檢查葉輪上是否有裂痕,葉輪固定在軸承上是否有鬆動,如果有出現裂縫和鬆動的現象要及時維修,如果水泵葉輪上面有泥土的也要清理乾淨。
技術要求
所謂揚程是指所需揚程,而並不是提水高度,明確這一點對選擇水泵尤為重要。水泵揚程大約為提水高度的1.15~1.20倍。如某水源到用水處的垂直高度20米,其所需揚程大約為23~24米。選擇水泵時應使水泵銘牌上的揚程最好與所需揚程接近,一般偏差不超過20%,這樣的情況下,水泵的效率最高,也比較節能,使用會更經濟。如果銘牌上揚程遠遠小於所需揚程,水泵往往不能滿足用戶的需要,即便能抽上水來,水量也小得可憐。但反過來,高揚程的水泵用於低揚程時,便會出現流量過大,導致電機超載,若長時間運行,電機溫度升高,繞組絕緣層便會逐漸老化,甚至燒毀電機。
介紹臥式水泵對使用條件的要求
臥式水泵的特點
廠生產的水泵,適合於各種惡劣環境下的污水和污泥抽送排淤。水泵為下吸式,能夠抽乾工作表面的地表水,電動機為充水式異潛水三相步電動機。能夠長期潛水中工作,也可露出水面工作。占地面積小,安裝使用方便,可靠耐用,壽命長。下面為您介紹一下臥式水泵使用條件。
臥式水泵使用條件:
臥式水泵是電機與水泵直聯一體潛入水中工作的提水機具。主要適用於農田灌溉、城市、工礦企業的給排水工程。
臥式水泵使用對電源要求:
1.額定頻率為50赫茲,電機端額定電壓應保證為380正負5%的三相交流電源(若用戶電壓為660伏時需特殊定貨)
2.變壓器負載功率不應超過其容量的75%。
3.變壓器距井較遠時,應考慮輸電線線壓降,對功率大於45KW的電機,要求變壓器到井口距離不超過20米,大於20米時,要求輸電線規格比配電纜規格大兩個等級,並考慮線壓降。

1、一般無腐蝕性清水
2、水中含砂量不大於0.01%(質量比)
3、酸鹼度PH值在6.5-8.5範圍內。
4、水中氯離子含量不大於400毫克/升
5、硫化氫含量不大於1.5毫升克/升
6、水溫不高於20℃。
臥式水泵的使用環境及條件的總結:
1、電源頻率為50hz,額定電壓為380v或660v(充許差為正負5%)的三相交流電源。
2、輸送介質的固體物的容積比在2%以下,輸送介質密度大為1.2x10。
3、輸送介質溫度不超過40度。
4、輸送介質的PH值為4-10。
5、不帶套的污水潛水泵機組,從電機冷卻狀態下開始,電泵電動機充許露出水面短時運轉不超過0.5小時。
6、以葉輪中心為基準,潛入深度不得超過20m。
技術參數
多功能水泵控制閥標準標準技術
現將標準技術要求介紹如下:
水泵多功能水泵控制閥的壓力——溫度等級由殼體、內件及控制管系統材料的壓力——溫度等級確定。多功能水泵控制閥在某一溫度下的最大允許工作壓力取殼體、內件及控制管系統材料在該溫度下最大允許工作壓力值中的小值。
1.1鐵制殼體的壓力——溫度等級應符合GB/T17241.7的規定。
1.2鋼製殼體的壓力——溫度等級應符合GB/T9124的規定。
1.3對於GB/T17241.7、GB/T9124未規定壓力——溫度等級的材料,可按有關標準或設計的規定。
2閥體
2.1閥體法蘭
法蘭應與閥體整體鑄成。鐵製法蘭的型式和尺寸應符合GB/T17241.6的規定,技術條件應符合GB/T17241.7的規定;鋼製法蘭的型式和尺寸應符合GB/T9113.1的規定,技術條件應符合GB/T9124的規定。
2.2閥體結構長度見表1。
2.3閥體的最小壁厚
鑄鐵件閥體的最小壁厚應符合GB/T13932-1992中表3的規定,鑄鋼件閥體的最小壁厚應符合JB/T8937-1999中表1的規定。
3閥蓋、膜片座
3.1閥蓋與膜片座、膜片座與閥體的連線型式應採用法蘭式。
3.2膜片座與閥體的連線螺栓數量不得少於4個。
3.3閥蓋與膜片座的最小壁厚按2.3的要求。
3.4閥蓋與膜片座的法蘭應為圓形。法蘭密封面的型式可採用平面式、突面式或凹凸式。
4閥桿、緩閉閥板、主閥板
4.1緩閉閥板與閥桿應連線緊固、可靠。
4.2緩閉閥板與主閥板的密封型式應採用金屬密封的型式。
4.3主閥板與閥桿必須滑動靈活、可靠。
汽油機水泵
4.4主閥板與主閥板座的密封可採用金屬密封和非金屬密封兩種型式。
5膜片
5.1膜片性能應符合表2(見下頁)的規定。
5.2膜片的外觀質量應符合HG/T3090的規定。
5.3當套用於生活飲用水時,膜片材料的安性應符合GB/T17219的規定。
6控制管系統
控制管系統的各元件應能承受閥門的最高工作壓力,各部位不得發生泄漏。
7材料
7.1主要零部件材料的選用宜按JB/T5300的規定。
7.2銅合金鑄件應符合GB/T12225的規定;灰鑄鐵鑄件應符合GB/T12226的規定,其抗拉強度應不小於200MPa;球墨鑄鐵鑄件應符合GB/T12227的規定;碳素鋼鑄件應符合GB/T12229的規定;奧氏體鋼鑄件應符合GB/T12230的規定。
7.3鋼製多功能水泵控制閥鑄件外觀質量應符合JB/T7927的規定,鐵制多功能水泵控制閥鑄件外觀質量參照JB/T7927的規定。
8殼體強度
多功能水泵控制閥的殼體強度應符合GB/T13927的規定。
9密封性能
多功能水泵控制閥的密封性能應符合GB/T13927的規定。
10清潔度
多功能水泵控制閥的清潔度應符合JB/T7748的規定。
11塗裝

流量Q
流量是泵在單位時間內輸送出去的液體量(體積或質量)。體積流量用Q表示,單位是:m3/s,m3/h,l/s等。
質量流量用Qm表示,單位是:t/h,kg/s等。
質量流量和體積流量的關係為:
Qm=ρQ
式中 ρ——液體的密度(kg/m3,t/m3),常溫清水ρ=1000kg/m3。
揚程H

轉速n
轉速是泵軸單位時間的轉數,用符號n表示,單位是r/min。汽蝕餘量NPSH
汽蝕餘量又叫淨正吸頭,是表示汽蝕性能的主要參數。汽蝕餘量國內曾用Δh表示。功率和效率
水泵的功率通常是指輸入功率,即原動機傳支泵軸上的功率,故又稱為軸功率,用P表示;泵的有效功率又稱輸出功率,用Pe表示。它是單位時間內從泵中輸送出去的液體在泵中獲得的有效能量。
因為揚程是指泵輸出的單位重液體從泵中所獲得的有效能量,所以,揚程和質量流量及重力加速度的乘積,就是單位時間內從泵中輸出的液體所獲得的有效能量——即泵的有效功率:
Pe=ρgQH(W)=γQH(W)
式中ρ——泵輸送液體的密度(kg/m3);
γ——泵輸送液體的重度(N/m3);
Q——泵的流量(m3/s);
H——泵的揚程(m);
g——重力加速度(m/s2)。
軸功率P和有效功率Pe之差為泵內的損失功率,其大小用泵的效率來計量。泵的效率為有效功率和軸功率之比,用η表示。
什麼叫流量?用什麼字母表示?如何換算?
單位時間內泵排出液體的體積叫流量,流量用Q表示,計量單位:立方米/小時(m3/h),升/秒(l/s),L/s=3.6m3/h=0.06m3/min=60L/min
G=QρG為重量ρ為液體比重
例:某台泵流量50m3/h,求抽水時每小時重量?水的比重ρ為1000公斤/立方米。
解:G=Qρ=50×1000(m3/h·kg/m3)=50000kg/h=50t/h
什麼叫揚程?用什麼字母表示?用什麼計量單位?和壓力的換算及公式?
單位重量液體通過泵所獲得的能量叫揚程。泵的揚程包括吸程在內,近似為泵出口和入口壓力差。揚程用H表示,單位為米(m)。泵的壓力用P表示,單位為Mpa(兆帕),H=P/ρ.如P為1kg/cm2,則H=(lkg/cm2)/(1000kg/m3)H=(1kg/cm2)/(1000公斤/m3)=(10000公斤/m2)/1000公斤/m3=10m1Mpa=10kg/cm2,H=(P2-P1)/ρ(P2=出口壓力P1=進口壓力)
什麼叫汽蝕餘量?什麼叫吸程?各自計量單位表示字母?
水泵在工作時液體在葉輪的進口處因一定真空壓力下會產生汽體,汽化的氣泡在液體質點的撞擊運動下,對葉輪等金屬表面產生剝蝕,從而破壞葉輪等金屬,此時真空壓力叫汽化壓力,汽蝕餘量是指在泵吸入口處單位重量液體所具有的超過汽化壓力的富餘能量。單位用米標註,用(NPSH)r。吸程即為必需汽蝕餘量Δh:即泵允許吸液體的真空度,亦即泵允許的安裝高度,單位用米。
吸程=標準大氣壓(10.33米)-汽蝕餘量-安量(0.5米)
標準大氣壓能壓管路真空高度10.33米。
例如:某泵汽蝕餘量為4.0米,求吸程Δh?
解:Δh=10.33-4.0-0.5=5.83米
選購方法
台數選擇
水泵原理圖2、對於需要有50%的備用率大型泵,可改兩台較小的泵工作,兩台備用(共四台)
3、對某些大型泵,可選用70%流量要求的泵並聯操作,不用備用泵,在一台泵檢修時,另一台泵仍然承擔 生產上70%的輸送。
4、對需24小時連續不停運轉的泵,應備用三台泵,一台運轉,一台備用,一台維修。
辨別真假
第一、原廠水泵或者配套廠家的產品包裝一般都比較規範,字跡清晰正規,有詳細的產品名稱、規格型號、註冊商標、廠名、廠址及電話號碼等;假冒的配件一般包裝都較粗糙,廠址、廠名印製不清楚、不。
第二、合格的水泵表面光潔、做工較好。越是重要的零配件,加工精度就越高,包裝防鏽防腐越嚴格。選購時若發現零件有鏽蝕斑點或橡膠件龜裂、失去彈性或軸頸表面有明加工紋路,應不是原廠的配件。
第三、劣質水泵外觀有時不錯。但由於製作工藝差,容易被損壞,購買時,只要觀察配件的邊、角等隱蔽部位,就能看出配件工藝的好壞。
第四、有的水泵是廢舊配件翻新的,這時只要撥開配件表面油漆後就能發現舊漆,這樣的水泵最好不使用。第五、買到的零配件裝到車上,要看能不能和且它配件有良好的配含。一般原廠配件都能很好的配給到車上,而劣質的配件由於工藝不精,加工誤差較大,所以零配件之間很難配合好。
第六、為保證水泵的裝配關係符合技術要求,一些正規零件裹面刻有裝配記號,用來保證配件的正確安裝,若無記號或記號模糊無法辨認,則不是合格的配件。
第七、正規的水泵總成、部件必須齊完好,才能保證順利裝車和正常運行。一些總成件上的小零件缺失,就容易始裝車造成困難,這種配件有可能就是假冒的配件。
第八、一些重要的配件,特別是總成類,出廠時一般帶有說明書、合格證,以便指導用戶安裝、使用和維護,假冒的總成一般不會有詳細的安裝說明書來指導這些。發展趨勢
對發展農用水泵的要求是提高效率、降低能耗和充分利用自然能源。用一台大泵代替多台小泵可提高機組效率、節約材料、降低能耗和工程造價,且便於實現自動化管理。因此,各種大型軸流泵和混流泵發展較快,最大葉輪直徑分別達到4.6米和6.2米,配套功率最高達1.25萬千瓦,混流泵有取代部分高揚程軸流泵和低揚程離心泵的趨勢。在深井提水方面主要發展潛水電泵,其最大口徑已達1米,有的採用6000伏高壓電機,最大功率達2500千瓦。水輪泵、風力拉桿泵、螺桿泵、各種人畜力驅動的隔膜泵、活塞泵和專用於同噴灌設備配套的水泵等,在中國和其他一些國家也受到不同程度的重視。
節能減排現已成中國經濟開展規劃大綱的首要內容特別對電力、鋼鐵、有色、石油化工、水處置等工業範疇高耗能提出了愈加嚴厲的減排方針。水泵作為工業中心流體運送設備占有著耗能的首要有些,現已成為節能作業首要需處置的疑問。
水泵最常用的驅動方式是用電動機驅動。泵的節能辦法首要是使泵機組(泵、原動機和轉變有些)在最高的功率下運轉,使其耗費外界輸入的電能下降到最低點。泵的節能使綜合性的技能,它觸及泵自身的節能、體系節能和運用辦理運轉等各方面。
泵職業的節能含義嚴重:泵是動力耗費大戶,依據通用機械工業協會計算,泵耗電量占國發電量的20%左右,泵功率晉升關於節能減排含義嚴重。
發展趨勢
對發展農用水泵的要求是提高效率、降低能耗和充分利用自然能源。用一台大泵代替多台小泵可提高機組效率、節約材料、降低能耗和工程造價,且便於實現自動化管理。因此,各種大型軸流泵和混流泵發展較快,最大葉輪直徑分別達到4.6米和6.2米,配套功率最高達1.25萬千瓦,混流泵有取代部分高揚程軸流泵和低揚程離心泵的趨勢。在深井提水方面主要發展潛水電泵,其最大口徑已達1米,有的採用6000伏高壓電機,最大功率達2500千瓦。水輪泵、風力拉桿泵、螺桿泵、各種人畜力驅動的隔膜泵、活塞泵和專用於同噴灌設備配套的水泵等,在中國和其他一些國家也受到不同程度的重視。
節能減排現已成中國經濟開展規劃大綱的首要內容特別對電力、鋼鐵、有色、石油化工、水處置等工業範疇高耗能提出了愈加嚴厲的減排方針。水泵作為工業中心流體運送設備占有著耗能的首要有些,現已成為節能作業首要需處置的疑問。
水泵最常用的驅動方式是用電動機驅動。泵的節能辦法首要是使泵機組(泵、原動機和轉變有些)在最高的功率下運轉,使其耗費外界輸入的電能下降到最低點。泵的節能使綜合性的技能,它觸及泵自身的節能、體系節能和運用辦理運轉等各方面。
泵的節能含義嚴重:泵是動力耗費大戶,依據通用機械工業協會計算,泵耗電量占全國發電量的20%左右,泵功率晉升關於節能減排含義嚴重。
國務院《物業管理條例》第四條"國家鼓勵採用新技術、新方法,依靠科技進步提高物業管理和服務水平"。一直以來,動力節省是物業設備管理的重點作業之一。中國城市化建造的不斷推動,高層次的社區和物業也越來越多,商場上確保節能率的高效節能水泵就成了熱銷產物。
為了回響國家建設資源節約型社會的需求,光伏水泵成為新的研究潮流,光伏水泵系統利用太陽的持久能源,日出而作、日落而息,無需人員看管、無需公共電網,獨立運行、安可靠。系統可與滴灌、噴灌、滲灌、微潤灌等現代節能灌溉設施配套,解決偏遠乾旱地區生活飲水、農田灌溉、水土保持及沙漠治理問題。光伏水泵系統有效的節水節電,大大降低了傳統能源的投入,完實現了CO2零排放,真正符合國家建設"資源節約型"與"環境友好型"的社會發展戰略。太陽能水泵亦稱光伏水泵,是當今世界上陽光豐富地區,尤其是缺電無電的邊遠地區最具吸引力的供水方式,利用隨處可取、取之不竭的太陽能,系統自動地日出而作,日落而歇,無需人員看管,維護工作量可降至最低,是理想的集經濟性、可靠性和環保效益為一體的綠色能源系統。光伏水泵系統是中電電氣太陽能研究院繼光伏(風力)電站、光伏建築一體化、光伏照明系統之後的另一種新能源套用系統。
參數選擇
水泵原理圖目前,國內一般的供水加壓站通常採用的是離心泵,離心泵具有結構簡單、輸液無脈動、流量調節簡單等優點。根據工程的實際情況,首先選取離心泵的類別,進行如下考慮。
(1)根據介質特性決定選取哪種特性泵。如清水泵、耐腐蝕泵,或化工流程泵和雜質泵等。介質為劇毒、貴重或有放射性等不準許泄露物質時,應考慮選用無泄漏泵(如禁止泵、磁力泵等)或帶有泄露收集泄露報警裝置的雙端面機械密封。如介質為液化烴等易揮發液體應選用低汽蝕餘量蹦,如筒型泵。
(2)根據現場安裝條件選擇臥式泵、立式泵(含液下泵管道泵)。
(3)根據流量大小選用單吸泵、雙吸泵、或小流量離心泵。
(4)根據揚程高低選用單級泵、多級泵,或高速離心泵等。
以上各項確定後,可根據各類泵中不同系列泵的特點及生產廠的條件,選擇合適的泵系列。泵的類型、系列和材料選定後,再根據水泵廠家提供的樣本及有關參數確定泵的型號。
