扁樁簡介
扁樁是由廣東永基建築基礎有限公司研製並生產,套用於扁樁水泥土
高強預應力混凝土扁樁高強預應力混凝土扁樁
扁樁成品特點:
1.扁樁採用矩形截面,高寬比為3:1,不對稱配筋,充分利用了混凝土的抗壓和鋼筋的抗彎性能;
2.主筋採用螺鏇槽高強鋼棒,強度達1440N/mm2,是普通鋼筋強度的3倍以上,節省鋼材,可施加預應力;
3.扁樁的生產工藝比較簡單,截面和配筋可靈活設定,既適合規範化大批量生產,也適合有各種特殊要求的少量生產。
大扁樁
大扁樁成樁
沖孔錘扁樁水泥土攪拌牆基坑支護工法
扁樁水泥土攪拌牆基坑支護工法的原理是採用深層攪拌樁作基坑止水帷
發明專利證書
科學技術進步獎設計施工方案
特點:
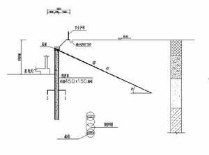
扁樁支護剖面圖
扁樁支護平面圖2.基坑位移小,安全性高。
3.占用空間小,支護結構最小0.5米。
4.整體性好,止水效果理想。
5.工期短,土方開挖方便。
6.造價低,經濟性高。
工程實例
施工工藝

測量放線--攪拌樁施工—植扁樁—連續施工段施工—壓頂梁扎筋—壓頂梁—土方開挖
美的·順峰山扁樁支護