概念
開縫是指石材安裝時相鄰板材接縫中未填充密封材料而呈現自然縫隙。與此同時,薄鋼板剪力牆以彎曲鏈桿為主要的耗能構件,試驗結果表明,開縫薄鋼板牆的承載力和側移剛度能滿足正常使用階段要求,當內填板的整體面外屈曲、縫間板條和邊緣加勁肋的彎扭屈曲不先於彎曲鏈桿的端部彎曲屈服時,開縫薄鋼板牆有很好的延性和耗能能力,是一種理想的水平抗側力構件。
開縫薄鋼板剪力牆低周反覆荷載試驗研究
作為一種有效的水平抗側力構件,鋼板剪力牆(以下簡稱SPSW)受到各國學者越來越多的關注。SPSW根據高厚比一般可分為薄板牆(高厚比λ≥250)和中厚板牆(高厚比λ<250),一般來說薄板牆比厚板牆經濟。為了改進砼剪力牆的抗震性能,提出開縫剪力牆的概念。用有限元結合試驗最早研究42片開縫鋼板剪力牆,認為開縫鋼板剪力牆的剛度和強度可通過縫的長度、數量、間距、層數和牆板的尺寸等參數進行調整。在內填板上開設豎縫,通過彎曲鏈桿的彈塑性變形來消耗地震能量,構造合理的開縫SPSW可使彎曲彈塑性變形主要集中在彎曲鏈桿的端部,從而實現延性耗能。國內已有學者用有限元研究了開縫SPSW的性能,但試驗資料相當匱乏。試驗研究了兩片開縫薄SPSW,揭示了其在低周反覆荷載作用下的破壞過程和破壞機理,得到了側移剛度、承載力、延性和抗震性能等指標。試驗結果表明,合理設計的開縫薄SPSW的承載力和側移剛度可滿足正常使用階段的要求;當內填板的整體面外屈曲、彎曲鏈桿和邊緣加勁肋的彎扭屈曲不先於彎曲鏈桿端部的彎曲屈服時,開縫薄鋼板牆有很好的延性和耗能能力,開縫薄SPSW是一種理想的水平抗側力構件。
試驗簡介
(1)試件設計製作
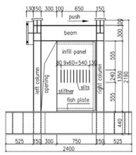
圖 1 試件加工圖
表 1 鋼材力學性能指標為了更好的了解開縫薄SPSW的性能和受力機理,本文試驗研究了兩片開縫薄SPSW。根據相似理論和載入系統的能力,模型比例約為1:3,試件編號分別為HD1-1和HD1-2。試件框架跨度1200mm,高度1500mm,地梁截面HM440×300×11×18,框架柱截面HW150×150×7×10,梁截面HN300×150×6.5×9,內填板厚度3.5mm,SPSW高厚比,在內填板中部開設10條240mm×5mm的豎縫,縫間距60mm,縫間板條高寬比、寬厚比分別為4和17。在框架左柱右邊開設了300mm寬的通長洞口,邊緣用板80mm×3.5mm通長加勁。為方便施工,在框架梁、柱腹板中面焊接了60mm×6mm的連線板,內填板三邊搭接在連線板上,搭接長度為40mm,單面焊;另一邊與邊緣加勁肋連線,雙面焊;詳細尺寸見圖1。試件HD1-1與HD1-2幾何尺寸完全相同,HD1-1與HD1-2的板面外最大初始撓度分別為1.95mm和2.45mm。材性試驗是在WES液壓萬能試驗機上進行,試件中各種型鋼、鋼板均按現行國家標準留取材性樣品,並測定材料力學性能,如表1所示。
(2)載入裝置及測點布置
圖 2 載入裝置圖SPSW用4個地腳錨栓固定在試驗槽內,下部形成固支端,地梁的兩端用鋼錠固定在混凝土地板上以抵抗反覆水平力。反覆水平力採用懸臂式載入法,由1000kN的MTS往復作動器提供,作動器一端鉸接於試件左柱樑中心線高度,另一端與鋼筋混凝土反力牆連線。在梁的中心線位置設定側向支撐以防止梁的面外變形。框架柱的豎向荷載由兩個500kN同步油壓千斤頂提供,為保證豎向荷載不影響試件的水平方向側移,在千斤頂上部設定平面滾軸支座,載入裝置見圖2。SPSW框線構件及邊加勁肋的變形、內填板的面外變形通過布置在試件上的位移計與百分表來測量,共設定7個位移計(用W表示)和5個百分表(用D表示),具體布置見圖3。
(3)載入制度
豎向荷載:先在每柱柱頂同步施加400kN壓力,分兩級載入,每級200kN。第一級載入結束後檢查各儀表是否工作正常。在整個試驗過程中保持豎向荷載恆定,然後開始施加水平荷載。水平荷載:根據《建築試驗抗震方法規程》(JGJ101-96),採用力和位移聯合控制載入。在試件屈服前,採用荷載增量控制,以100kN增量為一級,每級循環1次。在試件屈服後,採用位移增量控制,以屈服位移的倍數為各級荷載增量,每級循環3次。直到試件破壞。
破壞特點
圖 3 變形測點布置圖兩個試件的破壞過程基本一致,破壞順序依次為:內填板屈曲,部分彎曲鏈桿端部屈服,縫間板條和邊緣加勁肋彎扭屈曲,框線柱上、下端翼緣屈曲,開洞處梁翼緣屈曲,最終破壞為柱上、下端形成塑性鉸或柱面外失穩破壞。兩個試件的破壞機理基本相同,主要有以下特點:
(1)先是次要構件內填板開始屈曲,屈服耗能,然後才是框架本身的破壞,破壞過程符合多道抗震設防的要求,安全儲備高。
(2)試件的破壞都不是在一個載入循環內完成的,屬穩定的延性破壞。
(3)內填板與連線板焊縫開裂不會顯著影響試件的整體工作性能,說明SPSW有很好的內力重分布能力。
(4)因板高厚比(λ=429)較大,邊緣加勁肋剛度有限,試件整體面外屈曲和邊緣加勁肋彎扭屈曲出現較早,彎曲鏈桿端部的塑性鉸未能充分發展,試件的延性和耗能能力沒有充分發揮。
(5)由於彎曲鏈桿的寬厚比較大,其彎扭屈曲先於全部的端部塑性鉸形成,試件的面外變形加大,承載力降低,彎曲鏈桿的延性和耗能能力沒有充分發揮。
滯回曲線
圖4 試件滯回曲線滯回曲線是構件在低周反覆荷載作用下作用力和位移之間的關係曲線,是結構抗震性能的綜合體現,也是結構彈塑性動力反應的主要依據,HD1-1,HD1-2的滯回曲線如圖4所示。兩個試件的滯回曲線有以下特點:
(1)在內填板屈曲、屈服前,雖然有初始面外變形等影響,但力和位移基本呈線性關係,滯迴環包圍的面積很小,試件處於彈性工作狀態。
(2)內填板部分屈曲、屈服後,滯迴環開始張開呈曲線型,隨著載入位移的增加,部分彎曲鏈桿端部出現屈服,板面外屈曲變形加大,滯回曲線逐漸向位移軸傾斜,滯迴環包圍的面積不斷增大,剛度有所退化,試件進入彈塑性工作階段。
(3)在典型的位移控制階段,由於板高厚比、彎曲鏈桿的寬厚比較大,加勁肋的剛度有限,試件出現較大的整體面外變形、加勁肋和彎曲鏈桿的彎扭屈曲變形,承載力和剛度退化較明顯。
(4)所有試件的滯回曲線介於梭形和反S形之間,飽滿穩定,屬彎剪型破壞。主要原因可能是試驗中板的整體面外屈曲、邊緣加勁肋和彎曲鏈桿的彎扭屈曲出現較早,彎曲鏈桿在端部未能全部屈服形成塑性鉸。
(5)由於豎縫的存在和邊緣加勁肋剛度有限,開縫薄SPSW幾乎沒有形成斜拉力帶,這有別於一般的薄SPSW,試件主要靠彎曲鏈桿的彈塑性彎曲變形消耗地震能量。
研究結論
通過兩片開縫薄SPSW低周反覆荷載試驗,對試驗現象和試驗結果進行綜合分析,可以得到如下結論:
(1)開縫薄SPSW將縫間板條轉換成一系列彎曲鏈桿,通過鏈桿的彎曲彈塑性變形來消耗地震能量,採用合理的構造措施可實現延性耗能。開縫薄SPSW是一種理想的水平抗側力構件。
(2)經合理設計開縫薄SPSW的承載力和側移剛度,可滿足正常使用階段的要求;其延性和抗震性能很好,可滿足較高地震區的抗震設防要求。
(3)開縫薄SPSW主要是通過鏈桿的彎曲彈塑性變形來消耗地震能量,因此保證板的整體面外屈曲、彎曲鏈桿和邊緣加勁肋的彎扭屈曲和彎曲鏈桿的端部撕裂不先於彎曲鏈桿的屈服,使彎曲彈塑性變形主要集中在鏈桿的頂部和底部,是發揮開縫薄SPSW的優越性的重要條件。
(4)為保證板的整體面外屈曲和邊緣加勁肋的彎扭屈曲不先於彎曲鏈桿的屈服,內填板應與周框線架有效連線,且邊緣加勁肋應有一定的面內剛度。
開縫翅片壓降和換熱特性的數值模擬
近年來,人們研究了不少對換熱器翅片強化傳熱的方法,其中對換熱器翅片進行開縫就是一種強化空氣側傳熱的有效方法。這是因為沿流動方向上翅片的邊界層厚度是增加的,從而導致換熱係數沿流動方向減小。在翅片上開縫可以破壞翅片上的邊界層,減小邊界層的厚度。對開縫翅片的研究,前人的工作主要集中在實驗上。對百葉窗式開縫翅片進行實驗研究,將開縫翅片的換熱特性與不開縫翅片進行了比較。對X型排列的開縫翅片進行實驗研究,研究表明,這種翅片具有較好的換熱特性。對翅片開縫的位置進行實驗研究,分析開縫位置對翅片換熱特性的影響。由於結構的複雜性,與開縫翅片有關的數值模擬工作並不多見。
開縫式翅片的傳熱特性研究仍處在不斷發展和完善的階段,對開縫式翅片換熱性能的量化以及結構尺寸參數的最佳化已經成為進一步研究的重點。通過對開縫翅片結構尺寸的最佳化,可以在較小的阻力增量下獲得較大的換熱效果,充分發揮開縫翅片的優良特性。正如前面所述,由於開縫翅片結構比較複雜,對其結構參數進行最佳化的工作一般也僅局限於實驗研究方面,如曾對百葉窗式開縫翅片片間距對換熱性能的影響進行了實驗研究。開縫翅片的另一個重要的結構參數就是翅片厚度,它對開縫翅片的阻力和換熱特性有很大影響。研究利用STAR-CD軟體分別對開縫翅片管式換熱器換熱和壓降特性進行了數值模擬研究,分析了開縫翅片厚度對開縫翅片的換熱和壓降特性的影響,並用場協同理論對計算結果進行了分析,旨在改進翅片管式換熱器的結構設計,為最佳化新型管翅式換熱器提供參考。
數學模型
(1)物理問題描述
圖5 平直開縫結構示意圖模擬對象是參照Hiroaki等 研究的一種商業開縫翅片設計的翅片模型,翅片結構示意圖如圖5所示(圖中長度單位均為mm)。換熱器的傳熱過程為:工質在管內發生相變換熱,管子與翅片之間為導熱,翅片與來流進行強制對流換熱。主要對空氣側的換熱進行研究,而且換熱器中大部分熱阻集中在空氣側,所以可以忽略管內熱阻,從而假定管子溫度一定。計算過程中不考慮管子與翅片之間的接觸熱阻,並假定空氣側氣體流動為不可壓、穩態、常物性和層流流動。
(2)邊界條件
對開縫翅片進行計算時,進口流速和溫度均勻;出口採用局部單相化條件,出口邊界流動為充分發展流;翅片表面溫度由自身導熱和表面對流換熱耦合計算確定;忽略翅片和銅管外壁的接觸熱阻,即翅片根部溫度於銅管外壁溫度一致;翅片上下開縫處流體為周期性邊界條件,周期性邊界即把一種重複或周期性的流動條件強加在幾何形狀完全一樣且成對出現的邊界面上,以便能減少計算格線的數量;沿縱向管間距方向上的兩個邊界為對稱性邊界條件;管壁採用恆溫邊界條件。
研究結論
針對平片、開縫翅片利用STAR-CD軟體進行了數值模擬,研究了l對開縫翅片和平片的Δp特性和換熱特性的影響,並用場協同理論對計算結果進行了分析。結果表明:
(1)翅片開縫能起到強化翅片換熱的效果,但Δp也會增大,即流動的阻力會有所增加。
(2)無論是平片還是開縫翅片,v的增大都能增強翅片的換熱特性。
(3)開縫片l的增加,可增強翅片換熱的效果,但流動的阻力也會增大。為了兼顧流動阻力和換熱特性,對於所研究的開縫翅片,l取在0.15~0.2mm比較合適。
(4)對計算結果的協同場分析進一步證實了結果的正確性。

