基本信息
社區實景行政區域: 新區
項目位置: 新區第一崗新區軟體園C棟長江北路與龍山路交匯口
交通狀況: 30路、32路、18路、762路、103路、69路、51路、751路、761路、766路、767路、 769路等;捷運:3號線旺莊路站
建築類型: 高層
物業類別: 公寓,寫字樓
開發商: 無錫市旺莊科技發展有限公司
詳細信息
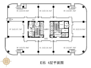
戶型圖產權類型: 大產權房
開工時間: 20100708
容積率: 3.87
綠化率: 30%
總戶數: 514
建築面積: 104415.25平方米
占地面積: 22838.8平方米
周邊配套
周邊配套周邊配套: 就醫條件:新區醫院、虹橋醫院、仁德醫院
就學條件:旺莊國小、長江中學、 國際學校、旺莊中學、無錫實驗幼稚園
商業環境:新地假日廣嘗歐尚、上海華聯超市、華潤萬家、百安居、長江俱樂部、戲江南等高級娛樂休閒場所
內部配套: 精裝公寓、商業配套;國際會議中心、宴會廳、健身會所、高端會客室等國際性商務配套
車位數: 544
價格信息
無錫融智大廈價格:均價10000元/平米
售賣信息
售樓處售樓地址: 無錫市新區龍山路2號軟體園C棟一樓(長江北路與龍山路交匯處)
售樓電話: 400-606-6969轉76276
開盤時間: 2012年10月
入住時間: 2013年6月底
銷售許可證: (2012)預銷售準字第008號
項目介紹
戶型圖寫字樓外立面採用國際化標準的全玻璃幕牆,屋頂花園。9米挑高大堂,辦公標準層高4米,設定成集成吊頂和高架空格線地板。更有國際會議中心、高檔宴會廳、健身會所等配套一應俱全,滿足國際化商務需求。
項目立體化交通環繞,機場高速、312國道等多條重要要道環伺左右,多條公交線路方便到達市區各個區域,未來更有捷運3號線旺莊路站。
項目周邊配套十分完善,寶龍城市廣嘗新地假日中心,國際風情街等商業配套齊全,同時步行至新區管委會、新區地稅局等一些重要政府機構亦近在咫尺。
項目位於國家級科技園區,提供多重優惠政策。

