形成
用一個假象的水平剖切平面沿略高於窗台的位置剖切房屋後,移去上面的部分,對剩下部分向H面做正投影,所得的水平剖面圖,稱為建築平面圖,簡稱平面圖。
作用
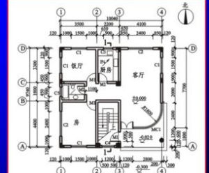
建築平面圖是建築施工圖的基本樣圖,它是假想用一水平的剖切面沿門窗洞位置將房屋剖切後,對剖切面以下部分所作的水平投影圖。它反映出房屋的平面形狀、大小和布置;牆、柱的位置、尺寸和材料;門窗的類型和位置等。
意義
建築平面圖類別
按工種分類
建築平面圖 按照其反映分類
建築平面圖按照其反映的內容可分為:
底層平面圖
又稱一層平面圖或首層平面圖。它是所有建築平面圖中首先繪製的一張圖。繪製此圖時,應將剖切平面選房在房屋的一層地面與從一樓通向二樓的休息平台之間,且要儘量通過該層上所有的門窗洞。
中間標準層平面圖
由於房屋內部平面布置的差異,對於多層建築而言,應該有一層就畫一個平面圖。其名稱就用本身的層數來命名,例如“二層平面圖”或“四層平面圖”等。但在實際的建築設計過程中,多層建築往往存在許多相同或相近平面布置形式的樓層,因此在實際繪圖時,可將這些相同或相近的樓層合用一張平面圖來表示。這張合用的圖,就叫做“標準層平面圖”,有時也可以用其對應的樓層命名,例如“二至六層平面圖”等。
頂層平面圖
房屋最高層的平面布置圖,也可用相應的樓層數命名。
其他平面圖
除了上面所講的平面圖外,建築平面圖還應包括屋頂平面圖和局部平面圖。
內容
建築平面圖 (2)走廊、樓梯位置及尺寸。
(3)門窗位置、尺寸及編號。門的代號是M,窗的代號是C。在代號後面寫上編號,同一編號表示同一類型的門窗。如M-1;C-1。
(4)台階、陽台、雨篷、散水的位置及細部尺寸。
(5)室內地面的高度。
(6)首層地面上應畫出剖面圖的剖切位置線,以便與剖面圖對照查閱。
讀圖
建築平面圖 2.了解定位軸線,軸線編號及尺寸。
3.了解牆柱配置。
4.了解房屋名稱及用途。
5.了解樓梯配置。
6.了解剖切符號,散水,雨水管,台階,坡度,門窗和索引符號。
繪圖
用CAD繪製建築平面圖的步驟:
軸線(最好把尺寸給標上)——輔助線——牆線——門窗洞口——樓梯——其他。

