基本信息
社區實景行政區域: 蔡甸
項目位置: 城南路5號湖
交通狀況: 從市內王家灣乘3101巴士,的士,僅需15分鐘就可到達本項目,另區內公交1路,2路,3路,4路環繞本項目周圍
建築類型: 板樓
物業類別: 普通住宅
開發商: 武漢市鵬信城市建設工程有限公司
物業費: 1元/月/平方米
詳細信息
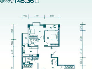
戶型圖產權年限: 70年
產權類型: 大產權房
容積率: 4
綠化率: 21%
總戶數: 208
建築面積: 42578平方米
占地面積: 14077平方米
周邊配套
周邊配套周邊配套: 就醫條件:十三醫院 查找周邊醫院就學條件:區幼稚園、蔡甸一孝蔡甸二孝蓮花湖中學 查找周邊學校商業環境:中百、蔡甸商業正街、五層街集貿市嘗東方市嘗建設銀行、農業銀行、工商銀行、中國信合、三五酒店、蓮花湖酒店
內部配套: 0,0
車位數: 110餘
價格信息
城南明珠價格:均價3800元/平米
售賣信息
售樓處售樓地址: 蔡甸區城南路5號湖
開盤時間: 2009年10月18日
入住時間: 2010年11月30日
銷售許可證: 武開管預售[2009]225號

