基本信息
社區實景行政區域: 龍崗區
項目位置: 龍崗大道原深惠路木棉灣捷運站B出口20米處捷運3號線
交通狀況: 位於龍崗大道(原深惠路)沿線,車行5分鐘到羅湖;距捷運3號線木棉灣站僅20米(站台與項目二樓商業通過連廊直接相連),一站換乘捷運5號線,2站進羅湖,7站東門、10站華強北;門口即是公交站台(木棉灣捷運站),逾40條公交線路直達各區;一站至布吉客運樞紐,匯聚火車、雙捷運、高鐵、城市主幹道等7大交通工具, 30分鐘通達全城,2小時暢行珠三角,8小時縱橫南中國。
建築類型: 高層
物業類別: 普通住宅
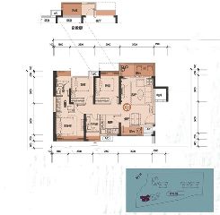
主力戶型: 44平方米1居室,68-70平方米2居室以及86-95平米
開發商: 深圳市正昌泰投資諮詢有限公司
詳細信息
戶型圖產權年限: 70年(2012.4.10起)
產權類型: 大產權房
開工時間: 20120209
容積率: 5.0
綠化率: 30%
總戶數: 1086
建築面積: 138741.5平方米
占地面積: 19393.46平方米
周邊配套
周邊配套周邊配套: 世紀數碼電腦城、世紀皇廷酒店、新一佳、蘇寧、人人樂、沃爾瑪、大芬油畫村產業基地、金海馬家居、湘田園酒樓等
內部配套: 商業未來規劃包括百貨、超市、影院等。
車位數: 地下停車位560個
價格信息
龍崗大道1號價格:均價20000元/平米
售賣信息
售樓處售樓地址: 龍崗大道(原深惠路)木棉灣捷運站B出口20米處(捷運3號線)
售樓電話: 400-606-6969
開盤時間: 1棟B單元_2棟ABC單元2012年12月1日
入住時間: 預計2013年年底
銷售許可證: 深房許字(2012)龍崗034號
項目介紹
樣板間項目共有2棟,自帶9班制幼稚園,較高的是1棟41層高超層住宅,分為AB兩單元;較低的為2棟,共有四個單元。含1082套住宅,戶型以44㎡一室一廳、 68兩室一廳、70-86㎡兩室兩廳、95㎡兩房兩廳兩衛為主,全系精裝交樓。
龍崗大道1號,既是全市稀缺型的零度捷運物業,也是城市主幹道龍崗大道沿線最好地段的地標級高檔住區,主力戶型為精裝交樓的中小戶型,普適於全市剛需客群及過渡性自住及投資型客戶。
龍崗大道1號是佳兆業匯聚14年開發經驗所打造的零度捷運城市地標住區,坐落於羅湖北行政中心,是一個對面有公園、電影院,門口有捷運,樓下有商業、幼稚園等配套的投資自住兩皆宜的住區。
整個社區占地約2萬㎡,建築面積約13.5萬㎡,整體坐北朝南。項目門口便是原深惠路,今年8月份更名為龍崗大道,與寶安大道、深南大道相連,形成深圳東西向縱貫線。更名後的龍崗大道將深南大道發展的軌跡外延至羅湖和龍崗,項目所在商圈羅湖北也從而升級為羅湖新的中心。而項目更以龍崗大道起始路段的高達41層城市建築,成為龍崗大道新地標,因此叫做龍崗大道1號。

