主要作用
隔離開關(1)分閘後,建立可靠的絕緣間隙,將需要檢修的設備或線路與電源用一個明顯斷開點隔開,以保證檢修人員和設備的安全。
(2)根據運行需要,換接線路。
(3)可用來分、合線路中的小電流,如套管、母線、連線頭、短電纜的充電電流,開關均壓電容的電容電流,雙母線換接時的環流以及電壓互感器的勵磁電流等。
(4)根據不同結構類型的具體情況,可用來分、合一定容量變壓器的空載勵磁電流。
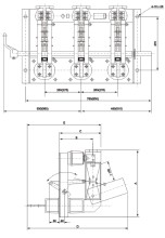
高壓隔離開關按其安裝方式的不同,可分為戶外高壓隔離開關與戶內高壓隔離開關。戶外高壓隔離開關指能承受風、雨、雪、污穢、凝露、冰及濃霜等作用,適於安裝在露台使用的高壓隔離開關。按其絕緣支柱結構的不同可分為單柱式隔離開關(single-column disconnector)、雙柱式隔離開關(double-column disconnector)、三柱式隔離開關(three-column disconnector)。其中單柱式隔離開關在架空母線下面直接將垂直空間用作斷口的電氣絕緣,因此,具有的明顯優點,就是節約占地面積,減少引接導線,同時分合閘狀態特別清晰。在超高壓輸電情況下,變電所採用單柱式隔離開關後,節約占地面積的效果更為顯著。
隔離開關在低壓設備中主要適用於民宅、建築等低壓終端配電系統。主要功能:不帶負荷分斷和接通線路。
特點
1.在電氣設備檢修時,提供一個電氣間隔,並且是一個明顯可見的斷開點,用以保障維護人員的人身安全。
2.隔離開關不能帶負荷操作:不能帶額定負荷或大負荷操作,不能分、合負荷電流和短路電流,但是有滅弧室的可以帶小負荷及空載線路操作。
隔離開關3.一般送電操作時:先合隔離開關,後合斷路器或負荷類開關; 斷電操作時:先斷開斷路器或負荷類開關,後斷開隔離開關。
4.選用時和其它的電氣設備相同,其額定電壓、額定電流、動穩定電流、熱穩定電流等都必須符合使用場合的需要。
隔離開關的作用是斷開無負荷電流的電路.使所檢修的設備與電源有明顯的斷開點,以保證檢修人員的安全,隔離開關沒有專門的滅弧裝置不能切斷負荷電流和短路電流,所以必須在電路在斷路器斷開電路的情況下才可以操作隔離開關。
基本簡介
隔離開關是高壓開關電器中使用最多的一種電器,顧名思義,是在電路中起隔離作用的它本身的工作原理及結構比較簡單,但是由於使用量大,工作可靠性要求高,對變電所、電廠的設計、建立和安全運行的影響均較大。刀閘的主要特點是無滅弧能力,只能在沒有負荷電流的情況下分、合電路。
基本術語
低壓隔離開關
HD、HS系列隔離開關
HR系列熔斷器式隔離開關
低壓斷路器
DW10系列框架式自動開關
DWX15.DWX15C系列萬能式限流斷路器
隔離開關DW17(ME)系列萬能式斷路器DZ10系列塑膠外殼式自動開關
DZ15系列塑膠外殼式斷路器
DZX10系列塑膠外殼式限流斷路器
DZ20系列塑膠外殼式斷路器
DZ25系列塑膠外殼式斷路器
高壓隔離開關
GN系列戶內高壓隔離開關
高壓斷路器
GW系列戶外高壓隔離開關
常見高壓隔離開關型號
CR 中心斷口隔離開關(126kV~252kV)
DR 雙面隔離開關(72.5kV~363kV)
KR 雙柱水平伸縮式隔離開關(126kV~550kV)
PR 單柱雙臂垂直伸縮式隔離開關(126kV to 500kV)
SR 水平鏇轉單側斷口式隔離開關(40.5kV)
VR V型中心斷口隔離開關(126kV)
YR 單柱單臂垂直伸縮式隔離開關(126kV~550kV)
高壓斷路器
DW系列高壓戶外安裝多油斷路器
SW系列高壓戶外安裝少油斷路器
SN系列高壓戶內安裝少油斷路器
ZW系列高壓戶外安裝真空斷路器
隔離開關ZN系列高壓戶內安裝真空斷路器LW系列高壓戶外安裝SF6斷路器
LN系列高壓戶內安裝SF6斷路器
套用
1.用於隔離電源,將高壓檢修設備與帶電設備斷開,使其間有一明顯可看見的斷開點。
2.隔離開關與斷路器配合,按系統運行方式的需要進行倒閘操作,以改變系統運行接線方式。
3.用以接通或斷開小電流電路。
一般在斷路器前後二面各安裝一組隔離開關,目的均是要將斷路器與電源隔離,形成明顯斷開點;因為原來的斷路器採用的是油斷路器,油斷路器需要經常檢修,故二側就要有明顯斷開點,以利於檢修;一般情況下,出線櫃是從上面母線通過開關櫃向下供電,在斷路器前面需要一組隔離開關是要與電源隔離,但有時,斷路器的後面也有來電的可能,如通過其它環路的反送,電容器等裝置的反送,故斷路器的後面也需要一組隔離開關。
隔離開關主要用來將高壓配電裝置中需要停電的部分與帶電部分可靠地隔離,以保證檢修工作的安全。隔離開關的觸頭全部敞露在空氣中,具有明顯的斷開點,隔離開關沒有滅弧裝置,因此不能用來切斷負荷電流或短路電流,否則在高壓作用下,斷開點將產生強烈電弧,並很難自行熄滅,甚至可能造成飛弧(相對地或相間短路),燒損設備,危及人身安全,這就是所謂“帶負荷拉隔離開關”的嚴重事故。隔離開關還可以用來進行某些電路的切換操作,以改變系統的運行方式。例如:在雙母線電路中,可以用隔離開關將運行中的電路從一條母線切換到另一條母線上。同時,也可以用來操作一些小電流的電路。
操作要領
運行人員在執行倒閘操作時,必須認真檢查斷路器確實在斷開位置。對於三相聯動的隔離開關,三相起落應同時,相差不得大於3mm,方允許進行隔離開關的分合閘操作。
1.隔離開關合閘操作要領
如果是手動操作,運行人員應先撥出連鎖銷子後再進行合閘,開始應緩慢,當動觸頭接近靜觸頭時要迅速合上,以防止產生弧光。如果在合閘開始時就發生電弧,則應立即將隔離開關合上,禁止運行人員將隔離開關再往回拉,因為回拉將會使弧光擴大,造成設備更進一步的損壞。在合閘終了時用力不可過猛,以避免合閘過深,使支持瓷瓶受損傷。在隔離開關合好後,運行人員應認真檢查合閘是否良好,動觸頭是否完全進入靜觸頭內,以防止因接觸不良而引起動靜觸頭髮熱。
(1)對於轉軸上迴轉的隔離開關,合閘後應使刀片處於垂直固定觸頭的平面上,這樣才能保證觸頭處的壓力和必要的接觸電阻。
(2)對平開式隔離開關,例GW5型隔離開關,合閘後刀片應轉至水平位置,其臂應伸直。如果靜觸頭活動帽口偏右,說明動觸頭臂錘桿合過了頭。
冬季操作戶外隔離開關時,可用數次接通和斷開的方法將觸頭上的凍冰和霜雪摩擦掉,使隔離開關合上後能保證動靜觸頭接觸良好。隔離開關可靠運行的條件就是在隔離開關有傳動裝置時,應以其正確的調整來保證;如果沒有傳動裝置,則應以絕緣桿的正確操作來保證。
各種規格的隔離開關均不允許在短路時自動脫落,為此,隔離開關在合閘位置時,應以五防閉鎖裝置閉鎖著。值班人員需認真檢查這些裝置,在每次隔離開關合閘後用銷子將隔離開關扣住,並將五防閉鎖裝置鎖好,避免隔離開關自動脫開,造成事故。
鑒於以上分析,特總結如下:手動合上隔離開關時,必須迅速果斷,在隔離開關快合到底時不能用力過猛,以免損壞支持絕緣子。當合到底時發現有弧光或為誤合時,不準再將隔離開關拉開,以免由於誤操作而發生帶負荷拉隔離開關,擴大事故。
2.隔離開關分閘操作要領
隔離開關拉開時,開始應慢且謹慎些,當動觸頭離開靜觸頭時,如果發生電弧,運行人員應立即將隔離開關合上,停止操作。但是在切斷小負荷電流和充電電流時,拉開隔離開關將有電弧產生,此時應迅速將隔離開關斷開,以便順利消滅電弧。在拉閘終了時要緩慢,這是為了防止衝擊力對支持瓷瓶和操作機構的損壞,最後運行人員應檢查連鎖銷子是否銷好。在隔離開關拉開後,運行人員應認真檢查隔離開關確實在斷開位置,斷開的空氣絕緣距離應合格,並檢查動觸頭確實已拉到盡頭,並且拉開的角度應符合製造廠家的規定。對於室內隔離開關,如果斷開的絕緣距離不夠,應插入絕緣隔板,否則帶電側與停電掛地線的一側會發生放電短路事故。
鑒於以上分析,特總結如下:手動來開隔離開關時,應慢而謹慎,如觸頭剛分離時發生弧光應迅速合上並停止操作,立即檢查是否為誤操作而引起電弧。運行人員在操作隔離開關前,應先判斷拉開該隔離開關是否會產生電弧,在確保不發生差錯的前提下,對於會產生弧光的操作應快而果斷,並儘快使電弧熄滅,以免燒壞觸頭。
3.裝有電磁閉鎖的隔離開關當閉鎖失靈的操作要領
應嚴格遵守防誤閉鎖裝置解鎖規定,認真檢查設備的實際位置,並得到值班調度員同意後方可接除閉鎖進行操作。目前,大多數變電站隔離開關通常裝有接地刀閘,用來線上路、斷路器、隔離開關檢修時接地。在工作隔離開關與接地刀閘之間裝有機械閉鎖裝置。當工作隔離開關接通時,接地刀閘就合不上;而在接地刀閘合上後,工作隔離開關就合不上。此種閉鎖裝置目前在變電站普遍採用,目的是防止誤接地。
4.電動操作的隔離開關遇到電動失靈的操作要領
運行人員應立即查明原因與該隔離開關有閉鎖關係的所有斷路器、隔離開關、接地刀閘的實際位置,正確無誤後才可斷開隔離開關操作電源而進行手動操作。
以上為隔離開關在操作過程中的操作要領,為了幫助操作人員正確掌握手動拉合隔離開關的操作要領,特總結以下要訣:
手動合閘慢後快,手動分閘快後慢
遇到故障要冷靜,仔細分析找原因
切勿盲目去分合,以防損壞支撐件
無論是分還是合,瓷瓶下面別站人
維護
1)清掃瓷件表面的塵土,檢查瓷件表面是否掉釉、破損,有無裂紋和閃絡痕跡,絕緣子的鐵、瓷結合部位是否牢固。若破損嚴重,應進行更換;
2)用汽油擦淨刀片、觸點或觸指上的油污,檢查接觸表面是否清潔,有無機械損傷、氧化和過熱痕跡及扭曲、變形等現象;
HGL-隔離開關3)檢查觸點或刀片上的附屬檔案是否齊全,有無損壞;
4)檢查連線隔離開關和母線、斷路器的引線是否牢固,有無過熱現象;
5)檢查軟連線部件有無折損、斷股等現象;
6)檢查並清掃操作機構和傳動部分,並加入適量的潤滑油脂;
7)檢查傳動部分與帶電部分的距離是否符合要求;定位器和制動裝置是否牢固,動作是否正確;
8)檢查隔離開關的底座是否良好,接地是否可靠。
設計寶典
設計要素
套用分類 負載分類 負荷分級
變頻器、軟起動器基本原理 變頻器、軟起動器選件功能說明 變頻器、軟起動器一次圖常見錯誤設計 變頻器、軟起動器而次圖常見錯誤設計 變頻器、軟起動器招標技術規範書注意事項 變頻器、軟起動器、電機管理控制器典型套用圖集 變頻器、軟起動器特殊套用方案 變頻器、軟起動器工程套用方案
Schneider Electric - Division - Name – Date 3
設計要素—套用分類
工業套用
為滿足工業生產的需要 如石油開採、石化、冶金、建材、起重、礦山、紡織、造紙、菸草、製糖、 食品生產、水處理、輕工、電力、煤礦等行業 對產品性能、功能、可靠性、控制精度等要求較高 甚至特殊苛刻的要求 一旦故障停機會造成重大財產損失或人員傷亡 施耐德電氣變頻器ATV71/61適用於工業套用 施耐德電氣軟起動器ATS48適用於工業套用
建築套用(民用)
為滿足人們日常生活的需要,如舒適性空調 如商場、醫院、寫字樓、辦公樓、會議中心、機場、醫院等場所的暖通空調 (HVAC) 對產品無特殊要求 故障停機一般帶來生活不便,不會有重大財產損失或人員傷亡 施耐德電氣變頻器ATV21適用於民用工程套用 施耐德電氣軟起動器ATS48/ATS22適用於民用工程套用
Schneider Electric - Division - Name – Date 4
設計要素——負載分類
根據負載調速特性(負載轉矩—轉速)劃分
風機類負載(或二次方負載) 恆轉矩類負載 恆功率類負載 適用於變頻器
根據負載起動難易程度
標準負載(10級標準套用) 重型負載(20級重載套用) 適用於軟起動器
空載起動 輕載起動
Schneider Electric - Division - Name – Date
5
常見負載轉矩特性:負載轉矩—轉速關係
恆轉矩負載
位能性,方向總是不變,與運動方向無關, 如起吊的重物 函式關係:TL=f(n)=C 反抗性,方向總是與運動方向相反,如傳送帶 函式關係:TL=f(n)=± C
位能性恆轉矩 反抗性恆轉矩
風機類負載
轉矩與轉速的二次方成正比 函式關係:TL=f(n)= T0+kn2 典型負載:離心泵、風機
風機類負載
恆功率負載
恆功率負載
Schneider Electric - Division - Name – Date
轉矩與轉速成反比關係 函式關係:TL=f(n)= k/n 常見負載類型:繞線機、卷板機
五金材料(一)
| 常見五金材料。 |

