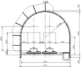
軌道巷實際使用存在的問題
眾所周知,巷道掘進後收縮變形最直接的影響是巷道使用斷面達不到設計斷面的要求,使得巷道內設備布置困難,影響巷道的正常使用;巷道通風斷面變小,風速增加,影響礦井正常通風;巷道頂板下沉、兩幫移近、底鼓,特別是頂板下沉會造成嚴重的安全隱患,如果下沉的頂板冒落會危及人身安全;嚴重的巷道收縮變形會造成人員行走困難,而底鼓則會造成的軌道變形會影響井下礦車正常運行。因而分析巷道全斷面收縮變形機理,改善巷道的支護設計,是提供保障巷道不發生收縮變形的有效控制手段和方法。
影響巷道收縮變形的因素
影響巷道收縮變形的因素主要有如下3種:
圍岩狀態
圍岩性質和結構狀態對巷道收縮變形起著決定性作用,若軌道巷頂板和底板均為鬆軟岩層(例如泥岩,堅固係數僅為1.6,堅固性不到普通砂岩的50%)。當巷道受到應力時,因為圍岩強度較低,勢必造成頂板下沉、底板鼓起和兩幫收斂。
采動影響
軌道巷兩側均受到采動壓力的影響,這種應力作用是不可避免的。當應力較小時,巷道變形較小,而超過一定限度則巷道收縮變形嚴重。
水理作用
若圍岩中易吸水的礦質(例高嶺石)含量較高,則極易遇水膨脹,造成巷道圍岩收縮變形;若此時軌道巷沒有設計水溝,則巷道底板長期存在大量積水,巷道就會發生嚴重底鼓。
改進措施
1) 軌道巷圍岩屬於鬆軟岩層,巷道易發生大變形, 建議採用注漿的方式加固巷道圍岩,改變圍岩的力學性質,提高圍岩的穩定性,減少巷道頂板下沉和兩幫移進。
2) 加大停采線距軌道巷的距離,或採用爆破、水壓致裂的方式在停采線處切頂,減少工作面回採引起的岩層移動導致的應力重分布對軌道巷的破壞,減少巷道變形量。
3)由於圍岩中高嶺石含量較大,遇水膨脹,而軌道巷沒有設計水溝,巷道底板長期存在大量積水,導致巷道底鼓嚴重, 應採用挖水溝的方式把水集中到水溝處,減少水對巷道底板的作用範圍,減少巷道底鼓量。
4)調整採掘銜接關係。工作面布置由沿軌道巷巷口向巷道末端方向布置,改為沿軌道巷末端向巷口方向布置,減少軌道巷巷口至巷道中部位置受到的采動影響時間,減少該部位巷道變形時間,進而減少巷道變形量,把受采動影響時間長部位的布置調整至軌道巷末端位置。新的採掘銜接安排可以在軌道巷末端附近的工作面采完後關閉軌道巷相關部位,這樣即使軌道巷末端部位巷道受采動影響而發生大變形也沒有必要返修巷道。

