基本信息
社區實景行政區域: 港口區
項目位置: 港口區漁洲城
交通狀況: 101路公車
建築類型: 雙拼,聯排,低層
物業類別: 別墅,商住
開發商: 防城港市萬象置業有限公司
物業費: 1.5元/月/平米
詳細信息
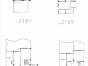
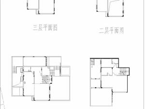
戶型圖產權年限: 70
產權類型: 大產權房
開工時間: 20100501
容積率: 1.28
綠化率: 0.3%
總戶數: 21
建築面積: 8095.25平方米
占地面積: 6341.36平方米
價格信息
萬象御府價格:均價8500元/平米
售賣信息
售樓處售樓地址: 港口區漁洲城
售樓電話: 400-606-6969轉82963
開盤時間: 2011年5月1日
入住時間: 2012年8月30日
項目介紹
戶型圖萬象御府別墅是純地中海風格建築,21棟豪宅里紅瓦、白牆、拱窗、還有坡屋頂上的煙窗等,完整勾勒出異國情調。項目的別墅豪宅以一條貫穿小區的主幹道左右布局,莊重氣派的主次門設有專人服務;硬實的花崗岩地磚、精緻的文化石水渠裝飾在您便利出行小區的同時,平添不少樂趣。
別墅負一層有雙車位私家車庫、健身娛樂室、管家房,良好的通風采光在滿足活動的同時,也保障了房屋主體的安靜氛圍。一層是闊綽的客廳,超大使用空間無論家庭小聚還是舉辦宴會都大方得體,窗外美景還能通過落地大窗一同分享,值得一提的是客廳的挑空設計,足夠的高度配上一盞超華麗的水晶燈,主人的身份地位立即展現了出來。在二層的主臥,寬敞的房間裡、浴室都預留了許多可以由您發揮設計地方,特別在浴室,不僅設定有乾濕分離的衣帽間,還有合適的位置讓您可以放置下一個豪華按摩浴池。從一層到三層,別墅都配屬有相應的客房,客房有獨立的衛生洗浴間,家人自住或者接待來客,都十分便利。
萬象御府別墅入門階梯配上花叢,進出都能帶上好心情,在一層配套有私屬後花園,種上自己喜歡的花草,賞心悅目的同時也滿足了私密性需求,是午後品茶休閒的好地方。主臥客房都選取最佳朝向建有景觀陽台,將小區內外最好的風景引入室內;在三樓還有超大露台,露台圍擋精心採用鏤空設計,下雨過後也能快速通風保持乾燥,這也正是地中海風格建築的精髓所在。作為別墅豪宅,我們悉心為業主著想,整棟別墅外玻璃窗都選用了非常適合海濱氣候的中空玻璃,恆溫隔音效果顯著,讓居住環境水平進一步提升。相信您也一定關注到,萬象御府別墅引以為豪的旋轉樓梯,大氣奢華,稍加裝潢,必將成為令人矚目的亮點。
大空間,高品質,此外也有多贈送,相信您和您的家人會喜歡上萬象御府,也歡迎您全家入住別墅豪宅!

