功能作用
汽車空調電磁離合器汽車空調電磁離合器是汽車發動機和汽車空調壓縮機之間的一個動力傳遞裝置,汽車空調壓縮機是由汽車發動機通過電磁離合器來驅動的。
主要部件
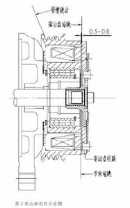
汽車空調電磁離合器一般都是由帶輪總成、線圈總成和驅動盤總成這三個部分組成。
汽車空調電磁離合器工作原理
汽車空調電磁離合器汽車空調電磁離合器受空調開關、溫控器、空調放大器、壓力開關等控制,在需要的時候接通或切斷髮動機與壓縮機之間的動力傳遞。另外,當壓縮機過載時,它還能起到一定的保護作用。
其中,電磁線圈固定在壓縮機的外殼上,驅動盤與壓縮機的主軸相連線,皮帶輪通過軸承安裝在壓縮機頭蓋上,可以自由轉動。當空調開關接通時,電流通過電磁離合器的電磁線圈,電磁線圈產生電磁吸力,使壓縮機的驅動盤與皮帶輪結合,將發動機的扭矩傳遞給壓縮機主軸,使壓縮機主軸鏇轉。當斷開空調開關時,電磁線圈的吸力消失,在彈簧片作用下驅動盤和皮帶輪脫離,壓縮機停止工作。
汽車空調電磁離合器離合器總成圖解
汽車空調電磁離合器主要生產廠家
日本的小倉離合器株式會社是目前全球汽車空調電磁離合器產銷量最大的公司,也是全球業界標準的制定者。其在全球有多家分公司,在中國東莞、無錫也設有分廠。除此國內就只有上海三電貝洱汽車空調有限公司和安徽昊方機電股份有限公司兩家比較有競爭力的廠家了。
故障維修
空調電磁離合器線圈被燒毀,除品質問題外,主要是空調系統的壓力過高,帶動壓縮機運轉的阻力過大,超過該電磁線圈的電磁吸力,使離合器主被動盤產生相對滑移摩擦,導致過熱而燒毀。
空調系統壓力過高有3種原因:
①停車時發動機怠速運轉,且長時間在太陽暴曬下使用空調;
②當水箱散熱風扇出現故障時,還長時間、高強度地使用空調(水箱散熱風扇是與空調冷凝器風扇共用的);
③製冷系統中加入的氟利昂過量。
汽車空調電磁離合器在壓縮機開始工作時,注意察看貯液罐的觀察窗,發現觀察窗內一點氣泡都沒有。再將高低壓表接入製冷系統中,檢查其壓力,發現高壓側和低壓側壓力均偏離。顯然,製冷劑加注過量。將製冷劑從低壓側適量排除後(以高壓側壓力12-18MPa,低壓側壓力0.15-0.30MPa為適宜),故障被排除。
為避免此類故障發生,平時應在以下3種情況下不準使用空調。
①製冷液加入量超過規定時,要及時放出,否則不準使用空調。檢查製冷液多少的方法是:在壓縮機開始工作時,看儲液罐觀察窗內有無氣泡,如果沒有氣泡,說明是製冷液過多,應適量放出,如果氣泡太多,說明製冷液太少,應適量添加製冷液,
②水箱散熱風扇發生故障停止運轉時,應立即停止使用空調,否則製冷系統將產生超高壓,使電磁離合器打滑而燒毀。
③停車時,發動機怠速運轉情況下,最好不開空調。
