基本信息
社區實景行政區域: 大興
項目位置: 亦莊輕軌榮昌街站以西兩公里涼水河一街和博興七路交匯處
交通狀況: 距2010年底開通的輕軌亦莊線榮昌街站兩公里。也可以乘坐453、665、運通115、運通202、開發區1-4路、652、723、927、976、324、997、小11等多路公交線到青年公寓下車
建築類型: 板樓
物業類別: 普通住宅
開發商: 北京博大興房地產開發有限公司
物業費: 2.8元/月/平米
詳細信息
戶型圖產權年限: 70年
產權類型: 大產權房
容積率: 1.5
綠化率: 31%
總戶數: 882
建築面積: 151407平方米
占地面積: 72222.8平方米
周邊配套
周邊配套內部配套: 雙語幼稚園,中芯學校,畢麥升英文中心、亦莊中學、亦莊第二中心國小、21世紀雙語幼稚園、美格雙語幼稚園、亦莊中心幼稚園、開發區試驗學校、東方愛嬰
車位數: 983
供暖方式: 集中供暖
價格信息
悅廷價格:待定
售賣信息
售樓處售樓地址: 亦莊輕軌榮昌街站以西兩公里,涼水河一街和博興七路交匯處
開盤時間: 二期房源預計2012年12月底開盤 一期1至7號樓2010年10月 2010年8月1日
入住時間: 二期辦公房源2013年1月 一期1至7號樓2011年底入住
銷售許可證: 京房售證字( 2010 )開2號
項目介紹
樣板間悅廷地處亦莊輕軌榮昌街站以西兩公里(涼水河一街和博興七路交匯處)。項目周邊環境優美,交通便利,配套設備齊全。
【亦莊---京城唯一國際宜業宜居新城】
亦莊新城居住核心,昔日皇家苑囿,水肥草美,今日國際新城,宜業宜居。依託東南五環和京津塘高速路,距CBD核心——國貿橋車程僅12公里,全程無紅綠燈;更享有M12、L2雙輕軌之便,2010年年底即將開通的亦莊輕軌北接捷運五號線,使出入開發區更為便捷。多條公交線路,能通達內環、三環、四環、區域潛力巨大。
與NOKIA、GE、LG、IBM等66家世界500強為鄰,與超過100家跨國企業為伴,配套的商業、文化、醫療等服務設施全面完善,於亦莊“高新技術產業中心”、“高端產業服務基地”和“國際宜業宜居新城” ,無論是居注投資、土地升值等各大方面,均展示出無比強大的潛力,享受世界前沿的未來無限價值。
【五環區域唯一高品質低密度生活區】
亦莊核心區低密度產品特性和生活形態帶來京城五環區域唯一高品質低密度人居氛圍,本項目傳承此產品規劃及生活理念為京城帶來稀缺型低密度花園洋房。
【1.5容積率低密度花廳洋房 一戶一花廳】
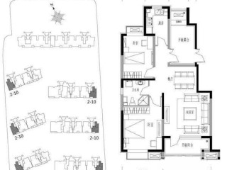
悅廷總建設用地面積為72222.8㎡, 地上建面為106084㎡,項目由15棟9-11層板樓組成,共882戶。
一梯兩戶 ,戶型以南北通透兩居、三居為主,贈送大面積入戶花廳及陽台;另有首層帶下沉庭院戶型及頂層躍層戶型。首創下沉式溪谷園林,實現城市精英階層所追求的高品質生活。簡潔、時尚、現代的外立面整體風格,色彩莊重內斂,賦予建築獨有的垂直美感,自然地流露出居住者的夢想和浪漫主義的情懷。
北方地區少有的開敞入戶花廳的設定,豐富了入戶的空間序列,提升了日常家居生活體驗,增加了客戶的高居住價值感。
【下沉式景觀軸 社區景觀的生態性與休閒性】
作為建築品質延伸的極致,是社區的綠色峽谷。有如綠色飄帶的景觀綠軸貫穿整個園區,營造愜意的林下空間,帶您遠離都市的喧雜繁鬧。
景觀綠軸不僅平面上連線三個建築宅間綠地,將兒童活動廣嘗老年休閒廣場等散布在綠地里的休閒空間串聯起來。豎向上也營造陽光下庭院的多層次景觀空間。景觀設計上主要突出2個方面:
第一方面:生態性,下沉綠軸作為一個堅持可持續發展、以人為本的生態型的開放空間,因此,在設計上,我們將它定位為“生態型下沉綠軸”,利用綠色能源創造綠色環境,將多功能、多層次立體化的綠化系統和社區功能系統有機結合起來。營造一個人與自然安詳共存、和諧共生的環境。
第二方面:休閒性,下沉綠軸不僅僅是解決人流交通的場所,更是業主文化娛樂的活動空間,我們認為整個綠軸應該具有整體的休閒性和遊藝性,在此設計中我們以“休閒”為切入點,讓空間造型不受功能束縛,而是運用標誌性景觀水景公共設施綠化燈具等活潑的造型、鮮明的顏色,明確的動靜關係,讓整個廣場充滿熱烈歡快的氣氛。
同時項目獨享緊鄰北側的13000㎡城市綠地,帶來區內區外的全新生態感受。
【社區教育生活配套一個都不少】
悅廷低密度規劃里將步行商業街和國際雙語幼稚園引入社區,規劃超市、咖啡店、餐吧、麵包店、藥店、洗衣店、美容美髮、健身中心等,滿足家居日常生活的全面需求,形成便利的生活環境。項目周邊已形成成熟居住區擁有良好居住氛圍,中芯國際學校、二十一世紀國際雙語幼稚園、亦莊中學、同仁醫院、亦莊醫院。教育培訓、健身娛樂、醫療機構等一應俱全。

