延邊國際會展中心中心簡介
延邊國際會展中心國家:中國
城市:吉林省延吉市
地址:中國吉林省延吉市長白西路
延邊國際會展中心,是重大活動的舉辦地,位於延吉市西郊,南靠302國道、北望布爾哈通河、西連延吉國際空港、東臨金達萊廣場。會展中心室內展廳主體為三層框架結構,電源、計算機網路連線埠分布到位,展廳兩側配有四部運輸電梯、五處樓梯,中部有四部扶梯,可設200個國際標準展位。一樓簽字廳面積153平方米,可容納70人參加儀式,二樓會見廳面積116平方米,可容納貴賓18人。三樓會議室面積183平方米,可接待賓客25人。國際會議廳設有400個座位,配有6聲道同聲傳譯系統和多媒體投影儀等現代化設施,可滿足各種類型會議的召開。另有洽談室,新聞發布廳、咖啡廳等。
自2002年投入使用以來,已成功舉辦“中國圖們江地區國際投資貿易洽談會”、“第一屆中國世界語國際旅遊節”、“圖們江地區國際合作開發促進會”、“第五屆中國世界語大會”、“延邊中俄韓新流通博覽會”、“延邊·佛山-聖彼得堡貿易推介會”等國際性和全中國性展會,贏得中國內外客商廣泛讚譽。
中心介紹
延邊國際會展中心通信系統
1、展館內展位、會議室、辦公用房等場所可提供直線電話100餘部。
2、中國網通、中國聯通在展館內設有無線覆蓋系統,可支持手機使用;另外,展館內還設有無線市話(小靈通)機站,可支持小靈通使用。
3、各展區、樓層設有IC卡公話。
4、可開設保密電話若干部,保證領導和代表團的使用。
公共廣播系統
公共廣播系統負責向展廳、多功能廳、會議室、辦公室、走道等區域提供可靠的、高質量的背景音樂、緊急廣播、業務廣播等服務。在發生火災及其它緊急情況時,與中心消防系統聯動,滿足火災緊急廣播的要求。
網路系統
會展中心內擁有完善的綜合布線系統,可同時滿足200個信息點的交換能力,可通過區域網路直接接入網際網路。在重要的會議室及信息中心內等處設有接入點,保障會議及機房的使用和具有很好的可擴展性。
消防監控系統
煙感、溫感探頭遍及會展中心各個方位,24小時對展廳各部位進行監測,各展廳間設有防火捲簾門與中心消防系統聯動。各展廳的攝像探頭和自動報警系統可以對展廳進行全天候全方位監控。
平面圖
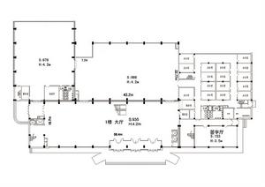
延邊國際會展中心一層平面圖 | 延邊國際會展中心二層平面圖 |
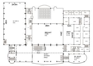
延邊國際會展中心三層平面圖 | 延邊國際會展中心平面圖 |
區位優勢
延邊國際會展中心延邊享受民族區域自治、西部大開發和振興東北老工業基地等優惠政策,是中國享受優惠政策最集中的地區,面臨著千載難逢的歷史發展機遇,蘊藏無限的商機和希望。
中心管理
延邊國際會展中心一、參展資格審查
1、參展單位必須具有合法的經營資格,其經營活動應當符合國家法律、法規。
2、參展單位必須提交如下證件:
① 營業執照複印件及具有法人資格的有效證件和企業代碼。
② 特殊行業參展須提交特殊行業許可證。如食品行業須提交“經營許可證”、“衛生許可證”、“從業人員健康許可證”等。
3、偽劣、假冒產品(商品)禁止參展。
4、一切涉及引爆或放射性危險品,劇毒品、麻醉品禁止參展。
5、主辦單位有規定及有礙於展覽會舉辦的物品不得參展。
二、對展會期間的各項規定
1、不得展示,出售侵犯他人商標的樣品或使用他人的商標對外報價或交易,如有違者,後果由該參展企業自負。2、嚴禁以任何方式(含聯營)將展位轉租或轉讓,禁止超越展位外的經營活動。
3、嚴禁吸菸、使用明火,嚴禁將易燃易爆等危險品帶入展館。
4、嚴禁攜帶淫穢、色情及一切不健康的宣傳品進入展廳。
三、參展報名手續
1、參展單位需填妥參展申請表三份,並加蓋公章。
2、參展單位的營業執照複印件傳真或郵寄到主辦單位或會展中心。
3、在規定的時間內將參展費用匯至主辦單位指定賬戶。
布展須知
一、布展期間不得破壞公共設施。
二、各參展單位的展品、樣品必須擺放在各自的展位內。
三、參展商需要其它展具(展台、展架、電源安裝),須向會展中心辦理手續。
四、保持展廳清潔衛生,嚴禁隨地吐痰,飯盒、紙屑等廢棄物需倒入垃圾桶。
五、注意防火,嚴禁在展廳內吸菸;不能在展廳內使用明火,不能將易燃易爆物品帶進展廳。
六、布展注意事項
1、所有布展必須符合《展廳有關規定》的要求。
2、重點展區和普通特裝展位未經會展中心確認,進場時不得帶展具進館布展,撤館時不能帶展具出館。
3、對大會統一搭建的展位和配置的展具,不得擅自拆裝改動,嚴禁鋸裁展館鋁材夾板或在展板上油漆、打釘、開洞、大面積裱褙。
重要活動
延邊國際會展中心活動“預防職務犯罪展”開展
第三屆中國圖們江地區國際投資貿易洽談會
延邊•佛山-聖比得堡貿易推介會
延邊中俄韓新流通博覽會
電視連續劇《七尺男兒》開機儀式
地方產品常年展示廳

延邊國際會展中心一層平面圖
延邊國際會展中心二層平面圖
延邊國際會展中心三層平面圖
延邊國際會展中心平面圖