簡介
用於儲存液體或氣體的鋼製密封容器即為鋼製儲罐,鋼製儲罐工程是石油、化工、糧油、食品、消防、交通、冶金、國防等行業必不可少的、重要的基礎設施,我們的經濟生活中總是離不開大大小小的鋼製儲罐,鋼製儲罐在國民經濟發展中所起的重要作用是無可替代的。隨著眼前儲罐行業的不斷發展,越來越多的行業和企業運用到了儲罐,越來越多的企業進入到了儲罐行業,鋼製儲罐是儲存各種液體(或氣體)原料及成品的專用設備,對許多企業來講沒有儲罐就無法正常生產,特別是國家戰略物資儲備均離不開各種容量和類型的儲罐。我國的儲油設施多以地上儲罐為主,且以金屬結構居多。
用途
儲罐是長輸油氣管道輸送介質的儲存容器。輸油管道首站的儲油罐用於收集、儲存石油和保證管線輸油量的穩定,末站的儲油罐用於接收和儲備來油,並提供給用油單位。輸氣管道末端門站的儲氣罐主要用於城市燃氣的調峰,正逐漸被地下儲氣庫和管道儲氣所代替 。
工藝
生產
1、適於模塑大型及特大型製件
絕大多數塑膠成型加工工藝,在成型程中,塑膠及模具均處於相當高的壓力(壓強)之下,比如套用極為廣泛的注塑、壓縮模塑,擠出.吐塑等,因此套用這些成型工藝生產大型塑膠製件時,不僅必須使用能夠承受很大壓力的模具,使模具變得笨重而複雜,而且塑膠成型設備也必須設計、製造得十分牢固,機模的加工製造難度相應增大,成本增加。與此相反,防腐儲罐由於滾塑成型工藝只要求機架的強度足以支承物料、模具及機架自身的重量,以及防止物料泄漏的閉模力,因此即使滾塑大型及特大型塑膠製件,防腐儲罐等也無需使用十分笨重的設備與模具,機模的加工製造十分方便,製造周期短、成本低。 1、從理論上講,用滾塑成型工藝成型的製件,在尺寸上幾乎沒有上限。但是容易受到生產條件和公路運輸的限制。而生產這樣大的塑膠容器,如採用吐塑成型,不用十分昂貴而龐大的吹塑設備是不可能的。
2、防腐儲罐等適用於多品種
小批量塑膠製品的生產。 由於滾塑成型用模具不受外力作用,故模具簡單、價格低廉、製造方便。另外,滾塑設備也具有較大的機動性,一台滾塑機,既可以安裝一隻大型模具,亦可安排多隻小型棋具;它不僅可以模塑大小不同的製件,而且也可以同時成型大小及形狀均極不相同的製品,只要滾塑製品採用的原料相同,製品厚度相當,均可同時滾塑成型,因此防腐儲罐滾塑成型工藝較之其他成型方法有更大的機動性。 3、滾塑成型極易變換製品的顏色。 滾塑成型每次將物料直接加到模具中,這使物料均全部進入製品製品從模具中取出以後再加入下次成型所需要的物料,因此當我們需要變換製品的顏色時,既不致浪費點滴原料也不需要耗費時間去清理機器與模具防腐儲罐。當我們在使用多隻模具滾塑成型同一種塑膠製品時還可以在不同的模具中加入不同顏色的物料,同時滾塑出不同顏色的塑膠製品。
加工
(1)聚乙烯儲罐的加工工藝:
聚乙烯(PE) 臥式儲罐以純聚乙烯(線性低密度聚乙烯LLDPE、高密度聚乙烯HDPE)為原料,採用滾塑工藝整體一次成型。
(2)鋼襯塑儲罐的加工工藝:
鋼襯塑立式儲罐亦稱龜甲襯裡儲罐(龜甲襯裡—鋼、網、塑三合一)是鋼塑複合系列產品的精華。它採用特殊滾塑成型工藝。它是將鋼網(龜甲)焊接於鋼體表面,以純聚乙烯(線性低密度聚乙烯LLDPE、高密度聚乙烯HDPE)為原料,採用滾塑工藝將鋼板、鋼網(龜甲)與聚乙烯有機結合成一體。聚乙烯牢固沾鋼體表面。產品具有無焊接縫、不滲漏、無毒性、抗老化、抗衝擊、耐腐蝕、壽命長、符合衛生標準等優點。它彌補了全塑滾塑儲罐剛性強度差,不耐壓,耐溫差的缺點。
特點
分類
由於儲存介質的不同,儲罐的形式也是多種多樣的。
按位置分類:可分為地上儲罐、地下儲罐、半地下儲罐、海上儲罐、海底儲罐等。
按油品分類:可分為原油儲罐、燃油儲罐、潤滑油罐、食用油罐、消防水罐等。
按用途分類:可分為生產油罐、存儲油罐等。
按形式分類:可分為立式儲罐、臥式儲罐等。
按結構分類:可分為固定頂儲罐、浮頂儲罐、球形儲罐等。
按大小分類: 50m3以上為大型儲罐,多為立式儲罐; 50m 3 以下的為小型儲罐,多為臥式儲罐。
按儲罐的材料:儲罐工程所需材料分為罐體材料和附屬設施材料。罐體材料可按抗拉屈服強度或抗拉標準強度分為低強鋼和高強鋼,高強鋼多用於5000m3以上儲罐;附屬設施(包括抗風圈樑、鎖口、盤梯、護欄等)均採用強度較低的普通碳素結構鋼,其餘配件、附屬檔案則根據不同的用途採用其他材質,製造罐體常用的國產鋼材有20、20R、16Mn、16MnR、以及Q235系列等。
結構
我國使用範圍最廣泛、製作安裝技術最成熟的是拱頂儲罐、浮頂儲罐和臥式儲罐。
拱頂式
拱頂儲罐是指罐頂為球冠狀、罐體為圓柱形的一種鋼製容器。拱頂儲罐製造簡單、造價低廉,所以在國內外許多行業套用最為廣泛,最常用的容積為 1000 -10000m 3 ,國內拱頂儲罐的最大容積已經達到 30000m 3 。
罐底:罐底由鋼板拼裝而成,罐底中部的鋼板為中幅板,周邊的鋼板為邊緣板。邊緣板可採用條形板,也可採用弓形板。一般情況下,儲罐內徑< 16.5m 時,宜採用條形邊緣板,儲罐內徑≥ 16.5m 時,宜採用弓形邊緣板。
罐壁:罐壁由多圈鋼板組對焊接而成,分為套筒式和直線式。
套筒式罐壁板環向焊縫採用搭接,縱向焊縫為對接。拱頂儲罐多採用該形式,其優點是便於各圈壁板組對,採用倒裝法施工比較安全。
直線式罐壁板環向焊縫為對接。優點是罐壁整體自上而下直徑相同,特別適用於內浮頂儲罐,但組對安裝要求較高、難度亦較大。
罐頂:罐頂有多塊扇形板組對焊接而成球冠狀,罐頂內側採用扁鋼製成加強筋,各個扇形板之間採用搭接焊縫,整個罐頂與罐壁板上部的角鋼圈(或稱鎖口)焊接成一體。
浮頂式
浮頂儲罐是由漂浮在介質表面上的浮頂和立式圓柱形罐壁所構成。浮頂隨罐內介質儲量的增加或減少而升降,浮頂外緣與罐壁之間有環形密封裝置,罐內介質始終被內浮頂直接覆蓋,減少介質揮發。
罐底:浮頂罐的容積一般都比較大,其底板均採用弓形邊緣板。
罐壁:採用直線式罐壁,對接焊縫宜打磨光滑,保證內表面平整。浮頂儲罐上部為敞口,為增加壁板剛度,應根據所在地區的風載大小,罐壁頂部需設定抗風圈樑和加強圈。
浮頂:浮頂分為單盤式浮頂、雙盤式浮頂和浮子式浮頂等形式。
單盤式浮頂:由若干個獨立艙室組成環形浮船,其環形內側為單盤頂板。單盤頂板底部設有多道環形鋼圈加固。其優點是造價低、好維修。
雙盤式浮頂:由上盤板、下盤板和船艙邊緣板所組成,由徑向隔板和環向隔板隔成若干獨立的環形艙。其優點是浮力大、排水效果好。
內浮頂式
內浮頂儲罐是在拱頂儲罐內部增設浮頂而成,罐內增設浮頂可減少介質的揮發損耗,外部的拱頂又可以防止雨水、積雪及灰塵等進入罐內,保證罐內介質清潔。這種儲罐主要用於儲存輕質油,例如汽油、航空煤油等。內浮頂儲罐採用直線式罐壁,壁板對接焊制,拱頂按拱頂儲罐的要求製作。國內的內浮頂有兩種結構:一種是與浮頂儲罐相同的鋼製浮頂;另一種是拼裝成型的鋁合金浮頂。
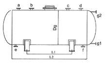
臥式
臥式儲罐的容積一般都小於 100m3 ,通常用於生產環節或加油站。臥式儲罐環向焊縫採用搭接,縱向焊縫採用對接。圈板互動排列,取單數,使端蓋直徑相同。臥式儲罐的端蓋分為平端蓋和碟形端蓋,平端蓋臥式儲罐可承受 40kPa 內壓,碟形端蓋臥式儲罐可承受 0.2Mpa 內壓。地下臥式儲罐必須設定加強環,加強還用角鋼煨制而成。
設計
1 大型原油儲罐工程危險性分析
1.1 原油危險性分析
原油為甲 B 類易燃液體,具有易燃性 ; 爆炸極限範圍較窄,但數值較低,具有一定的爆炸危險性,同時原油的易沸溢性,應在救火工作時引起特別重視。
1.2 火災爆炸事故原因分析
原油的特性決定了火災爆炸危險性是大型原油儲罐最主要也是最重要的危險因素。發生著火事故的三個必要條件為:著火源、可燃物和空氣。
著火源的問題主要是通過加強管理來解決,可燃物泄漏問題則必須在儲罐設計過程中加以預防和控制。
泄漏的原油暴露在空氣中,即構成可燃物。原油泄漏,在儲運中發生較為頻繁,主要有冒罐跑油,脫水跑油,設備、管線、閥件損壞跑油,以及密封不良造成油氣揮發,另外還存在著罐底開焊破裂、浮盤沉底等特大型泄漏事故的可能性。
腐蝕是發生泄漏的重要因素之一。國內外曾發生多起因油罐底部腐蝕造成的漏油事故。對原油儲罐內腐蝕情況初步調查的結果表明[ 1 ],罐底腐蝕情況嚴重,大多為潰瘍狀的坑點腐蝕 , 主要發生在焊接熱影響區、凹陷及變形處,罐頂腐蝕次之,為伴有孔蝕的不均勻全面腐蝕,罐壁腐蝕較輕,為均勻點蝕,主要發生在油水界面,油與空氣界面處。相對而言,儲罐底部的外腐蝕更為嚴重,主要發生在邊緣板與環梁基礎接觸的一面。
浮盤沉底事故是浮頂油罐生產作業時非常忌諱的嚴重惡性設備事故之一。該類事故的發生,一方面反映了設計、施工、管理等方面的嚴重缺陷,另一方面又將造成大量原油泄漏,嚴重影響生產、污染環境並構成火災隱患。
2 大型原油儲罐設計中的主要安全問題及其對策
2.1 儲罐地基和基礎
儲罐工程地基勘察和罐基礎設計是確保大型儲罐安全運營最根本的保證。根據石化行業標準[ 2 ]規定,必須在工程選址過程中進行工程地質勘察,針對一般地基、軟土地基、山區地基和特殊土地基,分別探明情況,提出相應的地基處理方法,同時還應作場地和地基的地震效應評價,避免建在軟硬不一的地基上或活動性地質斷裂帶的影響範圍內。
常見的罐基礎形式有環牆(梁)式、外環牆(梁)式和護坡式。應根據地質條件進行選型。罐基礎必須具有足夠的整體穩定性、均勻性和足夠的平面抗彎剛度,罐壁正下方基礎構造的剛度應予加強,支持底板的基床應富於柔性以吸收焊接變形,宜設防水隔油層和漏油信號管,地下水位與基礎頂面之間的距離不得小於毛細水所能達到的高度(一般為2m)[ 3 ]。
加熱技術
傳統的儲罐加熱方式是這樣的:採用罐內安裝列管式或盤管式加熱器,使罐內粘稠液體通過與熱媒體(一般以飽和蒸汽為熱媒體)的交換,實現對粘稠液體的升溫,降低液體粘度,改善其流動性,以便於泵的輸送。
傳統儲罐加熱方式使用的很多年,不免越來越顯現它的弊端:
1、換熱效率低,蒸汽耗量大。傳統罐內加熱器對粘稠液體的加熱是一種靜置式的自然對流換熱,其放熱係數極低。由於換熱效率低,泠凝水溫度高,常常隨著大量蒸汽排除。同時由於在加熱管表面的粘稠液體溫度過高,在換熱管高溫面長時間滯留,極容易產生分解物,結聚於換熱管表面,容易結焦,嚴重阻礙熱量的傳遞,也影響換熱效率。
2、加熱過程不經濟。當只需要倒出少量粘稠液體時,也要對整個罐內的粘稠液體全部進行加熱,加熱的數量是該次使用量的幾倍,使大量的蒸汽做了無用功。
3、罐內各部分粘稠液體溫度不均衡。靠近加熱器的粘稠液體溫度較高,遠離加熱器的粘稠液體溫度較低,抽取粘稠液體的溫度更低,嚴重影響了出油的流動性。
4、影響粘稠液體質量。反覆對罐內粘稠液體進行加熱,加熱過程中產生大量細小的分解物,對粘稠液體質量產生一定的影響,增加了後期處理的成本。
鑒於傳統儲罐加熱方式的弊端,一種新型局部快速加熱器技術產生。
新型局部快速加熱器
新型局部快速加熱器
局部快速加熱技術1、將“渦流熱膜換熱器”沿儲罐徑向伸入儲罐底部,熱媒介質(蒸汽)走管程,粘稠液體從殼程內德管間流動,殼體吸油口直接連通罐內介質。
2、在換熱器的蒸汽入口設溫控閥,通過感溫探頭對粘稠液體出口的溫度的檢測來控制換熱器的蒸汽入口蒸汽進量,從而確保粘稠液體溫度的恆定。
換熱器採用高效換熱元件——渦流熱膜管,保持粘稠液體在管間合理流動,熱效率是普通換熱器的3-5倍,其強化傳熱機理是:粘稠液體流體在內外表面流動時設計成紊流流動,產生強烈的震盪和沖刷作用,流動的方向不斷改變,是緊貼管壁表面的高溫粘稠液體流體不斷更換,隔熱層變薄以至破壞,金屬表面熱量傳遞加快,流體微觀渦流加強,使粘稠液體流體內部熱擴散強化。不會使貼近管壁表面的流體產生局部高溫過熱,因此可使粘稠液體既得到適當,充分的加熱又無結焦分解的可能。既傳熱量好,又不會阻力很大。
加熱特點:
1、加熱速度快,傳熱效率高,不易結垢。
2、可對粘稠液體定量加熱,需要多少加熱多少。
3、粘稠液體不會出現局部高溫、炭化,保證了粘稠液體質量及加熱器傳熱效率。
4、儲罐內出油口溫度最高,保證了倒出粘稠液體流動性。
5、避免了反覆對罐內粘稠液體進行加熱,保證了粘稠液體色度、降低了粘稠液體處理的成本。
6、使用壽命長,耐腐蝕、耐高溫、耐高壓、防結垢功能,極大的提高了換熱器整體性能。
7、工藝結構設計先進,保證了粘稠液體順利流出及較好的“抽罐底”作用。
8、可實現自動化控制,可根據粘稠液體的進出溫度及倒油流量控制蒸汽進給量。
9、結構緊湊,安裝與維修方便,不會因為加熱器的安裝而影響罐體的安全。與U型管換熱器比較,在同等換熱面積情形下:渦流熱膜換熱器的外型尺寸,僅為U型管換熱器外形尺寸的二分之一左右。
10、相對於電加熱方式,更安全,加熱更溫和,對粘稠液體品質影響更小。
在潤滑油儲罐加熱中,局部快速加熱器與傳統列管式加熱的對比:
| 加熱方式 | 熱媒 | 出油量 | 升溫溫度 | 加熱時間 | 冷凝水溫度 | 蒸汽耗量 |
| 列管式換熱器 | 0.8Mpa飽和蒸汽 | 60T/t | 30℃-60℃ | 14小時30分 | 100℃ | 14.6噸 |
| 油罐局部快速加熱器 | 0.8Mpa飽和蒸汽 | 60T/t | 30℃-60℃ | 1小時30分 | 55℃ | 1.96噸 |
註:數據來自中國石化潤滑油實測對比表
安全操作
安全事項
1.本設備的操作必須經嚴格、系統培訓,經考試(書面及實際操作)合格後並取得設備操作證的操作工進行操作設備,未經培訓的任何人員嚴禁操作設備。
2.不熟悉設備性能嚴禁操作設備、安全保護用品未佩帶齊全嚴禁操作設備、未全部熟悉並掌握設備操作規程嚴禁操作設備。
3.現場專業技術人員和警戒人員有權阻止、糾正他人違章作業、冒險蠻幹等不安全行為;有權拒絕不符合安全要求或違反規章制度的指揮、調度及按排。
4.所有進入卸料區域的人員禁止帶通訊工具進入!必須在靜電釋放點進行身體靜電釋放的操作!
5.開工前必須檢查各控制櫃前絕緣膠墊是否完整、乾燥。設備開動前必須先用測電筆檢查設備是否有漏電現象。
6.設備在出現緊急情況時應按下紅色急停開關,並關閉設備總電源,立即通知設備維修工進行處理,並通知相關管理人員和設備處人員,嚴禁擅自處理。
7.設備安全防護裝置在任何情況下嚴禁以任何理由拆卸、毀損、短接或挪作它用,使安全保護設施失效。
8.食用或飲用降低注意力或精神恍惚的藥品或飲料嚴禁操作設備。
9.實習生嚴禁在無班長或師傅監護下獨自操作設備!
10.嚴禁在工藝不成熟,不合理,操作時身體全部或部分需在設備自動運行時進入設備內部干預。
11.廠房漏水或者設備周圍積水嚴禁開機工作。
12.各類潤滑油及液體介質如遇撒漏,必須及時清擦,嚴禁在濕滑的環境中操作。
13.嚴禁將物品放入操作櫃及操作台里,以免造成短路傷人及損傷設備。
14.操作工在維修或清擦設備時,必須關閉設備電源,並懸掛“嚴禁合閘,有人工作”的安全警示牌,必須有專人進行監護的情況下進行,嚴禁獨自操作!嚴禁使用化纖物料擦拭和清掃設備!
15.JIT采配處採購管理員提前1天以書面形式下發來料和卸料通知,人力資源處安排卸料區警戒,生產公司做好卸料準備,罐車必須加裝阻火器,嚴禁在烈日下爆曬!嚴禁在雷雨天卸料!嚴禁運料罐車在公司大門處停留超過60分鐘!
16.進入環戊烷區域應穿防靜電服並佩帶防護用品,嚴禁穿化纖衣物進入,嚴禁在環戊烷區域脫換衣服,嚴禁穿帶釘子的鞋。
17.進入卸料區嚴禁攜帶BP機、手機、易燃易爆物品,嚴禁用鐵器在環戊烷區域敲打。
18.發現泄漏應立即清除周圍火源,儘快組織回收至容器中如遇火可噴水冷卻容器,可能的話將容器從火場移至空曠處,處在火場中的容器已變色或從安全泄壓裝置中產生聲音,必須立即撤離,滅火劑可採用沙土、乾粉或二氧化碳,用水滅火無效。
19.環戊烷若污染衣服,套用肥皂水和清水徹底清洗皮膚。
20.環戊烷若濺入眼中,應提起眼瞼,用流動清水或生理鹽水沖洗、就醫。
21.若吸入環戊烷,應立即脫離現場至空氣清新處,保持呼吸道通暢,如呼吸困難,應立即輸氧,如呼吸停止,應立即進行人工呼吸,就醫。
22.若吞食了環戊烷,應飲用足量溫水,催吐、就醫。
23.節假日及特定的時期,必須有專人負責值班,防止發生意外事故 。
卸料前
1.保全和卸料操作工提前15分鐘到達現場,保全做好警戒準備!戒嚴區域與卸料點60米!各通道口設專人把守,並禁止一切車輛、人員通行,禁止一切明火作業。操作工首先記錄儲罐液位指示儀的液位數據!做好卸料前的一切準備工作,如儲罐卸壓、氮氣準備、棉紗準備、銅質扳手準備等!
2.接到卸料操作工準備就緒通知後,警戒保全將信息傳遞到前門,由前門保全通知罐車進入園區直達卸料點。
3.充注工作由專業技術人員負責並統一指揮,由經專業培訓的維修人員及操作工佩合進行,所有進入現場的工作人員槽車司機及現場以外的戒嚴人員等應絕對服從專業技術人員的指揮。
4.保全指揮罐車進入卸料平台,停車、熄火!
5.配備有35KG乾粉滅火器6個及足夠的毛巾。做好泄漏應急措施:防護沙、棉紗等材料準備。
6.由專業人員檢查各滅火器鉛封良好,合格證在有效期內,檢查參加充注人員未帶火種及香菸等,所有參加充注人員必須穿防靜電服、防靜電鞋。
7.開始工作前由專業技術人員向所有參加充注的工作人員講述整個充注工作流程及注意事項,並作好工作分工,泄料操作工用銅扳手拆卸進料封口,並將罐車出料關管與儲罐進料口對接牢靠,保證無泄漏。
8.將罐區接地線與罐車接地裝置連線正確並牢固完好!將現場用氮氣軟管引到卸料區備用。
9. 遇雷電等惡劣天氣禁止進行卸料!
三、卸料中
1. 接到指令,罐車閥門打開開始卸料。準備攜帶型手測環戊烷報警器,對整個充注過程進行測試檢漏並設有專人監護,發現泄漏,隨時準備關閉閥門,進行檢修。
2.在卸料中,泄料操作工不得離開卸料閥門,隨時做好應急準備,如發生泄漏立即關閉罐車出料閥門!
3.保全立即處理泄漏環戊烷原料,少量泄漏:用氮氣吹掃貨用棉紗吸乾餅置於接液盤內放導通風處揮發。大量泄漏:用專用容器轉移至已準備好的空桶內,並迅速轉移至指定存放區!
4.在卸料時間50分鐘後,泄料操作工隨時注意罐車的壓力變化。
5.在確認罐車內卸料完成時,關閉罐車上閥門。
6.注意控制櫃超高料位90%是否報警,如報警立即停止卸料。
四、罐料後
1.當罐車內相對壓力降為零時,保持氣壓平衡,卸料完成。並同時記錄儲罐液位指示儀的數據!
2.拆卸罐車與罐區的聯結管路,並將罐區管路高舉,使軟管內殘餘環戊烷流入儲罐內,用氮氣沖刷軟管及周圍氣體,封閉儲罐上進料閥門及進料口。
3.將儲罐的卸料管及排氣管放回支架上並將管口閥門關閉。
4.用氮氣沖刷卸料區數分鐘後,將滅火器復位,解除作業區內的戒嚴通道。
五、其它注意事項
1.卸料操作時在卸料區內嚴禁吸菸、帶入火種、手機關機,使用工具應採用銅製等防爆工具。
2.遇雷雨天氣禁止進行環戊烷卸料或有暴露環戊烷的操作。
3.當運輸環戊烷罐車到達前門時,前門保全立即通知安全管理員。
十條規範
1.按時檢尺,定點檢查,認真記錄。
2.油品脫水,不應離人,避免跑油。
3.油品收付,核定流程,防止冒串。
4.切換油罐,先開後關,防止憋壓。
5.清罐以後,認真檢查,才能投用。
6.現場交接,嚴格認真,避免差錯。
7.呼吸閥門,定期檢查,防止抽癟。
8.重油加溫,不應超標,防止突沸。
9.管線用完,及時處理,防止凍凝。
10.新罐投用,驗收簽證,方可進油(料)。
檢測維護
對於存放危險介質時候,我們對於玻璃鋼儲罐的檢測維護都比較嚴格,其執行檢測維護標準:
1.對儲存可燃氣體,易燃液體的儲罐,應配備必須的消防設備,嚴禁在罐內吸菸,明火照明、取暖,以及將其發火源帶入罐區內。
2、對存儲易燃、易爆、有毒、腐蝕等介質的儲罐,應嚴格執行危險品管理的有關規定。
3、儲罐檢驗和修理前必須切斷與儲罐有關的電氣設備的電源,必須辦理設備交接手續。
4、儲罐內部介質排盡後,應關閉進出閥或加設盲板隔斷與其連線的管道和設備,並設有明顯的隔斷標誌。
5、對於盛裝易燃、腐蝕、有毒、或窒息性介質的儲罐,必須經過置換、中和、消毒、清洗等處理,並在處理後進行分析檢驗,分析結果應達到有關規範、標準的規定。具有易燃介質的嚴禁用空氣置換。
6、罐內作業必須辦理罐內作業許可證。因故較長時間中斷繼續作業,應重新補辦罐內作業證。
7、在進入罐內作業三十分鐘前要取樣分析,其氧含量在18-23%(體積比)之間。
8、進入罐內清理有毒,有腐蝕殘留物時,要穿戴好個人防護用品。
9、需要搭制的腳手架及升降裝置,必須牢固可靠,在作業中嚴禁內外拋擲材料工具,以保全全作業。
10、罐內照明應使用電壓不超過24付防爆燈具。
11、罐內需動火時,必須辦理動火證。
12、罐內作業必須設監護人,並有可靠的聯絡措施。
13、竣工時檢修人員和監護人員共同檢查罐內外,經確認無疑,監護人在罐內作業證上籤字後,方可封閉各人孔。
14、試壓後放水時,必須連通大氣,以防抽真空。
常規注意
儲油罐和儲罐區儲油多,危險性大,容易發生火災和爆炸事故,必須按照有關規定,建立防火、防爆制度,經常進行防火巡查,嚴格進行消防安全管理,確保消防安全。
(1)儲油罐、儲罐區防火防爆應按GB50183,GB50074規定。低倍數空氣泡沫滅火系統應按GB50151規定。
(2)儲罐區應保持整潔,防火堤內應無乾草,無油污,無可燃物。
(3)儲罐區排水系統應設水封井;排水管在防火堤外應設定閥門;油罐放水時,應有專人監護,及時清除水封井內的殘油。
(4)儲罐區內不應裝設非防爆電氣設備和高壓架空線路。
(5)儲罐區應當按規定設定防火堤,防火堤應保持完好。
(6)儲油罐頂部應無油污,無積水。儲油罐進出油管線、閥門應採取保溫措施。
(7)儲油罐頂的透光孔、檢尺孔蓋、墊片應保持完好,孔蓋應蓋嚴密。量油口應裝有不打火花的金屬墊片。
(8)儲油罐上的呼吸閥、液壓安全閥底座應裝設阻火器。阻火器每季至少檢查一次。
(9)儲油罐進出油管線應裝設韌性軟管補償器。
(10)鋼製儲油罐罐體應設定防雷防靜電接地裝置,其接地電阻不應大於10Ω。接地點沿罐底邊每30m至少設定一處,單罐接地不應少於兩處。
(11)每年春季應全面檢查防雷防靜電接地裝置,測試接地電阻值應符合要求。
(12)浮頂罐的浮船與罐壁之間套用兩根截面積不小於25mm2的軟銅線連線。
(13)儲油罐裝油量應在安全罐位內運行。
(14)當凝油油位高於加熱盤管時,應先用蒸汽立管加熱,待凝油溶化後,再用蒸汽盤管加熱。
(15)不應穿化纖服裝和帶鐵釘的鞋上罐。在罐頂不應開、關非防爆電筒。
(16)儲罐區內油管線動火、清罐作業應執行行業規定。
(17)儲油罐著火,應立即報告並停止著火油罐的一切作業。組織滅火併適時啟動應急預案。
維護檢修
為確保企業安全生產、設備安全運行,提高設備的使用壽命和勞動生產效率,對運行的機械設備必須進行定期檢查維修,以防機械故障而影響生產,或機械事故造成人員傷亡,實際生產、安全操作規程及安全檢修管理制度,經研究制定本儲罐年度儲罐維護檢修。
儲罐的檢修周期一般為:中修60-120天,大修12個月。 中修:消除跑、冒、滴、漏
清洗或更換液面計修理或更換進、出口及排污閥門疏通清理冷卻水盤管。檢查修理安全閥放空阻火器。修補防腐層和絕熱層 。大修:包括中修項目修理儲罐內件,對發現有裂紋,嚴重腐蝕等部位,相應修補或更換筒節。修補可採用高分子複合材料修復。根據內外部檢驗要求,以及經過修補或更換筒節後,需進行試漏或液壓試驗。全面除繡保溫。對儲罐內外部檢驗中發現的其他問題進行處理。
檢修方法及質量標準儲罐的修理,如開孔、補焊、更換筒節等,應根據《容規》及其他有關標準,規範制定具體施工方案並經單位技術負責批准。修理所用材料(母材、焊條、焊絲、焊劑等)和閥門,應具有質量證明書,利用舊的材料閥門、緊固件時,必須檢驗合格後方可使用。裝配儲罐的緊固件應塗潤滑材料,緊螺栓時應按對角依次擰緊。非金屬墊片一般不得重複使用,選用墊片時,應考慮介質的腐蝕性。修理後經檢驗合格後方可進行防腐保溫工作。 在用儲罐存在不合格缺陷的修複方法及質量標準:
1、打磨法消除缺陷
2、補焊或貼補
3、更換筒節
4、挖補
5、快速堵漏
該類問題現場傳統補焊並不能解決而且危險性較大,採用置換介質再補焊因工期長,工人勞動強度大,會造成停機停產的巨大損失。美國美嘉華技術針對不同設備,不同的運行狀態,不同腐蝕滲漏形式,採用相應的技術產品,可快速、簡單、有效保護設備,特別是由於高分子複合材料所具有的抗化學腐蝕性能,粘結性能等綜合性能,避免了傳統補焊修復所帶來的不利影響,使修復後的設備壽命甚至超過新設備,從根本上解決腐蝕滲漏原因,幫助企業提高設備管理水平,降低維修維護成本,提高企業競爭力 。
型號
玻璃鋼型
玻璃鋼儲罐有如下特性:
(1)輕質高強,相對密度在1.5~2.0之間,只有碳鋼的1/4~1/5,可是拉伸強度卻接近,甚至超過碳素鋼,而比強度可以與高級合金鋼相比。因此,在航空、火箭、宇宙飛行器、高壓容器以及在其他需要減輕自重的製品套用中,都具有卓越成效。某些環氧FRP的拉伸、彎曲和壓縮強度均能達到400Mpa以上。部分材料的密度、強度和比強度見表1-1。
(2)耐腐蝕性能好
FRP是良好的耐腐材料,對大氣、水和一般濃度的酸、鹼、鹽以及多種油類和溶劑都有較好的抵抗能力。已套用到化工防腐的各個方面,正在取代碳鋼、不鏽鋼、木材、有色金屬等。
(3)電性能好
是優良的絕緣材料,用來製造絕緣體。高頻下仍能保護良好介電性。微波透過性良好,已廣泛用於雷達天線罩。
(4)熱性能良好
FRP熱導率低,室溫下為1.25~1.67kJ/(m·h·K),只有金屬的1/100~1/1000,是優良的絕熱材料。在瞬時超高溫情況下,是理想的熱防護和耐燒蝕材料,能保護宇宙飛行器在2000℃以上承受高速氣流的沖刷。
(5)可設計性好
①可以根據需要,靈活地設計出各種結構產品,來滿足使用要求,可以使產品有很好的整體性。
②可以充分選擇材料來滿足產品的性能,如:可以設計出耐腐的,耐瞬時高溫的、產品某方向上有特別高強度的、介電性好的,等等。
(6)工藝性優良
①可以根據產品的形狀、技術要求、用途及數量來靈活地選擇成型工藝。
②工藝簡單,可以一次成型,經濟效果突出,尤其對形狀複雜、不易成型的數量少的產品,更突出它的工藝優越性。
聚乙烯型
聚乙烯的外文簡稱為PE。最高套用溫度為低密度聚乙烯60℃,高密度聚乙烯70℃。最低套用溫度為-70℃。具有無焊接縫、不滲漏、無毒性、抗老化、抗衝擊、耐腐蝕、壽命長、符合衛生標準等優點。它彌補了全塑滾塑儲罐剛性強度差,不耐壓,耐溫差的缺點。產品內襯面平整、光滑、堅固,與傳統的鋼襯塑膠板儲槽、鋼襯橡膠儲罐、鋼襯玻璃鋼貯槽相比,具有更良好的耐腐蝕、不滲漏、不剝離、耐磨損、可耐一定壓力、可耐較高溫度、壽命更長等優點,其價格低於同規格的傳統儲罐,是儲存腐蝕液體的理想容器。因而是一種極為優異的耐腐蝕儲罐。鋼襯塑立式儲罐 還具有安裝方便、占地面積小、能製成用戶需要的形狀等特點。特大型鋼襯塑儲罐整體性好更為突出,是其它儲罐製造工藝所達不到的。
可存放物質
(1)無機酸: (硫酸稀、硝酸稀、鹽酸、磷酸、氫氟酸、氫溴酸、次氯酸、矽酸、亞硝酸、亞硫酸、碳酸、氟矽酸、氟硼酸。。。等等)
(2)有機酸: (甲酸、醋酸、丙酸、丁烯酸、月桂酸、脂肪酸、乳酸、乙醇酸、過醋酸、草酸、丙二酸、丁二酸、馬來酸、蘋果酸、酒石酸、苯二酸、苯醋酸。。。等等)
(3)鹼及氫氧化物:(氫氧化鈉、氫氧化鉀、氫氧化氨、氫氧化鈣、氫氧化鎂、氫氧化鋇、氫氧化鋁、氫氧化鐵、硫酸銨、硝酸銨、碳酸銨、硝酸銨、磷酸銨、過硫酸銨、氯化銨、矽酸鈉、次氯酸鉀、碳酸鋁、硝酸鋁、硫酸鋁、醋酸鉀、甲酸鉀、鉀、硫酸銅、硝酸銅、明礬、碳酸鈣。。。等等)
(4)元素、氣體、及其它無機化合物(硫、硫膠體、磷、汞、過氧化氫、氨、煤元、一氧化碳、二氧化碳、二氧化硫、氯化氫、溴化氫、硫化氫、磷化氫、氟化硼、氧化鈣、氧化鋅)
(5)醇、醛、酮、醚、酯、烴及石油產品(甲醇、乙醇、正丙醇、異丙醇、稀丙醇、丁醇、仲丁醇、叔丁醇、正乙醇、叔乙醇、甲醛、乙醛、丁醛、瀝青。。。等等)
(6)其他元素化合物、工業液體及製品、食品及植物油、大氣、水、土壤(肥皂、洗滌劑、硫石灰、漂白液、墨水、膠乳、澱粉、明膠、動物油、松香、尼古丁、醋、酵母、酒、海水、鹽水、高純水、酸性礦水、污水、土壤。。。等等)
(7)含鹵素有機化合物、胺、酚、其他有機化合物(氯丙醇、氯胺、六氯苯、氟利昂、二甲替甲醯胺、間苯二酚、對苯二酚、苯酚鈉、嗎林、菸鹼。。。等等)
規格
其中聚乙烯全塑儲罐(貯罐)有立式(平底,錐底)、臥式;運輸罐有汽車運輸罐車、車廂運輸罐;攪拌罐有平蓋平底、平蓋錐底、反應罐式,鋼襯塑儲罐(貯罐)(鋼塑複合儲罐(貯罐))有立式(平底,錐底)、臥式等糸列產品,各類儲罐還可根據所需自行定製。一般全塑儲罐適用大小為1立方到50立方左右。鋼襯塑立式儲罐鋼塑複合立式儲罐 龜甲襯裡儲罐 規格為1立方到150立方左右。
不鏽鋼型
不鏽鋼儲罐英文翻譯:Stainless steel tank
分類
1.按形式分類:可分為立式不鏽鋼罐,臥式不鏽鋼罐.
2.按用途分類:可分為釀酒類不鏽鋼罐,食品類不鏽鋼罐,製藥類不鏽鋼罐,乳業類不鏽鋼罐,化工類不鏽鋼罐,石油類不鏽鋼罐,建材類不鏽鋼罐,電力類不鏽鋼罐,冶金類不鏽鋼罐.
3.按衛生標準分類:衛生級不鏽鋼罐,普通不鏽鋼罐.
4.按壓力要求分類:不鏽鋼壓力容器,非不鏽鋼壓力容器.
常見不鏽鋼儲罐
不鏽鋼儲罐,不鏽鋼壓力罐,不鏽鋼酒罐,不鏽鋼奶罐,不鏽鋼反應罐,不鏽鋼真空罐,不鏽鋼發酵罐儲罐結構及性能
●容器保溫材料採用耐高溫、抗老化聚氨酯發泡或採用珍珠棉。
●接口採用國際通用標準快裝卡盤式、內膽選用進口316L或304,內表面 鏡面拋光Ra≤0.28μm,外表面亞光、鏡面、噴砂或冷軋原色亞光。
●管口:有液位計(數顯或玻璃管式)、空氣呼吸口、溫度計(數顯或錶盤式)、CIP清洗口、視鏡,防爆視燈、SIP滅菌口、進出液口及人孔等。
●容積含500L-30000L等,也可根據客戶實際需要進行設計、製造。
不鏽鋼儲罐總覽:
1. 食品製藥類不鏽鋼儲罐:
不鏽鋼配料儲罐,不鏽鋼濃配儲罐,不鏽鋼稀配儲罐,不鏽鋼提取儲罐,不鏽鋼反應儲罐,不鏽鋼儲液罐,不鏽鋼攪拌罐,不鏽鋼種子儲罐,不鏽鋼硝酸儲罐,不鏽鋼冰醋酸儲罐,不鏽鋼二硫化碳桶罐,不鏽鋼水塔儲罐。
2. 釀酒乳業類不鏽鋼罐:
不鏽鋼葡萄酒儲罐,不鏽鋼白酒儲罐,不鏽鋼酒儲罐,不鏽鋼奶(乳)罐,不鏽鋼飲料儲罐
3. 化工類不鏽鋼罐:
不鏽鋼油儲罐,不鏽鋼運輸儲罐,不鏽鋼冷卻儲罐,不鏽鋼保溫儲罐,不鏽鋼熱交換儲罐,不鏽鋼緩衝罐,不鏽鋼室外儲罐和化工行業的各級別不鏽鋼壓力容器。
不鏽鋼儲罐的特點:
1.不鏽鋼罐有較強的耐腐性,它不受外界空氣及水中余氯腐蝕。每個球罐出廠前均經受超強的壓力測試和檢驗,在常壓下使用壽命可達100 年以上。
2.不鏽鋼罐密封性好;密封式設計徹底杜絕了空氣飄塵中有害物質和蚊蟲入侵罐內,確保水質不受外界污染和滋生紅蟲。
3.科學的水流設計使罐底的沉澱 物不因水流而翻起,保證生活用水和消防用水自然分層,經 罐體出來的生活用水的混濁度降低 48.5% ; 但水壓卻明顯的增加。有利於提高生活用水和 消防用水設施的性能。
4.不鏽鋼罐無需經常清洗;水中的沉澱物質只而定期打開罐底的排污閥便可排出。每 3 年可用簡易設 備清除水垢一次,大大降低清洗費用和完全避免人體細菌病毒污染 。
PP型立式儲罐
設備使用特點:
一、工作壓力:常壓;
二、工作溫度:PP-10℃~120℃,PVC-40℃~60℃。
儲罐2.PP臥式儲罐:設備使用特點:
一、工作壓力:常壓;
二、工作溫度:PP-10℃~120℃,PVC-40℃~60℃。
儲罐
