產品圖片
QQ641氣動高溫球閥概述
整體高溫球閥是採用新型密封材料為閥座,經同類產品聚四氟乙烯做密封的球閥,使用壽命提高了3-5倍。具有性能穩定、密封可靠、磨擦力小、開關輕便、耐高溫、耐磨、耐油、耐腐蝕、使用壽命長等優點,高溫球閥與截止閥、柱塞閥、排污閥,結構長度相符,擴大了球閥使用範圍,廣泛用於石油、化工、橡膠、造紙、製藥等行業,可替代截止閥、柱塞閥、快速排污閥。適用介質:水、蒸汽、導熱油等酸類,使用溫度: ≤350℃
結構特點及作用原理:
該型閥門中的球體、密封圈採用了特殊的加工工藝和最新密封材料,使球體表面粗糙度和圓度達到標準要求,從而提高了密封性能和使用壽命、耐高溫的能力。 順時板動手柄帶動閥桿驅動球體旋轉,使介質順利通過。
適用範圍
城建、化工、冶金、石油、製藥、食品、飲料、環保
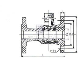
結構
氣動高溫球閥 結構圖性能參數
型號 公稱壓力(MPa) 強度試驗壓力
(MPa) 密封試驗壓
(MPa) 適用溫度
(℃) 適用介質
QQ641M/F -16C 1.6 2.4 1.8 -28~+300 (M/F) 導熱油、水、蒸汽、氣體、油品、硝酸類腐蝕性介質、醋酸類腐蝕性介質
QQ641M/F -25C 2.5 4.0 2.8 -28~+350 (PPN)
主要零部件材料
序號 零部件名稱 材料1 閥體 球墨鑄鐵、碳素鋼、鑄不鏽鋼
2 密封圈 (M/F)高強度耐磨碳結石墨≤300℃ (PPN)對蒞聚苯、溫度≤350℃
3 球 不鏽鋼
4 填料 聚四氟乙烯
5 填料壓蓋 QT450-10球墨鑄鐵
6 閥桿 碳素鋼、鉻不鏽鋼
7 手柄 碳鋼
主要技術參數
型號 規格 尺寸L D D 1 D 2 z-φd H b
QQ641PPL -16 15 115 95 65 45 4-14 85 14
20 130 105 75 55 4-14 95 16
25 140 115 85 65 4-14 103 16
32 165 135 100 78 4-18 105 18
40 180 145 110 85 4-18 120 18
50 200 160 125 100 4-18 195 20
65 220 180 145 120 4-18 195 20
80 250 195 160 135 8-18 215 22
100 280 215 180 155 8-18 255 24
