氣動高溫球閥氣動高溫球閥概述
整體高溫球閥是採用新型密封材料為閥座,經同類產品聚四氟乙烯做密封的球閥,使用壽命提高了3-5倍。具有性能穩定、密封可靠、磨擦力小、開關輕便、耐高溫、耐磨、耐油、耐腐蝕、使用壽命長等優點,高溫球閥與截止閥、柱塞閥、排污閥,結構長度相符,擴大了球閥使用範圍,廣泛用於石油、化工、橡膠、造紙、製藥等行業,可替代截止閥、柱塞閥、快速排污閥。適用介質:水、蒸汽、導熱油等酸類,使用溫度:≤350℃結構特點及作用原理:
該型閥門中的球體、密封圈採用了特殊的加工工藝和最新密封材料,使球體表面粗糙度和圓度達到標準要求,從而提高了密封性能和使用壽命、耐高溫的能力。順時板動手柄帶動閥桿驅動球體旋轉,使介質順利通過。
氣動高溫球閥適用範圍
城建、化工、冶金、石油、製藥、食品、飲料、環保氣動高溫球閥結構
氣動高溫球閥性能參數
型號公稱壓力
(MPa)強度試驗壓力
(MPa)密封試驗壓
(MPa)適用溫度
(℃)適用介質
QQ641M/F-16C1.62.41.8-28~+300(M/F)導熱油、水、蒸汽、氣體、油品、硝酸類腐蝕性介質、醋酸類腐蝕性介質
QQ641M/F-25C2.54.02.8-28~+350(PPN)
氣動高溫球閥主要零部件材料
序號零部件名稱材料1閥體球墨鑄鐵、碳素鋼、鑄不鏽鋼
2密封圈(M/F)高強度耐磨碳結石墨≤300℃(PPN)對蒞聚苯、溫度≤350℃
3球不鏽鋼
4填料聚四氟乙烯
5填料壓蓋QT450-10球墨鑄鐵
6閥桿碳素鋼、鉻不鏽鋼
7手柄碳鋼
氣動高溫球閥主要技術參數
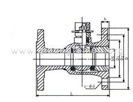
氣動高溫球閥 結構圖型號規格尺寸
LDD1D2z-φdHb
QQ641PPL-16151159565454-148514
2013010575554-149516
2514011585654-1410316
32165135100784-1810518
40180145110854-1812018
502001601251004-1819520
652201801451204-1819520
802501951601358-1821522
1002802151801558-1825524
