簡介

液動盲板閥可以單台遠距離控制,亦可多台聯網遠距離控制,非正常情況下還可以利用閥門本身裝置手動操作。
詳細信息
結構特點1、採用扇形結構,閥門啟閉作<90°的迴轉,啟閉迅速自操作靈活方便。
2、絲桿增力夾緊結構,自鎖性好,密封副不會動鬆開造成介質外漏。
3、增加了水冷機構的閥門,最高耐溫≤450℃,尤其適用乾法除塵及冷卻系統。
4、配有多種驅動方式可供選擇,氣動、液動、電動可實現電腦程式控制。
5、泄漏率:符合GB/T13927。
| 公稱壓力MPa | 0.25 | 0.15 | 0.10 | 0.05 |
| 密封試驗壓力MPa | 0.275 | 0.165 | 0.11 | 0.055 |
| 強度試驗壓力MPa | 0.40 | 0.225 | 0.15 | 0.075 |
| 驅動源 | 壓縮空氣0.4-0.6MPa 油壓壓力6.3MPa 3相380V50HZ | |||
| 適用溫度℃ | 丁腈橡膠 | 矽橡膠 | 氟橡膠 | |
| -20-100 | -20-200 | -20-300 | ||
| 適用介質 | 煤氣等有毒、有害、易燃氣體 | |||
| 啟閉時間S | ≤60 | |||
| 主要零部件材料 | 閥體、閘板為碳鋼;絲桿為合金鋼;螺母為錳銅合金、球墨鑄鐵;伸縮器為不鏽鋼 | |||

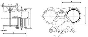
| DN | D | D1 | b | n-φd | L |
| 300 | 440 | 395 | 22 | 12-φ22 | 450 |
| 350 | 490 | 445 | 22 | 12-φ22 | 450 |
| 400 | 540 | 495 | 22 | 16-φ22 | 450 |
| 450 | 595 | 550 | 24 | 16-φ22 | 500 |
| 500 | 645 | 600 | 24 | 16-φ22 | 500 |
| 600 | 755 | 705 | 24 | 20-φ26 | 600 |
| 700 | 860 | 810 | 26 | 24-φ26 | 600 |
| 800 | 975 | 920 | 26 | 24-φ30 | 800 |
| 900 | 1075 | 1020 | 28 | 24-φ30 | 800 |
| 1000 | 1175 | 1120 | 30 | 28-φ30 | 800 |
1、用扳手依次逆時針旋動三個連線螺桿,使閥體與閘板分離並有均衡,適量的間隙(16mm左右)。確認後轉動閘板到工作位置,反向旋動連線螺桿,使閘板與閥體緊密接觸,達到絕對密封的目的。
2、橡膠密封圈不得與閥體粘連或發生硬摩擦,以防止損壞橡膠密封圈,破壞閥門的工作性能。
3、扇形盲板閥為敞開式閥門,左右閥體鬆開時,介質要外溢,為確保全全,在關閉時,請先關閉眼鏡閥前的煤氣蝶閥,請採用通風和其它能保證安全的措施,同時建議閥板下不能站人,以防萬一造成人員傷害。
