簡介
國家電網公司電力安全工作規程(變電部分) 5.3.6.1條規定:停電拉閘操作應按照斷路器(開關) 一負荷側隔離開關(刀閘)一電源側隔離開關(刀閘)的順序依次進行。送電合閘操作應按與上述相反的順序進行,禁止帶負荷拉合隔離開關。該條文釋義為:先拉負荷側隔離開關的目的是若斷路器實際未斷開,先拉負荷側隔離開關,造成帶負荷拉閘所引起的故障點在斷路器的負荷側,這樣可由斷路器保護動作切除故障, 把事故影響縮小在最小範圍。反之,先拉母線側隔離開關,電弧所引起的故障點是在母線側範圍,將導致母線停電,擴大事故範圍,另外,負荷側隔離開關損壞後的檢修,比母線側隔離開關損壞後的檢修影響停電範圍要小。即故障時,保護動作快、停電範圍小、事故性質輕,一般應視母線為電源側,只有當母線初充電時,才可做負荷側。但實際執行中對於雙側電源線路隔離開關,主變中、低壓側隔離開關,母聯隔離開關等在不同的主接線、運行方式及相關保護配置下,在隔離開關操作前,其兩側同為電源側時,其操作順序也會發生相應變化。
由於操作人員技能水平的差異,以及對複雜運行方式下隔離開關操作順序理解上的偏差,運維管理部門沒有針對隔離開關操作順序制定相關的執行細則,變電站防誤閉鎖裝置缺陷以及設備固定的機械閉鎖操作順序等原因,使上述技術規定不能很好的貫徹執行,給安全管理工作埋下了隱患,通過分析存在的問題並提出改進措施。
存在的問題
1、運行方式及操作任務變化時操作順序的不確定性
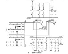
如圖1所示:1111與1112同為電源線;1號、2號主變並列運行;35kVⅠ、Ⅱ母,10kVⅠ、Ⅱ母並列運行。正常時,1111 電源線與 1112 電源線環網運行,此時,1111 線路停電操作內容中,首先,按規定要確定電源側和負荷側,該方式中,1111電源線停電時 1111丙隔離開關線路側及1111甲隔離開關母線側同為電源側,即1111丙與1111甲隔離開關操作順序為不確定性。同理,主變中、低壓側及母聯迴路的合環與解環操作均存在隔離開關操作順序的不確定性。在實際執行中由於人員理解上的偏差,在無相關執行細則情況下,操作人員填寫操作票時憑主觀判斷隨意填寫操作票,當發生爭議時因無相關執行細則而各執一詞,當發生誤操作時因操作順序的不合理造成事故範圍擴大等嚴重後果。
線路圖2、防誤閉鎖裝置操作邏輯固化的單一性不符合方式變化的要求
電氣設備防誤閉鎖裝置隨設備同時投入運行,由於變電站改擴建等原因使主接線方式發生變化,而防誤操作閉鎖裝置因閉鎖邏輯的固化,以及其閉鎖邏輯沒有考慮運行方式的變化而做出相應變化,在後續的電氣防誤操作閉鎖管理工作中沒有重視此問題,變電站防誤閉鎖系統沒有進行相應升級改造,造成操作閉鎖邏輯固定單一,不能隨運行方式的變化而執行相應的操作順序,被動的操作順序造成隔離開關操作順序的不合理性。
3、機械閉鎖操作順序不滿足操作任務變化的需要
對於10kV開關櫃等室內設備,其在出廠時已將隔離開關的操作順序實行機械閉鎖,只有按照機械閉鎖操作順序才能進行操作,機械閉鎖操作順序一般按線路用開關櫃設計,即先拉線路側隔離開關,後拉母線側隔離開關,送電時順序相反。該型開關櫃用於主變低壓側時,因主接線、運行方式及操作任務的不同,其隔離開關操作順序也會發生相應變化,但開關櫃的機械閉鎖操作順序固定、單一方向性不能隨之相應變化,發生誤操作事故時會擴大停電範圍,造成嚴重後果。
採取的措施
按實際運行方式確定操作順序
1、雙側電源線路隔離開關操作順序
隔離開關拉合環路電流的規定:電壓在10kV及以下,且環路均衡電流不超過70A,並考慮迴路阻抗及斷口間壓差,按照“等弧長”原則計算得出拉合的允許電壓差,否則,會因拉合隔離開關引起的電弧形成相間短路故障,此規定在實際執行中因系統潮流變化、變壓器參數不同等原因造成可操作性不強。
當線路停電時,應先拉線路側隔離開關,後拉母線側隔離開關;當母線停電時,應先拉母線側隔離開關,後拉線路側隔離開關。送電時,應按與上述相反的順序進行。並列運行的三圈主變低(或中)壓側隔離開關操作順序,當一台主變停電時,應先拉主變側隔離開關,後拉母線側隔離開關;當主變低(或中)壓側斷路器停電時,應先拉母線側隔離開關,後拉主變側隔離開關。送電時,應按與上述相反的順序進行。
並列運行的二圈主變低壓側隔離開關操作順序當一台主變(或低壓側斷路器)停電時,應先拉主變側隔離開關,後拉母線側隔離開關;送電時,應按與上述相反的順序進行。
2、對防誤操作閉鎖裝置進行改造升級
如上所述當運行方式變化時,隔離開關操作順序也相應發生變化,此時,應對固定、單一的閉鎖邏輯進行改造,即設定不同的運行方式下隔離開關的防誤閉鎖操作順序也發生相應變化,通過選擇實現。例如,當選擇 1111 線路停電操作任務時,其隔離開關的操作閉鎖邏輯自動切換至先拉 1111 丙、後拉 1111 甲,當選擇110kV母線停電時,自動選擇先拉 1111 甲、後拉 1111 丙。通過對防誤操作閉鎖裝置改造升級實現隔離開關的操作順序與操作任務關聯,自動選擇,靈活實現。
3、開關櫃型隔離開關的操作機構機械閉鎖裝置進行技術改造
對操作順序需相應變化的主變開關櫃型隔離開關的機械閉鎖裝置進行相應的技術改造,使其能在各種變化的操作順序下均能順利操作。
4、加強對開關櫃型隔離開關的選型管理
在變電站新建及改擴建工程中,對機構帶有機械閉鎖操作順序的開關櫃型隔離開關的選型應按照實際用途選擇,當用於主變側時,應根據需要選擇無機械閉鎖或機械閉鎖能靈活切換的開關櫃,其防誤操作由微機防誤閉鎖裝置按照實際操作順序的變化來實現閉鎖。因此,加強開關櫃型隔離開關的選型管理,在設備招投標及訂貨時應特別提出相關要求,從源頭上杜絕因設備選型不當造成後續工作的被動。
5、環路運行的母聯隔離開關操作順序
帶有不重要負荷或相應負荷較輕的線路所在母線側母聯隔離開關先拉,帶有重要負荷或負荷較重的線路所在的母線側母聯隔離開關後拉。變電站隔離開關防誤操作閉鎖裝置閉鎖邏輯固定、單一,不能適應多種運行方式下隔離開關操作順序的靈活性。應通過改造升級,在不同運行方式下隔離開關的操作順序能夠按操作任務實現自動選擇、靈活切換。主變低(或中)壓側為開關櫃型的隔離開關實行機械操作閉鎖。對原有的隔離開關機械閉鎖方式進行改造,新安裝的應選用不帶機械閉鎖或機械閉鎖能靈活切換的開關櫃。針對不同電壓等級、主接線、運行方式及相關保護配置的情況下,各站應制定相應的隔離開關倒閘操作執行細則。隔離開關操作順序的合理性對發生誤操作事故時停電範圍、事故性質有著直接的影響,只有科學的制定並認真執行隔離開關操作的相關規定,才能確保電氣設備運行的安全性和可靠性。

