基本信息
社區實景行政區域: 海口
項目位置: 海口市瓊山大道海藍椰風對面
交通狀況: 27路、52路公交直達,瓊山大道對面。
建築類型: 板塔結合,小高層
物業類別: 普通住宅
主力戶型: 40-100平米
開發商: 海南萬基威置業有限公司
詳細信息
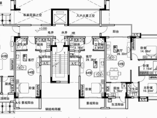
戶型圖產權年限: 70年
產權類型: 大產權房
容積率: 1.499
綠化率: 40%
總戶數: 277
建築面積: 28845平方米
占地面積: 13452.35平方米
價格信息
雲海花都價格:待定
售賣信息
售樓處售樓地址: 海口市美蘭區瓊山大道
開盤時間: 2012年6月
入住時間: 2013年12月
項目介紹
戶型圖項目占地13452.35平方米,平均容積率1.499,綠化率40%,由5棟11層小高層花園洋房及1棟商業配套組成,共277戶,面積從40平米-106平米。採用現代簡約風格,強調體形組合關係及層次感。通過灰白冷色搭配,暖暮色點綴,來表現建築的層次感和現代感。首層架空,形成風雨廊,增加小區的景觀綠道空間,與露天的綠化帶連線,景觀天然的翠綠延伸至建築物內,小區中心擁有大型水體設施,豐富小區景觀氛圍。

