詳細解釋
1.城上短牆
《文選·鮑照<蕪城賦>》:“板築雉堞之殷,井幹烽櫓之勤。”李善註:“鄭玄《周禮》注曰:‘雉,長三丈,高一丈。’杜預《左氏傳》注曰:‘堞,女牆也。’”
《明史·廣西土司傳一·柳州》:“始洛容在萬山中,城小無雉堞。”
2.泛指城牆
唐·司空曙《南原望漢宮》詩:“荒原空有漢宮名,衰草茫茫雉堞平。
源流
就是城牆上的雉堞唐代詩中就曾提到過女牆,劉禹錫《石頭城》詩:“淮水東邊舊時月,夜深不過女牆來。”李賀《石城曉》詩:“月落大堤上,女垣棲烏起。”但這些詩中都只提到女牆,而沒有談到雉堞。
宋代文獻中有關於雉堞的記載,但沒有說明當時修築雉堞使用的是什麼建築材料,目前的考古資料也沒有發現這方面的實證,如推斷當時的城牆均為夯土牆,因此,雉堞可能也與城牆一樣,是夯土所築。
明代以後,普遍開始在夯土的城牆外面包磚,此時的雉堞是磚砌而成。而石城的雉堞則是石砌而成。
雉堞在城牆上的位置,從內側看建於海墁的平面之上,從外側看位於拔檐以上。雉堞的下半部為女牆,女牆上建城垛(也稱垛牆),城垛與城垛之間形成垛口,排列如齒狀。有些明、清時期的城牆靠城的內側建有內女牆,這一般是比較大的城址,城牆較寬,城上有馬道,內女牆可以保證通行的安全。內女牆上沒有修建城垛,是一條平直的牆,所以稱女牆而不稱雉堞。一些規模較小的城,城牆頂較窄,也為了節省工料,所以就沒有修建內女牆,如明代的崇武城。
古代計算城牆面積的單位是“方丈曰堵,三堵曰雉,一雉之牆,長三丈高一丈”。《左傳·隱公元年》:“都城過百雉,國之害也”。北宋文學家王禹稱在《黃州新建小竹樓記》中寫道:“子城西北隅,雉堞圯毀。” 雉堞的作用是在作戰中隱蔽身體和裝備,同時又便於觀察和射擊,其形狀已成為中國古代城牆的標誌,在晚期的築城設計上更兼具了禮儀和美學的作用,如明代的北京城,其宮城城牆的雉堞修築成凸字型,既富於變化又更具裝飾性。
結構與作用
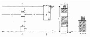
明南京城雉堞立面剖面圖雉堞是城池防禦體系中不可缺少的組成部分,但不同的城池在雉堞的結構上有所差別。此外,對雉堞的一些作用,目前人們在認識上也有不同的看法。我們對現存的幾處明代有代表性的古城進行了實測,並進行了分析研究。
南京城為明代早期都城,元末明初由朱元璋在南唐江寧府的基礎上修築而成,修築時間自1366年至1393年,前後歷時38年。南京城共建有雉堞13616個,雉堞的女牆高88厘米,垛牆高76厘米,通高164厘米,厚43厘米。垛牆長270厘米,垛口寬45厘米,垛牆中部開寬20厘米、高28.5厘米的長方形孔。女牆底部開寬20厘米、高33.5厘米的長方形孔,與內側的排水槽和通向外側的石質排水槽相通。明南京城的修建所需建築材料數量巨大,城磚由長江中下游地區的江蘇、江西、安徽、湖南、湖北5省各府、州、縣,以及軍隊、衛所和工部等組織力量進行燒造,為明確質量責任,幾乎每塊磚上都印有磚文。築城的城磚無論砌築什麼部位都使用同一規格的磚,但這些磚畢竟來自不同的地方,土質與火候的差異造成了顏色的不一,規格上的差異也比較大,一般為長39.5~44.5厘米,寬18~21厘米,厚10~13厘米,這樣在砌築時不得不做很大的灰口,以使磚牆平直。城牆頂部的內側建有內女牆,內女牆與城牆一樣均採用一丁一順的砌法。雉堞由於中部留有孔洞,因此砌法並不統一。面向外側的雉堞和內女牆與牆面平直,沒有內收或出檐。垛牆與垛口均採用順磚壓頂,城牆海墁向兩側排水。
西安城即明秦王府城,是在唐代皇城的基礎上擴建而成,修築時間自1370年至1378年,前後歷時8年。雉堞的女牆高94厘米,厚52厘米,垛牆長235.5厘米,厚48厘米,垛口寬46厘米。垛牆中部女牆底部開寬27厘米、高37厘米的長方孔。在城牆頂部內側建有高85厘米、厚45厘米的內女牆。明西安城的城磚規格、顏色較為一致,均為灰色,規格分兩種,大磚為長45厘米,寬22厘米,厚10厘米;小磚為長24厘米,寬11.3厘米,厚5.5厘米。小磚易於燒制和運輸,但堅固不如大磚,因此,城外側和城門兩側都使用大磚,城牆內側使用小磚。女牆與外城牆結合處有兩層順磚砌成的出檐,以作為城牆收分與垂直的女牆之間的過渡,但從檐下第3層起,城磚反因雨水沖刷損壞得更為嚴重。城牆的海墁向內側傾斜,雨水全部通過內側女牆底部石過梁下的半圓形水槽沿內側城牆流入城內。
崇武城位於福建省惠安縣東南的崇武半島上,是現存最完整的明代衛所城之一。建於明洪武二十年(1387年),為石頭所建。雉堞的女牆高105厘米,厚45厘米;垛牆長190厘米,寬40厘米,高95厘米。垛口寬55厘米,女牆中部每隔數十米至百餘米有長方形的孔洞。內側無女牆。女牆與城牆一樣用長方形條石砌成,垛牆由塊石和不規則的石塊砌成,較女牆內收5厘米。海墁略向內側傾斜,雨水排入城內。
規律和特點
通過以上對明代南京城、西安城、崇武城雉堞的比較分析,對其規律和特點可以得到以下幾點認識:
長城上的雉堞1、垛牆的寬度與城的大小和城牆的厚度有關,城越大,城牆越厚,垛牆的寬度就越寬。而不論城有多大,城牆有多厚,垛口的寬度都是基本一致的。
2、雉堞的高度(女牆加垛牆的高度)與城牆的高度有關,城牆越高則雉堞越低,城牆越矮則雉堞越高。這是由雉堞在作戰過程中的防禦和進攻的實用性而決定的。城大而牆厚則城上守軍就要多,垛牆寬才能有效地進行隱蔽,城牆越高則攻城武器的射角也越大,雉堞低些也同樣能起到防護作用。
3、雉堞上的開孔,過去一直認為是炮孔或射擊孔,從圖上可以看到,這種孔有三種情況,即分別開在垛牆中部、女牆中部或女牆底部。南京城開在女牆底部的孔是用來排水的,而西安城的海墁是向內傾斜的,所以孔就沒有排水的功能,而其緊貼海墁的地面也無法進行射擊。開於女牆中部和垛牆的孔都很窄小,沒有向城下射擊的射界。北京城也只在女牆的底部開孔,而垛牆上沒有開孔。開封城有專門用於射擊的炮口,每隔6個垛牆設1個,炮口由上下兩塊石頭對合,中間挖有直徑28厘米的圓洞,但開封城是清道光二十二年至二十三年(1842~1843年)重修完成的。因此,這些雉堞上的開孔,除底部的部分有排水的功能外,並沒有射擊的功能,它們與歐洲中世紀城牆上的雉堞的開孔一樣,主要是起對外觀望的作用,也有對整個城牆的裝飾作用。

