基本信息
社區實景行政區域: 城陽區
項目位置: 城陽區王沙路1616號
交通狀況: 主要交通路線有濱海大道、王沙路和308國道、青銀高速、嶗山北路等,有106/109/312/926等多條公交線路。項目距青島市區30分鐘車程,濱海大道十分鐘車程,驅車到城陽區政府、流亭機場、城陽火車站僅需15分鐘車程。
建築類型: 板樓,獨棟別墅
物業類別: 普通住宅,別墅,酒店式公寓,商鋪
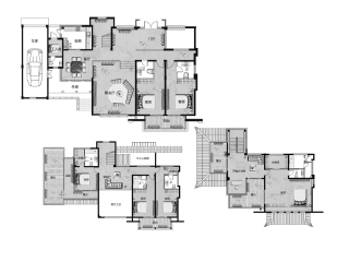
主力戶型: 500平米
開發商: 青島鵬飛房地產開發有限公司
物業費: 3元/月/平方米
詳細信息
戶型圖產權年限: 40
產權類型: 大產權房
開工時間: 20101000
容積率: 0.35
綠化率: 32.6%
總戶數: 207
建築面積: 118714平方米
占地面積: 191387平方米
周邊配套
周邊配套周邊配套: 周邊配套:據城陽中心商圈、國際飛機場十分鐘車程,據青島市區30分鐘車程。
醫療點評:據城陽人民醫院十幾分鐘車程,附近有就近的惜福鎮醫院。
商業點評:據城陽佳家園、利群等購物商城十餘分鐘車程。
內部配套: 內部配有五星級大酒店及傳統商業古街、紅木家具一條街、長水博物館等
供暖方式: 地源熱泵系統,包括主機、室內地暖鋪設
價格信息
長水山莊價格:起價420萬元/套
售賣信息
售樓處售樓地址: 城陽區王沙路1616號
開盤時間: 2012年10月21日
入住時間: 2012年底
銷售許可證: 青房注字(城11)第82
項目介紹
戶型圖項目內部配套商業古街,建築面積3000多平方米,將打造青島最具有中國文化的古街,這裡主要經營近現代名家書畫、湖筆徽墨、宣紙端硯、裝裱古今名人字畫等;後期將有書法大師、在這裡揮毫潑墨,定期舉行書法、國畫展等活動,現場將有拍賣活動。長水山莊牌樓高約16米,橫跨約32米,氣勢宏偉壯觀,其中的牌匾上“長水山莊”四個大字,是來源於中國知名書法畫家劉文西的手筆。牌樓廣場景觀水景噴泉,周邊設有四尊鼎。水上長廊是長水山莊項目的又一大景觀特色,總投資600餘萬元,橫跨河面48米,寬約8.8米,廊上雕欄畫柱、梅蘭竹菊、山水人物各具風情。長水博物館,建築面積3500多平方米,建成後供青島以及山東的一些藝術品私藏家前來參觀,後期可舉行古董、字畫、藝術品展示,成為青島最具規模的中國文化展覽館;在這裡我們設有鵬飛集團的會所、和茶文化藝術館、建成後就可以看到現場炒茶和欣賞茶藝表演。

