保護範圍
速斷保護線路發生短路故障時,母線電壓急劇下降,在電壓下降到電壓保護整定值時,低電壓繼電器動作,跳開斷路器,瞬時切除故障。這就是電壓速斷保護。
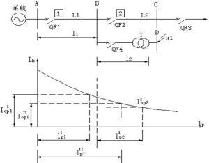
二、電流速斷保護
電流速斷保護分為無時限電流速斷和帶時限電流速斷,當線路出現故障時,無時限速斷保護能瞬時動作,但它只能保護線路的一部分,帶時限電流速斷保護能保護全線路,另外帶時限速斷保護比下一級線路無時限保護大了一個時限差,因此下一段線路首端發生短路時,保護不會誤動。
速斷保護差動保護是變壓器的主保護,是按循環電流原理裝設的。主要用來保護雙繞組或三繞組變壓器繞組內部及其引出線上發生的各種相間短路故障,同時也可以用來保護變壓器單相匝間短路故障。在繞組變壓器的兩側均裝設電流互感器,其二次側按循環電流法接線,即如果兩側電流互感器的同級性端都朝向母線側,則將同級性端子相連,並在兩接線之間並聯接入電流繼電器。在繼電器線圈中流過的電流是兩側電流互感器的二次電流之差,也就是說差動繼電器是接在差動迴路的。從理論上講,正常運行及外部故障時,差動迴路電流為零。實際上由於兩側電流互感器的特性不可能完全一致等原因,在正常運行和外部短路時,差動迴路中仍有不平衡點流Iumb流過,此時流過繼電器的電流IK為 Ik=I1-I2=Iumb要求不平衡點流應儘量的小,以確保繼電器不會誤動。當變壓器內部發生相間短路故障時,在差動迴路中由於I2改變了方向或等於零(無電源側),這是流過繼電器的電流為I1與I2之和,即Ik=I1+I2=Iumb能使繼電器可靠動作。變壓器差動保護的範圍是構成變壓器差動保護的電流互感器之間的電氣設備、以及連線這些設備的導線。由於差動保護對保護區外故障不會動作,因此差動保護不需要與保護區外相鄰元件保護在動作值和動作時限上相互配合,所以在區內故障時,可以瞬時動作。
