概念
轉式鑽探是工程上鑽去鑽井所用的一種加工方式。所用的裝置為不同類型的轉式鑽機。
迴轉鑽探
圖4它是藉助由鑽具驅動迴轉的鑽頭,在軸心壓力的作用下破碎岩石以鑽進。視破碎岩石所用切制研磨材料的不同,鑽進方法分有三類,即金剛石鑽進、硬質合金鑽進和鑽粒(包括鐵砂與鋼粒)鑽進。前二者是將金剛石或硬質合金直接鑲嵌或焊牢在鑽頭端面上,隨鑽頭同作迴轉;而後者刖則是將鑽粒一次或分次陸續地散投在孔底和鑽頭端面及內外側壁之劂間,隨鑽頭滾動和刮制岩石。金剛石鑽進圍優點甚多,但以量少價高,實際套用不多(圖4)。
岩心迴轉鑽探主要設備及其布置見圖5,將硬質合金鑽頭或鑽粒鑽頭
連線在岩心管上,再通過異徑接頭和鑽桿相連。鑽桿上部夾持在鑽機迴轉器的立袖軸卡盤中,由卡盤帶動轉動,並隨鑽孔的不斷延深而加長。
圖5鑽機不僅給鑽頭以扭矩,還能通過迴轉器上的進給裝置或升降機來調整鑽具施於孔底的壓力。鑽頭在適當的軸心壓力下迴轉時,切削具便在岩石上鑽出一環狀間隙,當中未被鑽去的岩柱即稱為岩心,它隨鑽孔的延深而進入岩心管內。
鑽進過程中,水泵通過送水膠管提引水接頭和鑽桿將沖洗液逡入鑽孔中,藉以冷卻鑽頭並將孔底岩屑通過鑽桿與孔壁之間的環狀間隙攜至地面。然後沿泥漿槽循環至沉澱池沉澱,澄清的沖洗液流至水源箱重被吸水管吸入、並再通過鑽桿壓入孔中,周而復始,如此循環不已。
當用鑽粒鑽進時,由於技術上要求沖洗液返回地面的流速很慢,在這種情況下,比重
較大的岩屑將不能隨沖洗液返回地面。因此為避免孔內岩屑過多造成事故,特在岩心管上
再聯一取粉管,以使比重較大的岩屑就近沉澱在該管中。
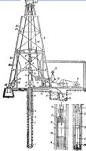
移動式及半移動式轉式鑽機
圖1移動式及半移動式轉式鑽機在安裝扣拆卸設備上需要消耗很多的時間,因此在鑽比較淺的鑽井時,相常廣泛地採用移動的和半移動的輪轉式裝置。
當勘察石油時,採用By-40型鑽探裝置,該裝置適用於鑽進深度在1000公尺以下的鑽井。此裝置的全貌如圖1所示。
By-40型的全套裝置包括:帶有轉動裝置的絞車,輪轉器,兩台泥漿水泵,帶有天車、滑車、提引鉤、提引接頭可摺疊的鑽塔,在設定鑽塔下之的金屬底基,小橋,泥漿攪拌機及保存燃料的附設裝置。由雨台300馬力的B-2-300型柴油機帶動鑽探裝置,每一台柴油機又用四速的變速箱轉動。柴油機中的一台為備用品。當有電能時,可以容量各為95的兩台電動機代替柴油機。
絞車的捲筒是用鏈子帶動的。用摩擦結合板結合捲筒。當安裝的滑車裝置為3×4時,絞車的起重量為40噸。此時,提引鉤提升的速度為0.35、0.65、0.92及1.3公尺/秒。
用萬向接頭軸將輪轉器和傳動箱相連。輪轉器的通孔為410公厘,輸轉器旋轉速度每分鐘為80、150、210及300轉。
轉式鑽探
轉式鑽探當活塞直徑為寸時,每一台水泵最大的排水量為24公升/秒。當活塞直徑為寸時,水泵的排水量為10公升/秒,並將壓力增至160大氣壓。帶動每台水泵所需的容量為130馬力。水泵可平行地及個別地工作。為了減輕安裝工作起見,水泵安裝在特製的機架上,並且設有進氣歧管。
By-40型裝置的鑽塔為摺疊式的,它用鑽機上的絞車的起重臂來提起,鑽塔高度為20公尺。立根長12.5公尺。鑽桿直徑為4寸。當提升時,應垂直地安設立根;立根的上端應放入特製的架子內,該架高出地板10.5公尺。 ·
鑽塔和設備下面的基礎是以焊接的方法用壓型鋼材做成的壇形架,在放到鑽探地點之前應將其連線好。
圖2輪轉式鑽探裝置很多都安裝在載重汽車上。此種自動鑽探裝置的全貌如圖2所示。
輪轉式鑽探用水泵
輪轉式鑽探是用強力的泥漿沖洗進行的。
要鑽很深的和直徑很大的鑽井時,水泵也應具有大的排水量及高的壓力。
由於水泵係為抽送泥漿而用的,而泥漿中幾乎經常含有砂粒,因此水泵的構造應有下列各項特點:
一、水泵的汽缸應安有易於置換的缸套,該套用特製螺釘擰住,並用填料填緊。因此,就有可能安裝調整水泵排水量和壓力的各種不同直徑的汽缸套。
二、活塞上安裝橡皮墊圈。
三、活瓣及活瓣槽設定在大尺寸的室中,並使之易於儉查及替換。活瓣有膠墊。
四、所有水泵都裝有空氣帽及安全閥。
依據現有動力的種類,採用蒸汽的或是傳動的水泵。
深井迴轉鑽選用鑽塔
用迴轉方法作深井鑽進時採用下列鑽塔:
1)預計能提升三個長18-19公尺立根的,用於800-1200公尺鑽進的鑽塔,此類塔高為28公尺。
2)預計提升長25公尺的立根,用於鑽進3000公尺以內的鑽塔;在此情況下使用兩種型式的標準鑽塔:1.高37.3公尺的木板制鑽塔,2.高為41公尺的管子制鑽塔。
圖33)預計提升37公尺長的立根(用於超深度鑽進)的高54公尺的鑽塔。
高37.3公尺的木板制鑽塔如圖3所示。這種鑽塔安在四個基礎支柱上。鑽塔下的基礎應是很堅固的,因此在不堅固的基礎常會發生下沉、歪斜,有時會使塔架傾倒。在1000~1500公尺以下的 迴轉式鑽探大都採用本制的基礎。

