砌塊芯柱
指在建築工程中空心混凝土砌塊砌築時,在混凝土砌塊牆體中,砌塊的空心部分插入鋼筋後,再灌入流態混凝土,使之成為鋼筋混凝土柱的結構及施工形式。
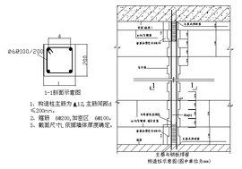
框架柱芯柱
框架芯柱就是在框架柱截面中三分之一左右的核心部位配置附加縱向鋼筋及箍筋而形成的內部加強區域。
在周期反覆水平荷載作用下,這種柱具有良好的延性和耗能能力,能夠有效地改善鋼筋混凝土柱在高軸壓比情況下的抗震性能。為了便於梁筋通過,芯柱邊長不宜小於柱邊長或直徑的1/3,且不宜小於250mm。
彎矩對核心鋼筋的影響小,用周邊鋼筋抵抗彎矩的作用,即使混凝土保護層開裂剝落後,周邊鋼筋和混凝土的粘結削弱,而核心鋼筋和混凝土之間仍具有良好的粘結,核心鋼筋不會發生壓曲;即使外圍混凝土失效,核心鋼筋形成的芯柱仍能抵抗豎向荷載,防止大震情況下結構的倒塌。對高層建築大柱網的底部若干層柱的截面尺寸往往由軸壓比限值控制,而縱向鋼筋僅為構造配筋;因此,這些柱採用核心配筋形成芯柱後往往能合理地縮小柱的截面尺寸。
區別
構造柱是牆體上間隔一定距離設定的混凝土柱子,按構造要求配筋應計算,可提高砌體結構的抗震性能。
為提高多層建築砌體結構的抗震性能,規範要求應在房屋的砌體內適宜部位設定鋼筋混凝土柱並與圈樑連線,共同加強建築物的穩定性。這種鋼筋混凝土柱通常就被稱為砌塊芯柱。

