館情概況
北校區圖書館洛陽理工學院圖書館主館設在西校區,是圖書館的文獻采編中心、資料庫建設中心、行政管理中心,東、北校區各設有一個分館。主館與分館館藏文獻按學院各校區學科布局分布,對師生開放服務。圖書館下設辦公室、采編部、流通部、期刊閱覽部和技術部五個部門,在編職工64人。圖書館現有自然科學書庫、社會科學書庫、文藝書庫、綜合參考室、現刊閱覽室、過刊閱覽室、電子閱覽室等30個書庫和閱覽室,總閱覽座位2812個。
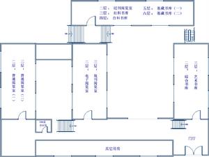
洛陽理工學院東校區圖書館組織機構
觸控檢索洛陽理工學院圖書館在主管院長領導下,實行館長負責制。下設5個二級機構,分別是:采編部、流通部、閱覽部、技術部和辦公室。
圖書館辦公室:負責洛陽理工學院圖書館的日常事務,對外聯繫和接待,組織會議和全館性活動。並協助館領導制定工作計畫、規章制度和年度總結,和圖書館的文書收發,人事、總務、維修及各項統計。
采編部:根據教學科研工作需要,制定採訪原則、標準。根據年度文獻購置費制訂各種文獻的採購計畫,蒐集各種出版書目,編制預定目錄,建立館藏體系。對到館的各種文獻及時進行驗收、分類、編目、加工、典藏分配,轉入流通部。
北校區圖書館平面示意圖期刊閱覽部:負責各校區閱覽室的開放與管理,為讀者工提供刊、報的閱覽服務;並對報刊進行整理、收藏和裝訂,新刊入庫的領取、登記、記到和管理,每月要實施對現刊現報的清查核實,對停刊、缺刊、漏刊、到刊等內容實行月報制。
信息技術部:負責圖書館伺服器系統、客戶機及其輔助設備的管理與維護;並承擔圖書館圖書集成管理系統等套用軟體的管理與維護,進行電子文獻、資料庫建設,不斷開發文獻信息資源,為洛陽理工學院和社會提供各種信息服務。
開放時間
電子閱覽室文學書庫 ,社會科學書庫(二),現刊閱覽室
星期一至星期日 上午8:00—12:00下午2:00— 5:30晚上6:30— 9:30
社會科學書庫(星期一),自然科學書庫(二)
星期一至星期日 上午8:00—12:00下午2:00— 5:30
經濟書庫,自然科學書庫(一),綜合參考室,河洛文化研究資料中心,過刊閱覽室
星期一至星期五 上午8:00—12:00下午2:00— 5:30
電子閱覽室,普通閱覽室 星期一至星期日 8:00-21:30
東館
社會科學書庫,自然科學書庫,現刊閱覽室
星期一至星期日 上午8:00—12:00下午2:00— 5:30晚上6:30— 9:30
文學書庫(一) 星期一至星期日 上午8:00—12:00下午2:00— 5:30
文學書庫(二) ,文學書庫(三) 星期一至星期五 上午8:00—12:00下午2:00— 5:30
電子閱覽室 星期一至星期日 8:00-21:30
工具書資料室 不定時
期刊閱覽室綜合書庫 星期二至星期六 上午8:00—12:00下午2:00— 5:30
藝術書庫 星期日至星期四 上午8:00—12:00下午2:00— 5:30
現刊閱覽室 星期一至星期日 上午8:00—12:00下午2:00— 5:30晚上6:30— 9:30
過刊閱覽室 星期一至星期五 上午8:00—12:00下午2:00— 5:30
電子閱覽室 星期一至星期日8:00-21:30
說明:周四下午政治學習、業務學習不開放。
借閱規則
圖書館大廳環境(一)借書冊數:
1、院本部教職工:圖書10冊
2、院辦工廠、後勤服務公司正式職員:圖書5冊
3、在校學生:圖書5冊,其中文學圖書限借2冊。
(二)借閱期限:
1、教職工:150天;可續借(每次30天)
2、學生:30天;可續借一次(30天)
3、讀者借書均應按期歸還,以便提高圖書利用效率。逾期不還者,將作如下處理:
(1)暫停借書;
(2)每書超期一天收取滯納金0.1元(寒暑假不計在內)。
4、圖書館外借圖書以普通圖書為限,樣本書、特藏書、工具書僅供閱覽,不外借。
綜合參考室(一)讀者憑本人借閱證進入書庫借閱,進入書庫須領取代書板。開架書庫圖書均可自行取閱,每次限取一冊,閱後放回原處。
(二)需借圖書在服務台辦理借閱手續,並交回代書板。
(三)圖書預約
讀者可以在網上圖書館預約已借出的圖書,具體規定如下:
1、當所需圖書均已外借時可以進行預約。
2、所有讀者一次最多可以預約1冊。多人預約同一種圖書按預約時間先後排序。
3、所預約圖書到館後,圖書館將保留7天,(閉館期間不順延,提前終止)到期不進行借閱將由其他需要的讀者使用。
4、圖書預約可以在圖書館主頁“網上圖書館”下的“書目查詢”中先進行圖書檢索如果需要可以進行預約操作,但只有可借狀態的圖書才可以預約,非可借狀態的圖書可以到相應的館藏地點進行閱覽,不能預約。
5、請預約圖書的讀者及時到校園網圖書館網站查詢查看自己所預約的圖書是否已經歸還,並及時到圖書館流通部辦理借閱手續。
6、如果想取消預約圖書,登入校園網圖書館網站取消。如果預約圖書已經到館,請到流通部取消預約。
資源布局
西校區圖書館平面示意圖東區
社科書庫: 社科N102-104
自科書庫: 自科、工科 地下室
文學一庫:文學 S105
文學二庫:文學 N105
文學三庫:文學 N103
期刊閱覽室(1)(2):現刊 S101-103
工具書資料室:工具書 S106-108
電子閱覽室:N106-108
北區
綜合書庫:社科、文學、計算機 二樓
藝術書庫: 藝術類圖書 三樓
期刊閱覽室:現刊 三樓
過刊閱覽室: 過刊 後二樓
電子閱覽室:二樓
普通閱覽室(1)(2):一、二樓
社科書庫綜合參考室:工具書、社科樣本,外文圖書、現刊 一樓
文學書庫:文學圖書 二樓
社科一庫: 社科 三樓
社科二庫: 語言、歷史 四樓
經濟書庫:經濟 五樓
自科一庫:自然科學 一樓
自科二庫:工業技術 二樓
期刊閱覽室:現刊 三樓
過刊閱覽室: 過刊、報紙 四樓
河洛研究資料中心:河洛研究資料 四樓
電子閱覽室:四樓
普通閱覽室(1)(2): 五樓
資料庫資源
李凖紀念室北大法意網(法律資料庫)
中宏資料庫(經濟類資料庫)
中國期刊全文資料庫
中國期刊全文資料庫(世紀期刊)
中國優秀碩士學位論文全文資料庫
中國博士學位論文全文資料庫
中國重要會議論文全文資料庫
中國重要報紙全文資料庫
中國工具書集錦線上
中國年鑑網路出版總庫

