類型
建築立面圖它主要表現建築的外貌形狀,反映屋面、門窗、陽台、雨篷、台階等的形式和位置,建築垂直方向各部分高度,建築的藝術造型效果和外部裝飾做法等。根據建築型體的複雜程度,建築立面圖的數量也有所不同。一般分為正立面、背立面和側立面,也可按建築的朝向分為南立面、北立面、東立面、西立面,還可以 按軸線編號來命名立面圖名稱,這對平面形狀複雜的建築尤為適宜。在施工中,建築立面圖主要是作建築外部裝修的依據。
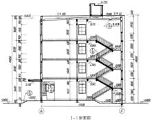
建築剖面圖
建築剖面圖沿建築寬度方向剖切後得到的剖面圖稱橫剖面圖;沿建築長度方向剖切後得到的剖面圖稱縱剖面圖;將建築的局部剖切後得到的剖面圖稱局部剖面圖。建築剖面圖主要表示建築在垂直方向的內部布置情況,反映建築的結構形式、分層情況、材料做法、構造關係及建築豎向部分的高度尺寸等。
建築平面圖
建築平面圖
建築平面圖它表示建築的平面形式、大小尺寸、房間布置、建築人口、門廳及樓梯布置的情況,表明牆、柱的位置、厚度和所用材料以及門窗的類型、位置等情況。主要圖紙有首層平面圖、二層或標準層平面圖、頂層平面圖、屋頂平面圖等。其中屋頂平面圖是在房屋的上方,向下作屋頂外形的水平正投影而得到的平面圖。
建築總平面圖
建築總平面圖建築總平面圖是表明一項建設工程總體布置情況的圖紙。它是在建設基地的地形圖上,把已有的、新建的和擬建的建築物、構築物以及道路、綠化等按與地形圖同樣比例繪製出來的平面圖。主要表明新建平面形狀、層數、室內外地面標高,新建道路、綠化、場地排水和管線的布置情況,並表明原有建築、道路、綠化等和新建築的相互關係以及環境保護方面的要求等。由於建設工程的性質、規模及所在基地的地形、地貌的不同,建築總平面圖所包括的內容有的較為簡單,有的則比較複雜,必要時還可分項繪出豎向布置圖、管線綜合布置圖、綠化布置圖等。
建築工程施工圖
具有圖紙齊全、表達準確、要求具體的特點。它是設計工作的最後成果,是進行工程施工、編制施工圖預算和施工組織設計的依據,也是進行施工技術管理的重要技術檔案。一套完整的建築工程 施工圖,一般包括建築施工圖、結構施工圖、給排水、採暖通風施工圖及電氣施工圖等專業圖紙,也可將給排水、採暖通風和電氣施工圖合在一起統稱設備施工圖。
建築施工圖
簡稱“建施”。它一般由設計部門的建 築專業人員進行設計繪圖。建築施工圖主要反映一個工程的總體布局,表明建築物的外部形狀、內部布置情況以及建築構造、裝修、材料、施工要求等,用來作為施工定位放線、內外裝飾做法的依據,同時也是結構施工圖和設備施工圖的依據。建築施工圖包括設備說明和建築總平面圖、建築平面圖、立體圖、剖面圖等基本圖紙以及牆身剖面圖、樓梯、門窗、台階、散水、浴廁等詳圖和材料做法說明等等。
建築工程圖
建築工程圖是以投影原理為基礎,按國家規定的製圖標準,把已經建成或尚未建成的建築工程的形狀、大小等準確地表達在平面上的圖樣,並同時表明工程所用的材料以及生產、安裝等的要求。它是工程項目建設的技術依據和重要的技術資科。建築工程圖包括方案設計圖、各類施工圖和工程竣工圖。由於工程建設各個階段的任務要求不同,各類圖紙所表達的內容、深度和方式也有差別。方案設計圖主要是為徵求建設單位的意見和供有關領導部門審批服務;施工圖是施工單位組織施工的依據;竣工圖是工程完工後按實際建造情況繪製的圖樣,作為技術檔案保存起來,以便於需要的時候隨時查閱。
容積率
指建築用地中建築面積與基地總用地面積之比。容積率實際於城市規劃管理之需要,為改善城市居住環境條件,為控制人口密度和產業密度,即控制土地使用強度等而提出的一個限制指標。容積率越高,則意味著建築面積越大,單位土地成本越低,房屋成本越低。同時也意味著人均占有綠地面積減小,居住環境質量下降。
相關概念
一套完整的建築圖紙,根據其專業內容或作用的不同,一般包括:
(1)圖紙日錄
其包括每張圖紙的名稱、內容、圖紙編號等,表明該工程圖紙由哪幾個專業的圖紙及哪螳圖紙所組成,便於檢索和查找。
(2)設計總說明
其主要說明工程的概況和總的要求。內容一般應包括:
1)設計依據(如規劃限制、沒計規模、建築面積以及有關的地質、氣象資料等)。
2)設汁標準(如建築標準、結構荷載等級、抗震要求等)。
3)施工要求(如施工技術、材料要求以及採用新技術、新材料或有特殊施工的工藝說明)。
以上各項內容,對於簡單的工程,也可以分別在各專業圖紙,寫成文字說明。
(3)建築施工圖
其包括總平面圖、平面圖、立面圖、剖面圖和構造詳圖。表示建築物的內部布置情況,外部形狀,以及裝修、構造、施工要求等。
(4)結構施工圖
其包括結構平面布置圖和各構件的結構詳圖。表示承重結構的布置情況,構件類型,尺寸大小及構造做法。

