房屋建築施工圖的分類
建築平面圖1.建築施工圖(簡稱建施)
主要表示房屋總平面圖、立面圖、剖面圖等。2.結構施工圖(簡稱結施)
主要表示房屋承重結構的布置、構件類型、數量、大小及做法等。它包括結構布置圖和構件詳圖。3.設備施工圖(簡稱設施)
主要表示各種設備、管道和線路的布置、走向以及安裝施工要求等。設備施工圖又分為給水排水施工圖(水施)、供暖施工圖(暖施)、通風與空調施工圖(通施)、電氣施工圖(電施)等。設備施工圖一般包括平面布置圖、系統圖和詳圖。施工圖中常用的符號
施工圖的繪製是投影理論、圖示方法及有關專業知識的綜合套用。因此,要讀懂施工圖紙的內容,必須做好下面一些準備工作:1.應掌握作投影圖的原理以及形體的各種表示方法。
2.要熟識施工圖中常用的圖例、符號、線型、尺寸和比例的意義。
國標
由於房屋的構、配件和材料種類較多,為作圖簡便起見,“國標”規定了一系列的圖形符號來代表建築構配件、衛生設備、建築材料等,這種圖形符號稱為圖例.為讀圖方便,“國標”還規定了許多標註符號。1.定位軸線及其編號
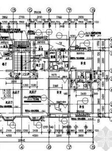
建築施工圖的定位軸線是建造房屋時砌築牆身、澆注柱樑、安裝構配件等施工定位的依據。凡是牆、柱、梁或屋架等主要承重構件,都應畫出定位軸線,並編號確定其位置。對於非承重的分隔牆、次要的承重構件,可編繪附加軸線,有時也可以不編繪附加軸線,而直接註明其與附近的定位軸線之間的尺寸。根據“國際”規定,定位軸線採用細點畫線表示。軸線編號的圓圈用細實線,直徑一般為8mm~10mm的圓圈,並在其中進行編號。詳圖上為10mm,如圖3-2所示。軸線編號寫在圓圈內。軸線編號原則為:在平面圖上水平方向的編號採用阿拉伯數字,從左向右依次編寫。垂直方向的編號,用大寫拉丁字母自下而上順次編寫。拉丁字母中的I、O及Z三個字母不得作軸線編號,以免與數字1、0及2混淆。在較簡單或對稱的房屋中,平面圖的軸線編號,一般標註在圖形的下方及左側。較複雜或不對稱的房屋,圖形上方和右側也可標註。
對於附加軸線的編號可用分數表示,分母表示前一軸線的編號,分子表示附加軸線的編號,用阿拉伯數字順序編寫,。在畫詳圖時,如一個詳圖適用於幾個軸線時,應同時將各有關軸線的編號註明.定位軸線也可採用分區編號,其注寫形式可參照“國標”有關規定。
2.標高符號
建築圖樣中表示建築物高度的標註與一般的尺寸標註不同,規定採用標高符號標註。在總平面圖、平面圖、立面圖和剖面圖上,經常用標高符號表示某一部位的高度,按其基準點不同標高有兩種形式,即絕對標高和相對標高。絕對標高是以我國青島附近黃海的平均海平面為零點測出的高度尺寸,在建築總平面圖中對室外地坪及道路控制點的高度,一般採用絕對標高,絕對標高以米為單位精確到厘米。;相對標高又稱建築標高,是以建築物室內主要地面為零點進行計算高度的標高。各類圖上所用標高符號應按圖3-3(1)所示形式以細實線繪製,標高符號的尖端應指至被標註的高度,尖端可向下也可向上。圖3-3(2)所示為具體的畫法。標高數值以米為單位,一般注至小數點後三位數(總平面圖中為兩位數)。在“建施”圖中的標高數字表示其完成面的數值。如標高數字前有“一”號的,則表示該處完成面低於零點標高。如數字前沒有符號的,則表示高於零點標高。如果同一位置表示幾個不同標高時,數字可按圖3-3(4)的形式注寫。
3.索引符號與詳圖符號
在施工圖中,有時會因為比例問題而無法表達清楚某一局部,為方便施工需另畫詳圖。一般用索引符號註明畫出詳圖的位置、詳圖的編號以及詳圖所在的圖紙編號。索引符號和詳圖符號內的詳圖編號與圖紙編號兩者對應一致。
當索引符號用於索引剖面詳圖時,應在被剖切的部位繪製剖切位置線。引出線所在一側應為投射方向。
詳圖符號用一粗實線圓繪製,直徑為14mm。詳圖與被索引的圖樣同在一張圖紙內時,應在符號內用阿拉伯數字註明詳圖編號(圖3-4b)。如不在同一張圖紙內,可用細實線在符號內畫一水平直徑,在上半圓中註明詳圖編號,在下半圓中註明被索引圖紙號.(四)指北針
指北針(圖3-5)用細實線繪製,圓的直徑宜為24 mm。指針尖為北向,指針尾部寬度宜為3mm。需用較大直徑繪指北針時,指針尾部寬度宜為直徑的1/8。
4.常用建築材料圖例



