簡介
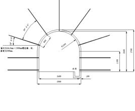
巷道剖面圖(mine working vertical section)是指按剖面的跡線用規定符號繪成的礦山巷道和礦體特徵圖形。它是礦圖的一種。剖面一般選在與礦體走向或主要平巷相垂直的位置。某些剖不到和剖不完全的部分,但屬重要內容,且又靠近剖面的,可採用部分投影法,使其顯示在剖面上。剖面圖反映從平面圖和縱投影圖上看不到的部分,反映地質構造和礦體在垂直方向的形態和相互關係。剖面圖用於探礦、采準、炮孔設計和編制採掘計畫。平面圖是繪製剖面圖的基礎,平面圖與剖面圖相互轉繪時首先要確定基準線,基準線稱為準線。準線要標在平面圖和剖面圖上 。
巷道剖面圖的測繪
在煤礦生產過程中,由於井下巷道設計、設備安裝等需要,經常進行已有巷道剖面圖的測繪。傳統的測繪方法是採用水準儀測量高差配合鋼尺量距或採用經緯儀測豎直角配合鋼尺量距,操作繁瑣,數據量大。防爆型全站儀的廣泛套用,解決了繁瑣的操作過程,但剖面圖的繪製仍比較繁瑣。利用全站儀快速測量距離和高差的特性,對測量數據進行簡單處理,結合CAD直接讀取測量數據,實現剖面圖的半自動化繪製,進一步提高了繪圖效率 。
總結
(1)巷道剖面圖及大樣圖為礦井生產中極為常用的圖件,是各種生產環節分析過程中的必備圖紙,採用本文所介紹方法現場採集數據時簡便易行,不易出錯,節省了大量的現場時間,避免了耽誤生產的時間。
(2)巷道剖面圖及大樣圖繪製方法一般採用AutoCAD使用偏移、註記等命令,麻煩且極容易出錯,採用該方法簡便、易行實現了圖件的自動繪製,且保證的圖件的準確,為生產提供了可靠的參考資料 。

