基本簡介
這是上海世博會“太空家園館”夜景效果圖由中國航天科技集團公司、中國航天科工集團公司、中國電子科技集團公司共同籌建的“太空家園館”,將通過天-地-人的展示脈絡,劃分為夢想起源、漫步太空、美好家園三個展示區域,為觀眾展示中國航天人的探索精神,以及航天技術發展套用對人類生活的貢獻;並將回歸地球的航天技術與電子科技相結合,展現在航天技術和電子技術的引領下,綠色、安全、智慧型化的未來家園。
作為“太空家園館”的牽頭單位,航天科技集團公司副總經理吳卓表示, “太空家園館”是開展國際交流合作,擴大企業國際影響力的重要平台。在後續的建設實施過程中,將與航天科工、中國電科集團合作,在資金、審批、人員等方面給予充分保障,把“太空家園館”建設成為上海世博會期間最具特色、最具吸引力的展館之一。
太空家園館,建築面積4000多平方米,該館為航天科技和電子科技科普館,主題為“和諧城市,人與太空”,目前正在緊鑼密鼓地建設中。太空館正式運行後,將由航天科技八院入駐接手日常太空館內的設備維護、VIP客人接待、內容講解、保全保潔等工作,事務非常煩瑣,工作量非常大。世博會期間,國內外政要貴賓多,接待規格高。因此,必須認真做好接待服務和保障工作,確保萬無一失。
太空家園館將於2009年4月份進入試運行階段。試運行前期,航天科技八院將在院內外招募200多人的志願者隊伍,為世博會服務,為太空館服務。為了提高志願者的綜合素質和業務能力,還將對志願者進行專業培訓,以便使志願者儘快進入角色,融入世博,全心全意做好世博會的接待和服務工作。
隨著世博會來臨的倒計時,航天科技八院感到壓力和責任的重大。該院 表示,一定要堅決回響上海市委、市政府提出的辦一屆“成功、精彩、難忘的世博會”的號召,以出色的世博成績展示航天人的良好形象,為航天人爭光添彩。
奠基儀式
嘉賓為“太空家園館”奠基2009年5月26日舉行的太空家園館奠基儀式上,太空家園館將圍繞“和諧城市,人與太空”的主題,運用互動體驗手段,展示中國航天的輝煌成就和電子科技的先進技術。
國務院國資委副主任黃淑和,上海市委常委、常務副市長、上海世博會執委會常務副主任楊雄,上海世博會執委會專職副主任鍾燕群,國務院國資委外事局副局長姜維亮,上海世博會事務協調局副局長黃健之,中國航天科技集團公司副總經理吳卓,中國航天科工集團公司副總經理高紅衛,中國電子科技集團公司科技委副主任趙正平等出席了奠基儀式。
黃淑和表示,舉辦上海世博會,是黨中央、國務院作出的一項重大決策,意義深遠,影響巨大。中央企業以高度的責任感和使命感積極參與上海世博會的籌辦工作,目前已有12家中央企業確認承建6個企業館。“太空家園館”將通過天-地-人的展示脈絡,展現航天技術發展對人類的貢獻,以及綠色、安全、智慧型化的未來家園。
楊雄在致辭中指出,上海世博會組織者將進一步把每項工作做深、做細、做實,為包括太空家園館在內的各參展方提供全面、高效的服務。同時,也希望太空家園館的項目團隊繼續努力,按計畫推進工作,把太空家園館打造成上海世博會的亮點之一。通過對“和諧城市,人與太空”這一主題的生動詮釋,展現人類對未來太空生活的美好暢想。
設計方案
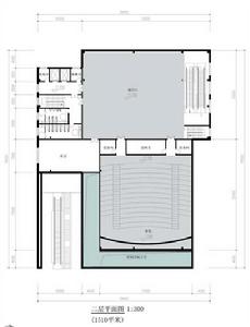
布局與功能分區一、項目概述
上海世博會太空家園館項目地塊位於浦西D片區D11街坊內,D11街坊由局門路、龍華東路以及D片區東側邊界圍合而成。太空家園館位於街坊西北部,高架平台北側,展館所在地塊面積3000平方米;距浦西世博軸約400米,距黃浦江岸線約300米。該項目用地性質為臨時性博覽建築。
二、構思理念
上海世博會的主題是:城市,讓生活更美好。太空家園館展的覽主題為“和諧城市,人與太空”。在建築構思理念上我們遵循概念方案“太空魔方”的設計成果,在此概念基礎上加以深化與可行性設計。企業館設計來源於“科技感”,“能量”,“空間”;以浩瀚、神秘的宇宙為背景,以先進的科技為依託,提煉出簡練的造型語言,就像是太空飄來的散發著奇幻色彩的神秘魔方,懸浮在空中,以異型的支柱與輕盈的透明盒子與地球接觸,形成一種擺脫重力的效果。
三、布局與功能分區
建築首層半架空的結構下,是觀眾排隊等待空間,與自然的遮陽、遮雨效果合二為一;半透明的異型支柱,中間是展品的展示平台。企業館的夾層設計為VIP區域和企業館運營工作空間。在上海世博會期間需要接待特殊訪客,設計過程中在建築的西北側合理的劃分出用以接待特殊訪客的VlP區域。VlP區域設有單獨的出入口,並且從VlP區域可直接到達展廳參觀,與主要參觀人流分離。企業館運營工作空間能夠為展覽提供便捷的服務,利用影院階梯低下的夾層空間,與VIP區域非常接近,有便捷通道通往VIP區域。
四、交通流線
在交通流線的設計中,合理的分流人群,分別設有:主要參觀人群的出入口,緊急逃生的室外出口,VIP區域的出入口等,能夠做到互不交叉、互不影響。在企業館的四周設有一條隱形車道,既滿足建築消防的需要,又為VIP等特殊人群的參觀提供了便利。
五、景觀綠化
管區內設定了大量的小尺度環境景觀,與主景觀系統相互滲透融合。在屋頂設定屋頂綠化系統,既與管區景觀協調,又能體現生態建築的特點。
六、建築材料
太空家園館為臨時性博覽建築,立面材料代表了它最具表現力的因素,因此建築材料的選擇應以效果表現為主,適當考慮材料的經濟性與回收與再利用。如何將平淡的立面處理為生動而又獨特的效果?我們選擇纖維織物幕牆作為企業館的外立面裝飾材料。
景觀綠化展示圖1、纖維織物幕牆
纖維織物幕牆是一種新穎、獨特的建築材料。採用100%可回收再生的纖維複合材料,它的特性是自然多樣性,本身材料的柔軟與彈性使它具備了柔軟流暢的特質,一旦在框架內張拉後,它變得堅固結實,如同膜結構一樣,能夠抵抗狂風暴雨的襲擊。
2、造型靈活
織物幕牆的彈性與結構起伏相吻合,塑造建築立面,在雕塑感和建築間相互轉換。自由的形體變化是其它材質無法達到的。
3、良好的立面效果
織物幕牆通過三維的電腦噴繪可呈現神秘奇幻的光影效果,白天奇幻的建築形態吸引人流,夜晚內部自發光形成地標建築,因其獨有的通透性,夜晚採用彩色LED燈配合,發光的企業館會散發出絢麗的色彩,改變建築物夜間的形象,把觀眾的吸引力里引向企業館。充滿神秘與未來感,自由的形體,體現太空和美好家園的雙重概念。
4、性價比高
纖維織物幕牆性價比極高。通過處理可達到與金屬相同的效果,織物幕牆相對於金屬材料來說非常便宜。
5、與牆體固定簡單
因纖維織物幕牆自重很輕,與牆體的固定節點可以做得很纖細,(材料+結構的重量低於5 公斤/平米),成熟的節點構造使得施工極為簡單。
七、展後建材的回收與再利用
在建築的結構上我們優先採用可循環使用的鋼結構作為主結構體系,包括二層架空的樓板也採用鋼結構進行首二層上下對應的設計,極大地減薄結構的厚度,並且避免了用混凝土作為轉換層笨重而又難以拆除的問題。建築的外立面我們採用環保並且可回收利用的纖維織物幕牆作為裝飾材料,這種材料便於拆裝,回收後的材料可重新運用於工業生產,可以循環利用。展後可用於其它建築,製作廣告,因其有透光性的特點,不影響建築採光。
八、經濟技術指標
總用地面積:3000平米,總建築面積:2980平米,期中:首層建築面積: 620平米,夾層建築面積:850平米,二層建築面積:1510平米,容積率:0.99建築,高度: 20米,建築層數:2層(含夾層),屋頂綠化覆蓋率:30%
展示方案
太空家園館效果圖上海世博會“太空家園館”的展示方案將使科技藝術情感化、視覺化、通俗化,達到最佳的教育和記憶方式。2009年6月8日,中國航天科技集團公司、中國航天科工集團公司、中國電子科技集團公司在聯合召開的“太空家園館”展示方案匯報會上,就基本的展示方案達成了共識。
中國航天科技集團公司總經理馬興瑞、副總經理吳卓,中國航天科工集團公司副總經理高紅衛,中國電子科技集團公司黨組書記樊友山、科技委副主任趙正平出席了會議。項目總策劃與展示方案設計單位、建築設計單位的代表也一併出席會議。
會上,由3家業主單位成立的聯合參展辦公室,介紹了“太空家園館”項目的基本籌備情況以及下一步工作計畫。項目總策劃與展示方案設計單位、建築設計單位,匯報了展示方案。
聽完匯報,馬興瑞代表3家業主單位表示,“太空家園館”的建設既是一項政治任務,又是一次企業形象的展示。要緊扣“城市,讓生活更美好”的世博會主題和“和諧城市,人與太空”的展館主題,從整體著眼,立足大未來,將內容做精,抓住核心點,形成吸引力,真正做到讓觀眾將感動和記憶帶走。
藝術風格
太空家園館效果圖太空家園館設計效果圖外觀以浩瀚的宇宙為背景,仿佛是太空飄來的神秘魔方懸浮在空中,以異型的支柱與地面輕盈連線,形成一種擺脫重力的效果……這就是由中國航天科技集團公司、中國航天科工集團公司、中國電子科技集團公司共同籌建的2010年上海世博會太空家園館。
近年來,神舟飛船、嫦娥工程等航空航天領域的突破,顯示了中國航天科技和電子科技發展的輝煌成就。而承擔著國防軍工建設重任的航天科技、航天科工和中電科技集團無疑是其中的中堅力量。作為太空家園館的牽頭單位,中國航天科技集團公司副總經理吳卓表示,上海世博會“太空家園館”的建設,不僅可以向世人展示我國航天事業的輝煌成就和電子科技的先進成果,還是開展國際交流合作、擴大企業國際影響力的重要平台。在建設實施過程中,他們將與航天科工、中國電科集團合作,在資金、審批、人員等方面給予充分保障,把“太空家園館”建設成為上海世博會期間最具特色、最具吸引力的展館之一。
太空家園館的設計靈感來源於“科技感”、“能量”和“空間”。以浩瀚、神秘的宇宙為背景,以先進的科技為依託,提煉出簡練的造型語言,就像是太空飄來的散發著奇幻色彩的神秘魔方,懸浮在空中,以異型的支柱與輕盈的透明盒子與地球接觸,形成一種擺脫重力束縛的形態。在上海世博會,上海航天局參與建設的項目包括一個兆瓦的太陽能系統,以及燃氣的調壓站。
圍繞“和諧城市,人與太空”的主題,太空家園館將運用互動體驗手段,精彩展示中國航天的輝煌成就。該館將通過天—地—人的展示脈絡,劃分夢想起源、漫步太空、美好家園的展示區域,展示中國航天人的探索精神以及航天技術對人類生活的貢獻。展館內不僅有中國航天人在太空領域的探索和開發,以及航天技術發展套用對人類生活貢獻的展示,同時還將回歸地面,展現在航天技術和電子技術的引導下,綠色、安全、智慧型化的未來家園勝景。展館方有關人士表示,太空家園館的具體展示內容還在構想和計畫之中,更多的細節會隨工程進展陸續公布。 [3]
2010上海世博會展館一覽
2010年上海世博會展館一覽
![]() | ![]() | ![]() |
| 中國國家館(東方之冠) | 日本國家館(紫蠶島) | 沙特國家館(阿拉伯之城) |
![]() | ![]() | ![]() |
| 加拿大國家館 | 巴基斯坦國家館(拉合爾古堡) | 阿聯國家館(沙丘) |
![]() | ![]() | ![]() |
| 德國國家館(和諧都市) | 挪威國家館 | 荷蘭國家館(快樂街) |
![]() | ![]() | ![]() |
| 紐西蘭國家館 | 以色列國家館(海貝殼) | 芬蘭國家館(冰壺Kirnu) |
![]() | ![]() | ![]() |
| 泰國國家館 | 奧地利國家館 | 捷克國家館 |
![]() | ![]() | ![]() |
| 俄羅斯國家館 | 美國國家館 | 瑞士國家館 |
![]() | ![]() | ![]() |
| 瑞典國家館 | 新加坡國家館 | 韓國國家館 |
![]() | ![]() | ![]() |
| 比利時國家館 | 巴西國家館 | 英國國家館(創意之館) |
![]() | ![]() | ![]() |
| 印度尼西亞國家館 | 智利國家館(新城市的萌芽) | 馬來西亞國家館 |
![]() | ![]() | ![]() |
| 愛爾蘭國家館 | 澳門館(玉兔宮燈) | 香港館(無限空間) |
![]() | ![]() | ![]() |
| 海南館 | 廣西館 | 河北館 |
![]() | ![]() | ![]() |
| 湖南館(桃花源里) | 陝西館 | 青海館 |
![]() | ![]() | ![]() |
| 重慶館 | 四川館 | 河南館 |
![]() | ![]() | ![]() |
| 浙江館 | 台灣館 | 世界氣象館 |
![]() | ![]() | ![]() |
| 民企聯合館 | 上海世博會中國船舶館 | 太空家園館 |
![]() | ![]() | ![]() |
| 國家電網企業館 | 上汽-通用汽車館 | 石油館 |
![]() | ![]() | ![]() |
| 日本產業館 | 上海企業聯合館(魔方) | 震旦館 |
![]() | ![]() | ![]() |
| 非洲聯合館 | 丹麥國家館 | 法國國家館 |
![]() | ![]() | ![]() |
| 義大利國家館 | 冰島國家館 | 太平洋聯合館 |
![]() | ![]() | ![]() |
| 盧森堡國家館 | 墨西哥國家館 | 土耳其國家館(火柴盒) |
![]() | ![]() | ![]() |
| 波蘭國家館 | 尼泊爾國家館(寺廟之城) | 委內瑞拉國家館 |
![]() | ![]() | ![]() |
| 貴州館 | 內蒙古自治區館 | 黑龍江館(夢幻冰城) |
![]() | ![]() | ![]() |
| 寧夏館 | 萬科館 | 信息通信館 |
![]() | ![]() | ![]() |
| 中國航空館 | 國際紅十字與紅新月館 | 阿曼國家館 |








































































