基本信息
社區實景行政區域: 崇川區
項目位置: 工農南路128號新城大橋下
交通狀況: 13、22、30、31、37、38、301路移動公司站下
建築類型: 高層
物業類別: 寫字樓
開發商: 南通天寶置業有限公司
詳細信息
戶型圖產權年限: 70年
產權類型: 大產權房
容積率: 3
綠化率: 32%
建築面積: 50000平方米
占地面積: 11000平方米
價格信息
天寶國能中心價格:均價15000元/平米
售賣信息
售樓處售樓地址: 新城小區北門往東100米
開盤時間: 2012-4-23
入住時間: 2012年底
銷售許可證: [2012]018
項目介紹
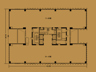
戶型圖天寶國能中心與萬餘平米的海港引河沿岸市政綠化景觀相鄰,由主樓(地下2層,地上24層)與3層裙房構成,集酒店、辦公、商業於一體:低層區(含裙樓)規劃有精品酒店,為商務人士提供多種尊崇服務,營造最佳社交、休閒環境;中高層區為5A智慧型化辦公區域,超大辦公空間氣派非凡,完全貼合中大型企業辦公需求;也可自由分割、組合,為成長型企業量身打造;空中花園與樓頂花園提供完美休閒觀光平台,6部高速電梯,雙層地下停車場,新型隔熱隔聲玻璃幕牆,為入駐企業提供完美的“公園化”的商務空間。

