固定噴淋裝置 (LTSPL型)
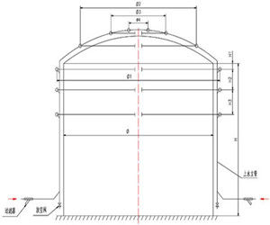
LTSPL-G型拱頂罐噴淋裝置一、產品簡介
LTSPL型固定噴淋裝置油罐上裝設的一種水冷卻降溫設施。在夏天氣溫高的時候,對地面油罐不斷均勻地進行噴淋水冷卻,水由罐頂經罐壁流下,使冷卻水帶走油罐所吸收的太陽輻射熱,降低油罐氣體空間溫度,使晝夜油麵溫度變化幅度減小,大大減少油罐小呼吸損耗。
LTSPL型固定噴淋裝置採用新材料、新製作工藝(全部採用20#流體用無縫鋼管制造,製造完工後整體熱浸鍍鋅),因而有效提高產品使用壽命,使用壽命可達20年以上,極大的降低了主成本。因此至產品投效市場以來深受廣大用戶喜愛。為使產品規範化、系列化、標準化,特制定該企業標準。
二、適用範圍及防腐標準
適用範圍:LTSPL型固定噴淋裝置適用於石油化工行業閃點高於60℃的液體火災及甲、乙、丙類液體和易燃氣體儲存裝置的防護冷卻。
防腐標準: GB/T 13912—2002 金屬覆蓋層 鋼鐵製件熱浸鍍鋅層技術要求及試驗方法檢驗標準: GB 50235—1997 工業金屬管道工程施工及驗收規範 GB 50236—1998 現場設備、工業管道焊接工程施工及驗收規範 。
三、型號及意義
型號及意義說明:如一台5000m3固定噴淋裝置,其工作壓力要求1.0MPa,其型號為LTSPL-5000-1.0
四、基本參數
1、噴頭工作壓力為0.35Mpa
2、供水強度為9L/min.m;
3、供水流速不大於3m/S;
4、供水閥前應設定過濾器,孔目數為40目
5、管道之間用法蘭連線;
6、用戶可根據實際情況定噴頭參數、供水強度、供水路數和層數,我方可重新設計;
五、訂貨需知
1、選擇與儲罐相符合的產品型號;(我公司噴淋裝置的產品有:LTSPL-G型拱頂罐噴淋裝置、LTSPL-Q型球罐噴淋裝置、LTSPL-F型浮頂罐噴淋裝置及各種塔器噴淋裝置)
2、訂貨單位為製造商提供儲罐噴淋系統安裝方位示意圖;
3、訂貨單位為製造商提供噴頭所需流量、壓力、噴灑角度、相應管道壓力、消防泵參數等數據;
4、訂貨單位為製造商提供罐盤梯方位示意圖
六、球罐噴淋裝置相關技術參數表
LTSPL-Q型球罐噴淋裝置技術參數表
