百科概述
實景圖小區名稱:【武漢】名流·人和天地
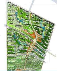
小區介紹:“名流·人和天地”項目總規劃用地約3400畝,開發商武漢名流地產有限公司系出名門,其集團公司名流置業項目遍及北京、深圳、武漢、西安、昆明等地,2004年度被《證券時報》及中國住交會評選為“中國房地產上市公司20強”。公司自2003年進入武漢來,對“名流·人和天地”項目的規劃設計歷經反覆修改,終於形成了首期1000畝的規劃定案。 首期1000畝中,產品涵蓋普通住宅、聯排別墅及獨體別墅多種類型,同時還有商業網點、幼稚園、國小、醫院、酒店辦公等公共配套,居住人口約1.1萬人,名副其實的是一個“新都市”。目前一期200畝建築面積約17.3萬㎡,產品在定位上針對區域市場以別墅類物業為主,普通住宅供應缺乏這一情況,項目物業類型均為多層,戶型從90㎡的二室到200㎡以上的複式有較多的選擇。 在規劃設計上,“尊重土地”為規劃設計的靈魂。對地形的充分利用,對地貌的原始保留,對生態的自然維護,成為名流?人和天地規劃設計的方向標。經歷了無數次的推敲、辯論、修改,天地布局始定,“一軸雙環三橫五縱六區”的架構大氣磅礴,渾然天成。 在建築設計上,淺灰、藍青的主色調,傳承中國傳統建築的神韻。底層籬笆院落,小空間布局的分割組織,拉近人與人之間心靈的距離。雕花憑欄,現代材質與傳統圖案相碰撞,多了親情,少了阻隔。承襲中國傳統的窗花,讓居住者感覺最適宜的空間尺度。線條流暢的天溝挑檐,如翼輕展,化靜態為動態,用巧妙的傳統技藝打破現代建築的幾何思維。名流?人和天地,建造具有中國精神的房子,用現代中國式的建築,強調環境的平和、人性的含蓄,與中國傳統精神一脈相承。 在景觀設計上,以自然為藍本,獨有的“同心雙環水系”,蜿蜒環繞六大組團,把水的靈性融入自然景觀中,重新詮釋著現代人對“水文化”的理解……名流?人和天地“活水之源”的景觀主題讓居住者細細品位“水中有道,養護我心”。 在社區服務上,名流?人和天地並不是通常意義上的簡單物業管理服務,而是以先進文化理念為支撐,以滿足居住者心靈深處對文化渴求的服務創新和嘗試。在這裡:幼有所長的少年學市讓孩子在玩耍中積累更多的人生閱歷。一品堂下的成熟人生有形式多樣的聚會,總能讓社區一群新老朋友找到一些共同的話題,從推心置腹的話語中領悟到人生的哲理。養生軒里頤養天年,老年人的生活可以退而不休,讓老人的生活悠閒自得。 “和諧人居”的最終真諦在於,人們在精神與物質、傳統與現代之間找到一種居住平衡,名流?人和天地給現代中國式人居一個可以持續的未來……
小區信息
實景圖行政區域:黃陂
區域板塊:盤龍城
小區地址:黃陂區盤龍城經濟開發區楚天大道特1號
物業類型:普通住宅;
建築類型:小高層;高層;多層
物業費:0.90元/月/
詳細信息
實景圖建築面積:218720.36
占地面積:628314
容積率:1.1%
綠化率:41.2%
樓層狀況:共2216套,小高層;高層;多層
車位總數:460
總戶數:2216
開發商:武漢名流地產有限公司
物業公司:武漢五星物業管理公司
