基本信息
社區實景行政區域: 都江堰
項目位置: 都江堰市青城山鎮大三路2號太平鎮旁106旅遊專線邊
交通狀況: 公交狀況:101、102路軌道交通:成灌高鐵
建築類型: 獨棟別墅
物業類別: 別墅
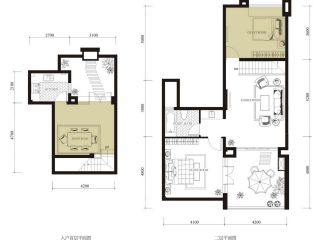
主力戶型: 175平米
開發商: 四川興龍湖地產發展有限公司
物業費: 疊院5元/月/平米,獨院6元/月/平米
詳細信息
戶型圖產權年限: 70年
產權類型: 大產權房
開工時間: 20100101
容積率: 0.5
綠化率: 45%
總戶數: 701
建築面積: 100000平方米
占地面積: 210000平方米
周邊配套
周邊配套周邊配套: 文:幼稚園、國小、中學、大學教育配套齊全
體:東軟運動設施
衛:都江堰市各大醫院 。
商:自由商業、青城山鎮配套商業
其它:青城山、街子古鎮、高爾夫、毫生酒店等
車位費: 全為集中式車位,只租不售,約50-60元/位/月,也可分次計費
車位數: 地上車位數:530
價格信息
龍湖小院青城價格:起價8550元/平米
售賣信息
售樓處售樓地址: 都江堰市青城山鎮大三路2號(太平鎮旁,106旅遊專線邊)
開盤時間: 2012年7月
入住時間: 2012年12月
銷售許可證: 1058、1052、1039
項目介紹
樣板間龍湖物業針對小院青城度假別墅做了不同的設定,項目以專屬度假物業顧問為基礎,提供星級酒店式服務,解決業主度假入住的後顧之憂。同時還包括代租售等,實現物業持續產生經濟效益!

