概述
長陽漢墓長陽漢墓位於北京市房山區東北部,距長陽鎮2.5 公里,西為京石高速公路(圖一)。2011 年6 月,北京市文物研究所對北京市土地整理儲備中心房山區分中心住宅項目建設施工過程中,發現的3 座墓葬進行了搶救性發掘,現將發掘情況簡報如下。
墓葬形制
M1 位於發掘區的中西部,西鄰M2。南北向,方向178°,開口於④層下。墓口距地表深5.5 米,墓底至墓口深1.18 米。平面呈刀把形,為豎穴土壙磚室墓。由墓道、墓門、墓室三部分組成,通長5.7 米(圖二)。
墓道
位於墓門南部。平面近長方形, 南北長2.64 米, 東西寬0.87 ~ 0.92 米。底呈緩坡狀,深0.8 ~ 1.06 米。內填花土,土質稍硬。
墓門
位於墓道北部,與墓室相連。頂部殘,東西僅殘存兩層壁磚。門寬1.1 米, 進深0.28 米,殘高1 米。用青磚一順一丁砌制而成。用磚規格0.28×0.14×0.05 米。墓門外側封門磚用整磚和殘磚呈橫"人"字形封堵,殘存封門磚7 層,高0.96 米。
墓室
長陽漢墓位於墓門北部。平面呈長方形,南北長3 米,東西寬2.74 米。券頂被破壞,僅殘存四壁,用青磚一順一丁、二順一丁砌制而成。殘高1.06 ~ 1.12 米。
墓底用青磚二平二丁平鋪。未發現骨架及葬具。用磚規格0.28×0.14×0.05 米、0.26×0.12×0.05 米。隨葬陶甑2 件、陶雞2 件、陶奩1 件、陶豬圈1 件、陶豬1 件、銅錢5 枚。
墓道
位於墓門南部。平面近長方形, 南北長2.54 米, 東西寬0.84 ~ 0.93 米。底呈斜坡狀, 坡長0.65 米, 深0 ~ 0.84 米。內填花土,土質稍硬。
墓門
位於墓道北部。券頂被破壞, 門寬0.86米, 進深0.28 米, 殘高0.84 米。兩壁用青磚一順一丁、二順一丁砌制而成。封門用青、紅磚殘塊混合呈"人"字形砌制,高0.85米。
前室
長陽漢墓位於墓門北部,與雙後室相連。平面近正方形, 南北長2.16米, 東西寬2.16 米。四壁用青磚一順一丁、二順一丁砌制而成, 殘高0.6 ~ 0.84 米。未發現葬具,骨架僅殘存部分下肢骨。底部用青磚二平二丁平鋪。內填花土,土質鬆軟。 東後室:位於前室的東北部。平面呈長方形,南北長1.68 米,東西寬0.82 米。四壁用青磚一順一丁、二順一丁砌制而成,殘高0.2 ~ 0.72 米。底部用青磚殘塊錯縫平鋪。墓室前端甬道門東西寬0.5 米,進深0.8 米,頂部被破壞。西壁中部未砌磚,東壁與墓室東壁砌磚方法相同,殘高0.65米。未發現葬具及骨架。
西後室
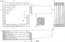
長陽漢墓位於前室西北部,與東後室間距為0.25 ~ 0.33 米。平面呈長方形,南北長1.98 米,東西寬1.02 米。四壁用青磚一順一丁、二順一丁砌制而成。殘高0.42 ~ 0.82 米。底部用青磚殘塊錯縫平鋪。
墓室前端甬道門東西寬0.82 米,進深0.9米,頂部被破壞,東壁中部砌磚方法與墓室東壁砌磚方法相同,西壁與墓室西壁砌磚方法相同,殘高0.44 ~ 0.58 米。用磚規格0.28×0.14×0.05 米。隨葬銅錢10 枚。M3 位於發掘區的中西部,東鄰M2。南北向,方向173°,開口於④層下。墓口距地表深5.5 米,墓底至墓口深1.3 米。平面呈刀把形,為豎穴土壙磚室墓。由墓道、墓門、墓室三部分組成,通長6.1 米(圖四)。
墓道
位於墓門南部。平面呈長方形,南北長2.56 米,東西寬0.7 ~ 0.75 米。底呈斜坡狀,坡長2.1 米,深0 ~ 1.3 米。內填花土,土質稍硬。
墓門
位於墓道北部,北與墓室相連。券頂被破壞,門東西寬1.1 米,進深0.28 米,殘高0.94 米。用青磚一順一丁、二順一丁砌制而成。封門磚牆用紅磚內、外雙層平砌而成,內層封門磚牆殘高0.22 米,外層封門磚牆殘高0.38 米。
墓室
位於墓門北部。平面呈長方形,南北長3.02 米,東西寬1.4 米。券頂被破壞,僅殘存四壁,用青磚二順一丁、一順一丁砌制而成。殘高0.94 ~ 1.3 米。墓室北部置一生土器物台,東西長0.34 米,南北寬0.4 米,高0.35 米。墓室內發現人骨架2 具,均頭北足南;東側骨架為仰身直肢,西側骨架為側身屈肢,背向東側骨架。墓底用青磚殘塊無序錯縫平鋪。用磚規格0.28×0.14×0.05 米。隨葬陶盤1 件、銅環10 枚、銅錢2 枚。
隨葬器物
3座墓葬因破壞嚴重,出土器物較少,器類有陶器、銅器,總計19 件(所出銅錢按1 件計),分別介紹如下:
陶器
共有陶器8 件,有奩、盤、甑、雞、豬圈、豬。
長陽漢墓奩 1 件。M1:6,泥質灰陶。直口,方唇,直壁,平底,象鼻狀三足。外壁上下各飾一道凹弦紋。口徑19.8、通高10.2 厘米(圖五,1)。
盤 1 件。M3:3,泥質紅褐陶。敞口,平沿,圓唇,斜腹下部折收,平底。內壁及內底飾凸弦紋二道,通體留有輪旋痕。口徑21.2、底徑17.2、高3.8 厘米( 圖五,2)。
甑 2 件。泥質灰陶。侈口,寬平沿,尖圓唇,斜弧腹,小平底,底部有鏤孔6 個。M1:2,口徑7.2、底徑2.5、高5.2 厘米(圖五,3)。M1:3,口徑7.2,底徑2.4,高5.2厘米(圖五,4)。
雞 2 件。泥質灰陶, 手模兼制。M1:4,面部模糊不清,短嘴高冠,豎高頸,尾上翹略殘,體羽紋理不清,底座呈半圓形。腹部遺有二指壓痕。殘長11.5、通高10.8厘米(圖五,5)。M1:5,面部模糊不清,尖嘴高冠,豎高頸,尾上翹,底座呈半圓形。長12.7、通高11 厘米(圖五,6)。
長陽漢墓豬圈 1 件。M1:8,泥質灰陶。近圓形,方唇,直壁,平底,口沿上部一角置一長方形斗式漏食孔,一角以方形立柱支撐。口徑20.8、底徑21、通高8.2 厘米(圖六,1)。
豬 1 件。M1:7,泥質灰陶,手制。短嘴,張口,上唇翹起,小耳貼於頸部,眉目不清,鬃毛聳立,卷尾殘,四肢粗短作站立狀。通長9.5、高5.6 厘米(圖六,2)。
銅器
長陽漢墓共有銅器10 件,均為銅環。
銅環 10 件。圓形。標本M3:2-1,截面呈半球狀,
銅錢
出土銅錢17 枚,有五銖、大泉五十兩種。
長陽漢墓五銖 11 枚。圓形,方穿,正反面有郭,正面篆文"五銖"二字,"五"字交筆彎曲;"金"字上部呈"△"形,四點均豎筆。標本M1:1-1,"朱"字上部直折,下部圓折。直徑2.57、穿徑1.05 厘米(圖七,1)。標本M1:1-2,"朱"字上部直折,下部圓折;上部置一圓形孔,孔徑0.02 厘米。錢體直徑2.5、穿徑0.95 厘米(圖七,2)。標本M1:1-3,"朱"字上下部直折。直徑2.6、穿徑1 厘米(圖七,3)。
標本M1:1-4,"朱"字上下部圓折。直徑2.5、穿徑1 厘米(圖七,4)。標本M2:1-3,"朱"字上部直折,下部圓折。直徑2.55、穿徑0.95 厘米(圖七,7)。標本M2:1-4,"朱"字上下部圓折。直徑2.4、穿徑0.9 厘米(圖七,8)。大泉五十 6 枚。圓形,方穿,正反面有郭,正面篆文"大泉五十"四字,"大"字橫筆彎曲,撇捺為豎筆,"泉"字豎畫有斷筆,"五"字交筆彎曲,"十"字橫豎為直筆。標本M2:1-1,直徑2.65、穿徑0.75 厘米(圖七,5)。標本M2:1-2,直徑2.5、穿徑0.7 厘米(圖七,6)。
結 語
此次發掘的3 座墓葬,均為刀把形豎穴土壙磚室墓。其中,M1、M3 為單室墓,其形制與北京近年來在房山南正①、大興亦莊②、豐臺王佐③等發掘的同類漢墓相近;隨葬陶器如奩、盤、甑、豬圈等都是東漢時期墓葬常見器形,雞、豬等動物俑在東漢晚期已很盛行。M2 為雙室墓,北京地區帶有前、後室的磚券墓出現在東漢中期④。墓中所出"大泉五十"為新莽時期通行貨幣中流通時間最長、鑄量最大的貨幣,但出土的"五銖"錢"五"字交筆彎曲,"金"字上部呈"△"形,四點均豎筆,"朱"字下部直折或圓折,則具有東漢中晚期銅錢的典型特徵。綜上推斷,該批墓葬年代應為東漢中晚期。此外,3 座墓葬均結構簡單,墓葬規模較小,表明墓主人身份、地位不高。
此前曾在該區域發掘過3 座墓葬⑤,與本次清理墓葬年代相當。該批墓葬的發掘,為北京地區漢墓的考古學研究增添了新的實物資料。
① 北京市文物研究所:《房山南正遺址--拒馬河流域戰國以降時期遺址發掘報告》,科學出版社,2008 年。
② 北京市文物研究所:《北京亦莊考古發掘報告(2003 年~ 2005 年)》,科學出版社,2009 年。
③ 北京市文物研究所:《豐臺王佐遺址》,科學出版社,2010 年。
④ 北京市文物研究所:《北京考古四十年》,北京燕山出版社,1990 年。
⑤ 北京市文物研究所:《房山長陽1 號地漢墓》,《文物春秋》2010 年第2 期。

