ZBH型變頻給水設備按其結構形式可分為三大系列,總計近千種型號(定型標準規格產品)。各系列產品還可有多種控制功能和配置的擴展以及不同的使用方法。從而可滿足幾乎所有的全自動供水領域的所有的客戶需求。
Z系列產品(整體結構式)
新型全自動變頻給水設備,電機泵組與氣壓罐形成供水設備總成。小型機電一體化產品,特別適用於辦公樓、住宅、各類場館等典型的間歇性供水流量場合。在流量很小或為零時,水泵停機。由氣壓罐維持管網壓力,保證隨時提供所需的水量和壓力。供水流量:<3*25M3/h
供水壓力:<80MH2O(ISG單級離心泵)
<160MH2O(GDL多級離心泵)
配泵台數:<4如(不含穩壓泵)
F系列產品(組合結構式)
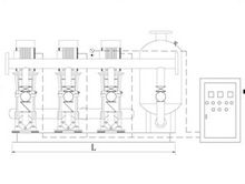
新型全自動變頻給水設備,可配有較大的氣壓罐,組合式結構,具有廣泛的適用性,高度的靈活性,和較好的可靠性。有一定的氣壓供水能力,因而適用性更強,整機性能更為可靠。組合式結構設計,現在安裝布局方便靈活,泵組與氣壓罐電機泵組與氣壓罐既可集中安裝,也可分散安裝(不在同一泵房)對配套各種潛水電泵、深井潛水電泵等也照樣適用。供水流量:<4*50M3/h
供水壓力:<125MH2O(ISG單級離心泵)
<160MH2O(GDL多級離心泵)
配泵台數:<4如(不含穩壓泵)
M系列產品(電機泵組總成)
採用現代電氣控制技術的恆壓供水泵站設備,其使用的方便性、控制的合理性和節能效果、自動化程度等優於傳統泵站設備,特別適用於連續流量的供水場合。供水流量:<4*160M3/h
供水壓力:<125MH2O(ISG單級離心泵)
<160MH2O(GDL多級離心泵)
配泵台數:<4如(不含穩壓泵)
註:配泵台數不含備用泵,訂貨時注意增訂一台備用泵。
設備組成
變頻恆壓給水設備一般由三大部分組成:1)水泵機組組成:配置名優電機,本公司名優水泵、閥門、優質管件,高效節能。
2)氣壓罐,其作用為:
a)氣壓供水
b)停機保壓
c)氣壓罐也是給水機組實現自動起停功能不可缺少的部件。
產品特點
●採用高性能變頻調速器,配備先進的微機控制技術,按需設定壓力,根據用水量的變化自動調節水泵的轉速,實現節能供水。●微機控制每台水泵即可變頻運行,多台泵遞次循環軟啟動,管網、電網無衝擊,延長設備使用壽命。
●全自動運行,不需用人值守,多組水泵根據用水量的變化自動補泵、減泵,定時自動交換運行;採用小流量停機保壓專利技術,在夜間用水量小或不用水時設備會自動停機保壓,進一步節能,用水量增大時,自動開機。
●設備的啟動方式:
(1)自動啟動(2)人工啟動(3)定時自動啟動
●所有的運行數據均可通過現場調試參數來改變。
●設有多組水位控制接口,可以同時控制幾路水位信號,具有超低水位停泵功能。
●保護功能全。過載保護、過壓保護、短路保護、缺相保護、欠壓保護、過熱保護,故障報警等多種保護功能。
●ZBH系列供水設備均帶緩衝器,這樣除具有緩衝的作用,從而大大延長設備的使用壽命。
適用範圍
●普通住宅樓、商住樓、居民小區的生活供水。●高層建築、高級賓館飯店等的生活供水。
●綜合樓、寫字樓、俱樂部等建築物的生活供水。
●各種類型的自來水廠及供水加壓泵站。
●工礦企業的生產、生活供水、恆壓供應的工藝流程用水。
●生活小區、高層建築等的熱水供應系統或熱水採暖系統。
●各種類型的循環水、冷卻水供應系統。
●深水井(深井泵、潛水泵)恆壓供水系統。
●污水處理廠、排水站的自動控制供水系統。
●石油、化工等行業輸送石油及含酸鹼等的液體系統。
