基本分類
按照過濾分類空氣過濾器 使受到污染的空氣被潔淨到生產、生活所需要的狀態,也就是使空氣達到一定的潔淨度。
液體過濾器 使受到污染的液體被潔淨到生產、生活所需要的狀態,也就是使液體達到一定的潔淨度。
網路過濾器 通過設定來阻擋垃圾信息,使出現在電腦螢幕上的信息儘量符合要求。
光線過濾器 把一些不需要的光線吸收掉。
管路過濾器
雙筒過濾器
高壓過濾器
上面說的應該是網式過濾器,其實過濾器還有很多種,譬如疊片過濾器、砂濾器、碳濾器等等,主要原理都是利用過濾介質的孔徑截留比介質孔徑更小的物質,當然有的過濾介質還具有吸附等特殊效果。大多過濾器反洗也沒有那么麻煩,只要用清水從過濾出水的一端導入逆向反衝洗過濾器中的介質就可以達到很好反洗效果。
試驗台過濾器
用於過濾器性能實驗台上面,這種試驗台在試驗前都要對系統嚴格淨化,因此試驗系統和為試驗系統服務的污染注入系統都需配有過濾器,這中過濾器和被試驗的過濾器是兩回事兒,它的精度要求,污物容納量要求要比被試驗的過濾器精度高,為區別同一試驗系統中的兩類過濾器,這種過濾器稱為試驗台過濾器,被試驗的過濾器稱為被試過濾器。
過濾器選型的一般原則進出口通徑:原則上過濾器的進出口通徑不應小於相配套的泵的進口通徑,一般與進口管路口徑一致。
公稱壓力:按照過濾管路可能出現的最高壓力確定過濾器的壓力等級。
孔目數的選擇:主要考慮需攔截的雜質粒徑,依據介質流程工藝要求而定。
過濾器材質:過濾器的材質一般選擇與所連線的工藝管道材質相同,對於不同的服役條件可考慮選擇鑄鐵、碳鋼、低合金鋼或不鏽鋼材質的過濾器。
過濾器阻力損失計算:水用過濾器,在一般計算額定流速下,壓力損失為0.52~1.2kpa
1、油器按其過濾精度(濾去雜質的顆粒大小)的不同,有粗過濾器、普通過濾器、精密過濾器和特精過濾器四種,它們分別能濾去大於100μm、10~100μm、5~10μm和1~5μm大小的雜質。
選用濾油器時,要考慮下列幾點:
(1)過濾精度應滿足預定要求。
(2)能在較長時間內保持足夠的通流能力。
(3)濾心具有足夠的強度,不因液壓的作用而損壞。
(4)濾心抗腐蝕性能好,能在規定的溫度下持久地工作。
(5)濾心清洗或更換簡便。
因此,濾油器應根據液壓系統的技術要求,按過濾精度、通流能力、工作壓力、油液粘度、工作溫度等條件選定其型號。
2、安裝濾油器在液壓系統中的安裝位置通常有以下幾種:
(1)要裝在泵的吸油口處:
泵的吸油路上一般都安裝有表面型濾油器,目的是濾去較大的雜質微粒以保護液壓泵,此外濾油器的過濾能力應為泵流量的兩倍以上,壓力損失小於0.02MPa。
(2)安裝在泵的出口油路上:
此處安裝濾油器的目的是用來濾除可能侵入閥類等元件的污染物。其過濾精度應為10~15μm,且能承受油路上的工作壓力和衝擊壓力,壓力降應小於0.35MPa。同時應安裝
安全閥以防濾油器堵塞。
(3)安裝在系統的回油路上:這種安裝起間接過濾作用。一般與過濾器並連安裝一背壓閥,當過濾器堵塞達到一定壓力值時,背壓閥打開。
(4)安裝在系統分支油路上。
(5)單獨過濾系統:大型液壓系統可專設一液壓泵和濾油器組成獨立過濾迴路。
液壓系統中除了整個系統所需的濾油器外,還常常在一些重要元件(如伺服閥、精密節流閥等)的前面單獨安裝一個專用的精濾油器來確保它們的正常工作。
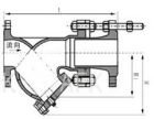
鑄鐵Y型過濾器結構圖
鑄鐵Y型過濾器結構圖
鑄鐵Y型過濾器結構圖 
