原理
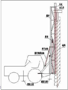
螺旋鑽機螺旋鑽機主要部件是鑽機桅桿立柱,立柱上設有滑道和可上下滑動的減速箱,減速箱接動力輸入軸和動力輸出軸,動力輸入軸的另一端接液壓馬達,動力輸出軸的另一端接鑽桿,鑽桿的下端接鑽頭。鑽機鑽桿的上下運動通過驅動裝置對減速箱的驅動實現,更有利於向下加力快速鑽進;減速箱可沿鑽機框架的滑道上下滑動,保證鑽孔的垂直度;鑽桿為螺旋葉片鑽桿,鑽進時土料可沿葉片返到地面上;動力輸出軸為空心芯軸,芯軸的上口可與混凝土灌注設備連線,進行混凝土灌注。
組成結構
螺旋鑽機螺旋鑽機主要由頂部滑輪組、動力頭、螺旋鑽具、液壓起落桿、操縱室、底盤、行走機構、迴轉機構、卷揚鋼絲繩、桅桿立柱、起弔卷揚機、液壓系統及電氣系統組成。
(1)頂部滑輪組:提升動力頭和鑽桿鑽具滑車組。
(2)動力頭:採用三環減速機構,用作對螺旋鑽具施加鑽壓.改善螺旋鑽具受力工況.成載過載能力高、結構緊湊、噪聲小、壽命長,是目前國內鑽機最理想的動力裝置.由兩個風冷電動機、減速器、彎頭、排氣裝置、提升架和滑塊組成。工作時兩個電動機通過聯軸器帶動減速器的高速旋轉,將動力低速軸通過法蘭帶動螺旋鑽具做旋轉運動。
(3)螺旋鑽具:鑽機成孑L裝置.為螺旋狀鑽桿。
(4)液壓起落桿:起落桅桿的液壓裝置。
(5)操縱室:駕駛作業人員操控各類結構的駕駛室,位於鑽機後部主卷揚機前方,鐵殼結構。三面開窗,可保證視野開闊。
(6)底盤:支承操縱室、行走機構和迴轉機構的裝置。
(7)行走機構:採用液壓步履式,前進時四個支腿液壓缸支地撐起,下盤離地通過液壓系統驅動行走液壓缸實現樁機履靴前行,然後收起支腿落下.通過液壓缸收縮拉動底盤前行,經過如此反覆操作實現樁機前行。
(8)迴轉機構:由中速液壓馬達通過減速器帶動,在四個支腿液壓缸的配合下.可使樁機實現360。迴轉。
(9)卷揚鋼絲繩:卷揚機起吊頂部馬達、動力頭、螺旋鑽具時採用的鋼絲繩。
(10)桅桿立柱:鋼結構立柱.用於提升頂部馬達、動力頭、螺旋鑽具和起吊灌注樁鋼筋籠,中部連有液壓起落桿。
(11)起弔卷揚機:起吊動力頭、螺旋鑽具的動力裝置,包括電動機、卷揚裝置。
(12)液壓系統:鑽機所有液壓裝置的總成,包括液壓泵、液壓管路等。
(13)電氣系統:鑽機頂部馬達、動力頭的電氣控制裝置。
技術特點
螺旋鑽機施工過程中,採用螺旋鑽具鑽孔,通過鑽桿中心管灌注混凝土,適用於於輸電線路鐵塔小直徑灌注樁基礎施工,鑽孔、成樁作業效率高,具有以下特點:
(1)採用長螺旋鑽具成孔,可通過鑽桿中心管將混凝土注入孔底。既能鑽孔、成樁一次完成,也可用於乾法成孔、注漿置換等多種工法。
(2)動力頭採用雙驅動、大中心通孔的三環減速器,承載、過載能力高,結構緊湊、噪聲低、壽命長。
(3)樁架採用液壓系統,可自行起落桅桿立柱。行走、迴轉、對位準確、可靠,施工效率高,勞動強度低。
(4)樁機採用拖運與裝運相結合的方式,整體性強,場地轉移方便,費用低。
(5)整機的電氣、液壓、操縱、監視儀表均集中在駕駛室,司鑽人員操作方便。

