基本信息
社區實景行政區域: 天心區
項目位置: 天心書院路579號省政府西側明德中學西北角
交通狀況: 公車134路湘府路口站、104路1103廠站、805路保利花園站,捷運1號線省府站;書院南路。
建築類型: 高層
物業類別: 普通住宅,商鋪
開發商: 湖南融源置業有限公司
物業費: 待定
詳細信息
戶型圖產權年限: 70年
產權類型: 大產權房
開工時間: 20111208
容積率: 3.8
綠化率: 40%
總戶數: 701
建築面積: 78500平方米
占地面積: 28354.78平方米
價格信息
融源及第價格:均價5500元/平米
售賣信息
售樓處售樓地址: 天心區書院南路省政府西側
開盤時間: 2012年11月4日
入住時間: 2012年12月
項目介紹
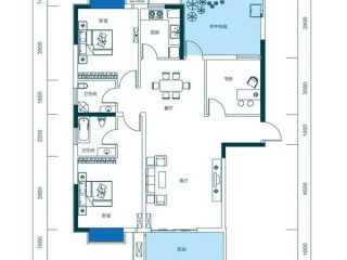
戶型圖融源及第由東西兩個地塊組成,其中東地塊由7棟18層的建築組成,整體建築坐北朝南,採用歐式新古典建築設計和新加坡園林設計風格。本項目由45到88㎡的公寓和73一房到139㎡的兩房、三房戶型組成。
項目地處省府西側、長株潭融城核心,對接即將建成的湘府路大橋直通大河西及洋湖垸公園;三縱三橫的路網系統方便出行,同時也為日後的繁榮發展打下了堅實基礎;
項目緊鄰湘江,居家即可坐擁自然景觀長廊,可謂是最具性價比的江景樓盤,另外周邊9大公園環繞,生態環境優越;
周邊配套齊全: 教育方面,1公里範圍內,幼稚園,國小,中學一應俱全,明德中學就在項目東側;文化方面,三館一中心緊鄰項目,為日後學習、休閒、參觀都提供了良好去處;商業及金融配套都較為齊備;
景觀設計:總體設計設計主次分明,多層次設計,總體規劃為外部形象景觀區和內部休閒景觀區。項目園林為東南亞風情園林——印象巴厘島。小區採用圍合式建築布局,中心園林部分完全採用人車分流,安全、寧靜,各式鮮花為主體的園林植被,一年四季花團錦簇;小區整體園林在設計上整個園林富有高差感,使人有柳暗花明又一村的感受,不同的植物種類組成各個園林節點,步隨景移,有以小見大的功效。
項目園林中心為小型的廣場活動區,包括一部分健身設施,休閒區與小型廣場,可供業主在小區內活動;綠化的道路除正常消防通道外,都以蜿蜒小道為主,讓小區內部園林不會一望到底;小區整體為人車分流設計,園林內沒有行車道。
印象巴厘島的熱帶風情園林,讓人足不出戶即可享受到豐富活潑的東南亞風情;
戶型設計在充分尊重長沙居住習慣的基礎上,保持戶型方正實用,通透明亮,內部設計處處體現細緻,各種空間為現代家庭生活提供了一個最佳的場所。
開發商簡介:由輝煌集團投資、湖南融源置業有限公司開發
輝煌集團是以北京輝煌世紀房地產開發有限公司為總公司,總公司北京輝煌世紀房地產開發有限公司成立於2000年4月,註冊資金6500萬元人民幣。輝煌集團已經成功開發並運作了多個房地產項目。其中包括已建成的北京輝煌時代大廈、輝煌國際廣嘗科利華大廈、四方大廈、東方電子大廈、輝煌.中半研發中心和已經著手實施的輝煌旺德沃莊園、輝煌湖南長沙國際城等項目。下屬子公司有:
北京輝煌益境房地產開發有限公司
北京中半輝煌光電高科技有限公司
北京輝煌風尚運動休閒有限公司
北京輝煌益境會議有限公司
湖南輝煌融鑫房地產開發有限公司
湖南輝煌嘉城房地產開發有限公司
湖南融源置業有限公司

