基本信息
社區實景行政區域: 句容
項目位置: 4A級茅山風景區內西臨茅山水庫生態區
交通狀況: 由寧杭高速二期的沿江高速出口進入風景區,或由滬寧高速的湯山出口經句容市區至句茅路,距離南京50-60公里,驅車約40分鐘
建築類型: 聯排
物業類別: 普通住宅,別墅
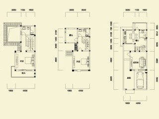
主力戶型: 140平米
開發商: 江蘇美加房地產開發有限公司
物業費: 2.9元/月/平米
詳細信息
戶型圖產權年限: 70年
產權類型: 大產權房
容積率: 0.78
綠化率: 42%
總戶數: 378
建築面積: 45000平方米
占地面積: 64822平方米
周邊配套
周邊配套周邊配套: 高爾夫發球嘗生態果園、美加國際精品酒店內含客房、餐廳、會議中心、高端SPA、網球嘗游泳池、戶外燒烤、茶社、露天吧、兒童樂園等。
內部配套: 美加國際精品酒店內含客房、會議中心、SPA、餐飲、健身、高爾夫等,一期商業一層作為超市經營。
車位數: 378
價格信息
美加東部假日價格:均價8000元/平米
售賣信息
售樓處售樓地址: 茅山4A級景區句茅路
售樓電話: 400-606-6969轉12178
開盤時間: 20101000
入住時間: 預計2013年1月31日(一期)
項目介紹
樣板間項目占地400畝,住宅及商業建築總面積4.5萬平米,住宅部分容積率為0.78,綠化率42%,其中一期占地116畝,已售罄交付在即,二期美院組團即將綻放。
美加東部假日全新的美院組團別墅,將久違的中國式庭院引入居所,以前庭、中庭和後院形成傳統的“兩進三院”:前庭出入有致,彰顯傳統禮儀;中庭接引雨露,陽光美景引進住宅;後院連線書房,營造私享空間。140平米居住尺度,生活空間精緻不侷促。

