百科概述
實景圖小區名稱:【昆明】真愛歲月
小區介紹:地處繁華地段,交通便捷,交通方便,周邊設施齊全
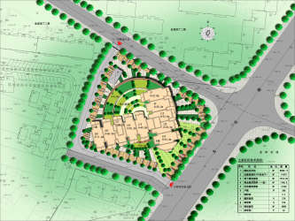
小區信息
實景圖行政區域:北市區
區域板塊:金星
小區地址:昆明二環北路金星園丁小區二期旁
均價:7388.9900
物業類型:普通公寓
建築類型:高層
物業費:0.85
詳細信息
實景圖建築面積:14473
占地面積:6036
容積率:2.4%
綠化率:36%
樓層狀況:共303套,高層
車位總數:200
總戶數:303
開發商:昆明黎榮聯盟房地產開發有限公司
物業公司:黎榮物業

地處繁華地段,交通便捷,交通方便,周邊設施齊全。
實景圖小區名稱:【昆明】真愛歲月
小區介紹:地處繁華地段,交通便捷,交通方便,周邊設施齊全
實景圖行政區域:北市區
區域板塊:金星
小區地址:昆明二環北路金星園丁小區二期旁
均價:7388.9900
物業類型:普通公寓
建築類型:高層
物業費:0.85
實景圖建築面積:14473
占地面積:6036
容積率:2.4%
綠化率:36%
樓層狀況:共303套,高層
車位總數:200
總戶數:303
開發商:昆明黎榮聯盟房地產開發有限公司
物業公司:黎榮物業
最近電視劇《歲月》正在北京衛視熱播,胡軍、梅婷領銜主演。這部電視劇主要描寫胡軍飾演的大學畢業生梁致遠剛走出社會時遇到的種種困難和迷茫,詮釋了要適應社會這...
簡介 劇情簡介 幕後製作 幕後花絮 看點點視劇《歲月》依據閻真的長篇小說《滄浪之水》改編而成,於2007年上映;由胡軍、梅婷主演。內容主要講述了研究生梁致遠(胡軍飾),走出大學校門走進工作單位...
劇情簡介 演職員 分集劇情 影評《橙色歲月》11集日本愛情片。影片以溫馨的畫面和動人的情節娓娓講述了大學最後一年,五個年輕人的生活,愛情,理想以及友情,這一年幾乎是每個人人生的轉折點,...
故事梗概 影片介紹 角色介紹 相關影評 歌曲介紹《歲月風雲》是香港電視廣播有限公司與中國中央電視台聯手拍攝為紀念香港主權移交十周年的六十集時裝商戰電視劇,由劉松仁、廖京生、苗僑偉、林峯、馮紹峰、佘詩曼...
概述 內容簡介 角色簡介 獲獎記錄 主題曲視劇《歲月》依據閻真的長篇小說《滄浪之水》改編而成,於2007年上映;由 胡軍、梅婷主演。內容主要講述了研究生梁致遠(胡軍飾),走出大學校門走進工作單位...
劇集概述 演職員 分集劇情 影評80%的人都至少經歷過一次失敗的戀情,而35%的人卻需要用一輩子來療傷。《重拾真愛》已經幫助數以億計的人們重新找到了愛情,也一定可以讓你獲得一個全新的、...
看點 內容簡介 作者簡介 媒體評論《淘金歲月》是由導演查爾斯·馬丁·史密斯所執導,由羅賓·丹尼、尼歐·貝提、亞當·斯多克,講述一聲演講的故事。
《淘金歲月》 故事梗概 精彩視點《真愛歲月》(日語:いとしき日々よ/羅馬拼音:Itoshikihibiyo/英文:beloved Days),日本男歌手平井堅的第34張單曲。2011年...
