基本信息
社區實景行政區域: 儀征市
項目位置: 儀征市楊冶路與盤七公路交叉處
交通狀況: 交通便利
建築類型: 板樓,獨棟別墅,雙拼,聯排
物業類別: 別墅
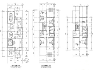
主力戶型: 六居室320-395平米
開發商: 揚州永達房地產開發有限公司
物業費: 1.2元/月/平方米
詳細信息
戶型圖產權年限: 70年
產權類型: 大產權房
開工時間: 20100000
容積率: 0.8
綠化率: 28.32%
總戶數: 56
建築面積: 62933平方米
占地面積: 78666平方米
價格信息
盤古楓林灣蘭亭價格:均價9000元/平米
售賣信息
售樓處售樓地址: 揚州市四望亭路399號
售樓電話: 400-606-6969轉80071
開盤時間: 20110000
入住時間: 現房

