為配合北京市昌平區沙河鎮規劃北區工程建設,北京市文物研究所與昌平區文化委員會分兩個階段對考古勘探發現的墓葬進行了發掘。第一階段發掘時間為2010年1 月2 日至13 日,發掘西晉時代墓葬3座、元代墓葬3 座、明清墓葬104 座。第二階段發掘時間為2010 年4 月1 日至30 日,發掘漢代窯址1 座、漢墓5 座、唐墓9 座、元墓2 座、明清墓2 座。在第一階段發掘結束之後,曾經對第一階段發掘的墓葬進行了簡要的報導,①另外對所發掘的西晉墓葬發表了簡報。②鑒於發掘的重要性,這裡對考古發掘的第二階段所發現的唐代墓葬簡報如下。
一、墓地概況
沙河鎮北距昌平衛星城13 公里,南距德勝門19 公里。這次發掘墓葬位於昌平區沙河鎮鞏華城之鎮遼門以東0.8 公里處的原東一村範圍內(圖一)。發掘區地勢平坦,北距北沙河約800 米,南距南沙河約320米,地理位置為東經116°17′26.87″、北緯40°7′43.28″,海拔高度48 米。地表曾為耕地、林地。唐代墓葬、漢代墓葬主要集中於發掘區域的北部,西晉墓葬與元代、明代墓葬主要集中於發掘區的中部,清代墓葬主要集中在發掘區的南部。
沙河唐墓二、唐代墓葬
共發掘9 座。編號為M112、M114 ~M120、M126。墓葬皆為磚室墓,均遭到破壞,頂部已無,由墓道、墓室組成,少數有甬道。墓道均朝南,墓門遭到破壞。墓室平面可分為長方形、方形、弧角長方形三類。棺床大多位於墓室北部,與墓壁相接。現選取M112、M114、M115 分別介紹如下。
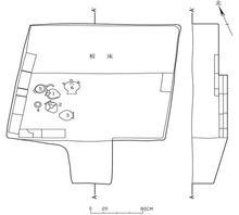
M112 位於5-1 地塊發掘區的西北部T1331探方的中部,西臨M113。開口於②層,打破生土層。為帶墓道豎穴土壙磚砌單室墓,南北向。南北總長2.86 米,東西總寬2.4 米,墓底距墓口深0.54 米。墓口與墓底同寬,墓壁整齊,墓底較平,內填花土,土質疏鬆。由墓道、墓門、墓室三部分組成(圖二)。
沙河唐墓墓道位於墓門的南端,平面呈長方形,底面為斜坡狀,坡長0.80 米。南北長0.86 米, 東西寬0.60 ~ 0.70 米, 深0.54米。內填花土,土質較硬。土層內含青灰磚塊等包含物。
墓門位於墓室的南端,因大部分受到破壞,底部磚已不見,其寬度、高度不詳。
墓室位於墓門的北端,平面近方形,東西長2.40 米,南北寬2 米,內填花土,土質較硬,土質內含大量從四壁及頂部坍塌的殘磚塊,墓室西南角緊挨西壁、南壁殘剩"L"形平砌磚2 ~ 3 層,墓室底部未見鋪底磚。棺床位於墓室的北部,長方形土台式,棺床東西長2.2 米,南北寬0.84 米, 高0.12米。棺床東南角有平砌磚一塊。經清理未發現骨架及棺木痕跡。
墓室的西南角近棺床處發現隨葬品6 件,由南至北分別為: 陶罐( M 1 1 2 : 1 、M 1 1 2 : 2 、M112:3)、陶碗(M112:4)、鐵鐎斗(M112:5)、三彩爐(M112:6)。
隨葬品
該墓出土器物6 件,大部殘損,已修復成形。其中陶器4 件,器型為罐、小碗兩類;三彩爐1 件;鐵鐎斗1 件。另提取墓磚2 塊在此敘述。
陶罐3 件。皆泥質灰陶,輪制。器形較小。標本M112:1, 殘,直口,圓唇,短頸,豐肩,鼓腹,下腹漸收,平底。素麵,器身有明顯的修坯旋痕。口徑6.9cm,最大腹徑14.1cm,底徑7.4cm,高14.3cm(圖三,1);標本M112:2, 殘,直口,尖圓唇,短頸,豐肩,鼓腹,下腹漸收,平底。素麵,器身有明顯的修坯旋痕。口徑6.3cm,最大腹徑12.4cm,底徑5.8cm,高14cm(圖三,2);標本M112:3, 殘,直口,方唇,短頸,豐肩,鼓腹,下腹漸收,平底。素麵,器身有明顯的修坯旋痕,中腹部亦有凹弦紋半周。口徑6.5cm,最大腹徑12.6cm,底徑6cm,高13.6cm(圖三,3;圖八)。
沙河唐墓圖三 M112出土器物 1~3.陶罐(M112:1、M112:2、M112:3)4.陶碗(M112:4)5.三彩香爐(M112:6)6.鐵鐎斗(M112:5)
沙河唐墓陶碗1 件。標本M112:4,殘,泥質灰陶,輪制。敞口,淺弧腹,小平底。口徑9.2cm,底徑3.1cm,高3.1cm(圖三,4;圖九)。
三彩爐1 件。標本M112:6,殘,敞口,撇沿,圓唇,短束頸,豐肩,圓鼓腹,圓餅形小平底,三獸蹄足勻稱接於下腹,微外撇,指爪清晰,形象生動。口沿、頸施一層醬釉, 肩、腹施醬、綠、白三彩釉,三彩色釉互相浸染,動感瑩潤,繽紛艷麗。釉面布滿細密開片紋。施釉不及底。頸部飾一周凸棱紋,肩部和下腹部分別飾兩周及一周凹弦紋。口徑11.5cm,最大腹徑18cm ,底徑6cm,通高13.8cm(圖三,5 ;圖十)。
鐵鐎斗1 件。標本M112:5, 嚴重銹殘。器型為三足鼎式。敞口,沿外撇,深腹,平底,三扁方足勻稱附於外腹部,上腹一端鑄彎曲柄,柄似鴨子的頸、頭、喙部,對稱另一端為半圓花邊形尾部。口徑15.9cm,底徑13.3cm,鐎斗高6.7cm,通高25.9cm,柄高14.2cm(圖三,6 ;圖十一)。
繩紋磚2 塊。皆泥質灰陶, 模製。標本M112:7, 殘, 平面呈長方形, 正面飾繩紋23 道,背面粘有白灰顆粒點。長31.3cm,寬15cm,厚4.5cm;標本M112:8,殘,平面呈長方形,正面飾繩紋24 道,背素麵無紋。長31.5cm,寬15cm,厚5.2cm。
M114 位於5-1 地塊發掘區的西北部T1232 探方的東北部,南臨M112。開口於②層下,打破③層及生土層,為帶墓道長方形豎穴土壙磚砌單室墓,南北向。南北長3.62 米,東西寬2.6 米,墓口距地表深0.60米,由墓道、墓門、墓室三部分組成(圖四、圖五)。
圖四 M114平、側面圖 出土器物:1.陶罐1件2.陶罐1件3.陶罐1件4.陶罐1件5.陶罐1件6.陶碗1件7.鐵鐎斗1件8.三彩爐1件
墓道位於墓門的南側,平面呈長方形,為豎穴土壙式。南北長1.3 米,東西寬0.68 ~ 0.72 米。墓壁整齊,部分呈斜坡狀,斜坡長0.90 米。墓底距墓口深0.80米,內填花土,土質較硬。
墓門位於墓道的北側、墓室的南側,平面呈長方形, 東西寬0.72 米, 進深0.40 米。兩壁用青灰磚平、斗錯縫砌制而成,上部已被破壞,殘存高0.80 米,總計十層,其中底部一至六層和八、九層為平磚所砌,第七層與第十層用斗磚所砌。用磚規格為: 長0.35 米,寬0.17 米,厚0.05 米。
墓室位於墓門的北端,平面呈長方形,南北寬2 米,東西長2.6 米。四壁用青磚"二平一豎"疊壓錯縫砌築,豎磚微斜,頂部已被破壞,僅留下四壁部分磚,殘存高0.68 米。墓室的北部設定有長方形棺床,東西長2.18 米,南北寬1.2 米,殘存高0.30米。棺床上有鋪底磚,為平、側平鋪。用磚規格為:長0.35 米,寬0.17 米,厚0.05 米。在清理過程中未發現骨架。
在墓室內發現隨葬品8 件。其中在墓室東南角置有灰陶罐2 件(M114:4、M114:5);在墓室的西南角置有灰陶罐3 件(M114:1、M114:2、M114:3), 陶碗1 件(M114:6),鐵鐎斗1 件(M114:7),三彩香爐1 件(M114:8)。
沙河唐墓隨葬品
該墓出土器物8 件,大部保存較好。其中陶器6 件,器型為罐、小碗兩類;三彩爐1 件;鐵鐎斗1 件。另提取墓磚標本2 塊在此敘述。
陶罐5 件。皆泥質灰陶,輪制。器形規整。標本M114:1, 完整,敞口,撇沿,圓唇,短束頸,溜肩,長圓腹,近底漸收,平底,素麵,器內外有明顯的修坯旋痕。口徑10.1cm,最大腹徑16.1cm,底徑6.6cm,高18cm(圖六,3);標本M114:2, 完整,敞口,撇沿,圓唇,短束頸,溜肩,長圓腹,近底漸收,平底,素麵,器內外有明顯的修坯旋痕。口徑10.5cm,最大腹徑16.7cm,底徑6.8cm,高18.6cm(圖六,6);標本M114:3, 完整,敞口,撇沿,圓唇,短束頸,溜肩,長圓腹,近底漸收,平底,素麵,器內外有明顯的修坯旋痕。口徑10.6cm,最大腹徑17cm,底徑6.9cm,高18.9cm(圖六,2);標本M114:4, 完整,敞口,撇沿,圓唇,短束頸,溜肩,長圓腹,近底漸收,平底,素麵,器內外有明顯的修坯旋痕,局部有裂紋痕。口徑9.6cm,最大腹徑15.2cm, 底徑6.7cm, 高17cm(圖六,4);標本M114:5, 殘,敞口,撇沿,圓唇,短束頸,溜肩,長圓腹,近底漸收,平底,素麵,器內外有明顯的修坯旋痕。口徑10.4cm,最大腹徑16.4cm,底徑6.9cm,高18.5cm(圖六,1)。
沙河唐墓圖六 M114出土器物 1~4、6.陶罐(M114:5、M114:3、M114:1、M114:4、M114:2)5.三彩香爐(M114:8)7.陶碗(M114:6)
陶碗1 件。標本M114:6, 完整,泥質灰陶,輪制。敞口,淺弧腹,圓餅形底足。口徑9.9cm,底徑4.5cm,高3.5cm(圖六,7)。
三彩爐1 件。標本M114:8, 殘,敞口,撇沿,圓唇,短束頸,豐肩,鼓腹,底漸收,圓餅形平底,三獸蹄足勻稱接於下腹,微外撇,指爪清晰,形象生動。口沿、頸施一層褐綠色釉,肩、腹施醬、綠、白三彩釉,以白、綠為主色調,施釉不及底,局部脫落。肩部飾綠釉連弧紋,殘見六組。局部釉面布滿細密開片紋。上腹部飾一周凸棱紋,下腹部露磚紅色胎,見數周凹弦紋。口徑11.6cm,最大腹徑18.1cm,底徑6.5cm,通高14cm(圖六,5)。
鐵鐎斗1 件。標本M114:7, 嚴重銹殘。器型為三足鼎式。敞口,沿外撇,深腹,平底,三扁方足勻稱附於外腹部,上腹一端鑄彎曲柄,柄形似鴨子的頸、頭、喙部,對稱另一端為半圓花邊形尾部。一側口沿部有一凹槽形短流。殘高12.5cm。
繩紋磚2 塊。皆泥質灰陶,模製。標本M114:9, 殘, 磚正面飾粗繩紋26 道,縱向排列, 背面素麵無紋。長34.4cm,寬16.5 ~ 17 c m,厚5 ~ 5.5cm ; 標本M114:10, 殘, 磚正面飾粗繩紋26 道,縱向排列, 背面素麵無紋。長34.4cm, 寬17cm,厚4.7 ~ 5cm。
M115 位於5-1 地塊發掘區的西北部、T0833 探方的北中部,西臨M112。開口於② 層下,打破③層及生土層,為帶墓道豎穴土壙磚砌橢圓形單室墓,南北向。南北寬2.90 米,東西長3 米,墓口距地表深0.60 米。內填花土,土質較硬。土層內含大量從上部坍塌下來的碎殘磚塊。由墓道、甬道、墓門、墓室四部分組成(圖七)。
圖七 M115平、剖面圖 出土器物:1.三彩爐1件2.陶罐1件
沙河唐墓墓道位於甬道的南端,平面呈長方形,南北長1.36 米, 東西寬0.80米,內填花土,土質較硬。底部為台階狀,有三級台階,高寬不等,由上至下分別為:第一級台階南北寬0.50 米, 東西長0.80米,高0.20 米;第二級台階南北寬0.34 米,東西長0.80 米,高0.12 米;第三級台階南北寬0.26 米,東西長1.30 米,高0.18 米。
甬道位於墓門的南端,與其相連。東西寬0.84 米,進深0.5 米,兩壁均為"三順一豎"所砌,局部砌築有斗磚。現存高度為0.60 米。
墓門位於墓室的南端,東西寬0.84 米,進深0.34 米。兩壁均為"三順一豎"所砌。因上部坍塌,現存高度為0.60 米。
墓室位於墓門的北側與其相連線,其形狀橢圓形,內填花土,土層內夾雜大量從上部及四壁坍塌下來的殘青灰磚塊。墓室中部殘留有平磚,錯縫平鋪而成。墓室四壁均為平豎磚所砌築。平磚砌法,由底向上一、二、三層不等,殘見豎磚二層,現殘存高度0.60 米。棺床位於墓室北部,棺床南壁為東西平磚所砌,其東西長3.10米,南北寬1.54 米,上部未見鋪底磚,未見棺木及骨架。
在墓室南部平鋪青磚上發現隨葬品2件。其中墓室西南部及中部清理出殘三彩爐1 件(M115:1),同一層內東南部有殘陶罐1 件(M115:2)。
沙河唐墓隨葬品
該墓出土器物 2 件。其中陶罐(不可復原)1 件;三彩爐(已修復)1 件。另提取墓磚標本2 塊在此敘述。
陶罐1 件。標本M115:2,泥質灰陶,罐底殘,底徑9.8cm,殘高14cm。
三彩爐1 件。標本M115:1, 殘, 已修復,敞口,撇沿,方圓唇,短束頸,豐肩,鼓腹,底漸收,圓餅形平底,三獸蹄足勻稱接於下腹,微外撇,指爪清晰。口沿、頸施一層醬色釉,肩、腹施醬、綠、褐三彩釉,施釉不及底,三色釉玻璃質感強,瑩潤光亮。釉面布滿細密開片紋。底部露磚紅色胎,見數周凹弦紋。口徑14cm,最大腹徑21.5cm ,底徑6.9cm,通高16.5cm(圖十二)。
三、結 語
簡報中所介紹的幾座墓葬,可根據其器物特徵和墓葬形制來判斷其年代。M112出土灰陶罐與前、後朱各莊遺址③唐代墓葬M3 出土的灰陶罐形制近似,M114 出土灰陶罐(M114:2)與北京亦莊X10 號地④唐代墓葬M2 出土灰陶罐(M2:1)形制接近。M115的墓室形制為抹角長方形,這種形制在北京地區的唐代墓葬中多見。綜上,M112 等墓葬判定為唐代墓葬。
昌平區沙河鎮位於燕山山脈山前平原區,是一個歷史悠久的古鎮,因溫榆河上游支流南沙河、北沙河在此交匯而得名,是具有輝煌歷史的古鎮。明朝遷都北京後,明成祖隨即在沙河建行宮。此次考古發掘中所發現的漢代至清代各個時代的墓葬,為研究沙河鎮歷史的延續性提供了重要的資料。
發掘:於 璞 韓鴻業
器物修復:古艷兵
繪圖:劉曉賀
攝影:王殿平 王宇新
執筆:於 璞 韓鴻業
①於璞、韓鴻業:《北京昌平沙河鎮發現西晉、元明清墓葬群》,《中國文物報》2010 年7 月2 日4 版。
②北京市文物研究所、昌平區文化委員會:《北京市昌平區沙河鎮西晉墓葬發掘簡報》,《北京文博》2010 年第3 期。
③北京市文物研究所編:《北京段考古發掘報告集》,科學出版社,2008 年4 月。
④北京市文物研究所編:《北京亦莊X10 號地》,科學出版社,2010 年12 月。
