工作原理
當水池或水塔內水位下降,浮球閥開啟排水時,進水管內有壓水將閥內活塞托起,密封面打開,閥門即開啟供水,當水位上升到控制閥時,浮球閥關閉,活塞下移將密封面封閉,閥門即停止供水。
技術參數
使用介質:潔淨水
使用壓力:H142X-4T-A、H142X-4-A:0.05MPa~0.4MPa
H142X-10-A:0.05MPa~1MPa
介質溫度:≤60℃
性能特點
1、運用液壓原理控制,結構新穎合理。
2、工作平穩可靠。在規定的使用壓力範圍內,可保證無水錘衝擊。
3、重量輕,體積小。
4、安裝維修方便。
安裝形式及注意事項
將該閥垂直固定在進水管上,然後將控制管、截止閥和浮球閥連線鏇緊在該閥上即可。該閥進水管和出水管連線法蘭H142X-4T-A為0.6MPa標準法蘭;H142X-10-A為1MPa標準法蘭。進水管直徑應大於或等於閥門公稱通徑,出水口應低於浮球閥。浮球閥安裝應距離水管一米以上;在水箱內出水管高於水位線處鑽一小孔,以防直空回水。使用時,截止閥應全開,如同一水池安裝二隻以上閥則應保持同一水平面。因主閥關閉要滯後浮球閥關閉約30~50秒,故水箱要有足夠的空餘容積,以防溢水。為防止雜質、砂粒進入閥內引起工作失靈,閥前應裝過濾器。如安裝在地下水池,則應在地下泵房安裝報警裝置。
液壓水位控制閥體積小,安裝簡便,啟用靈敏度高,水頭損失小無水錘現象,由於小浮球控制能大大提高水塔利用率,對於新建水塔由於浮球體積減少而使水塔上部留給浮球自由浮動所需高度減少降低水塔造價,克服老式桿浮環閥體積大、易損壞、工作壓力低、大量溢水等弊病,是新建水塔及更換老式浮球閥最理想最合適的產品。
H142X液壓水位控制閥主要外形連線尺寸單位:mm
| DN | 40 | 50 | 65 | 80 | 100 | 125 | 150 | 200 | 250 | 300 | 350 |
| L | 107 | 115 | 125 | 135 | 146 | 165 | 180 | 215 | 255 | 285 | 325 |
| H | 235 | 243 | 268 | 280 | 307 | 358 | 400 | 490 | 576 | 663 | 750 |
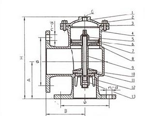
H142X液壓水位控制閥的結構圖如下:

