基本信息
交通狀況:嶽麓區學士路與象嘴路交匯處,公交乘坐912、908路到學士路口站(湖南中醫藥大學的下一站)下車即可。
建築類型:高層
物業類別:普通住宅
主力戶型:二居81平方米,三居132平方米
開發商:湖南繼善投資發展有限公司
物業公司:廣州長建物業管理有限公司
物業費:1.2元/月/平方米
價格信息
均價:4800
起價:4800
價格說明:均價4800元/平方米
付款方式:銀行按揭貸款,公積金貸款,一次性付款
歷史價格:
| 價格時間 | 最高價 | 均價 | 最低價 |
| 2012年08月13日 | -- | 4800 | -- |
| 2012年07月24日 | -- | 4600 | -- |
| 2012年07月04日 | -- | -- | 3988 |
樓盤詳情
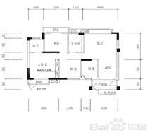
戶型圖產權年限:70年
容積率:1.55
綠化率:40
總戶數:1959
建築面積:450000平方米
占地面積:221331平方米
配套信息
周邊商業:小區商業
周邊公園:嶽麓山、靳江河、洋湖垸濕地、大王山、白鶴生態區
周邊醫院:小區配套診所
周邊學校:學校:湖南醫藥大學;
周邊公共運輸:嶽麓區學士路與象嘴路交匯處,公交乘坐912、908路到學士路口站(湖南中醫藥大學的下一站)下車即可。
售賣信息
周邊圖開盤時間:2011年12月1日
入住時間:2012年8月
銷售情況:在售
項目介紹
項目總占地面積332畝,總建築面積45萬平米,是以高層為主,多層、公寓、商業為輔的高尚人文社區。項目的建築形式與戶型設計注重均好性與舒適性,最大限度的親近陽光與汲納景觀資源,建築風格使居住者情感回歸於安靜與自然。園林景觀,遵循自然高貴、簡歐風情、生態休閒的原則,營造出健康、運動、輕鬆、優雅的格調生活。社區內部規劃細緻,幼稚園、主題生活廣場、泛會所、露天游泳池、英倫風情商業街等配套完善。坐擁市區的繁華與新區的生態及巨大升值前景的楓華府第。楓華府第定位為“精神友居,人文標識”楓華府第所在的含浦組團已正式納為嶽麓新城的規劃範圍。作為大學城的發展用地以及與之配套的生活居住用地,園區規劃建設五星級賓館1家,6所高校、7所中學,17所國小(包括師大附中新校區)、4所醫院、5個文化文體廣場和7個綠化廣場,捷運三號線也在緊張籌備中。

