內容
建築立面圖為使立面圖外形更清晰,通常用粗實線表示立面圖的最外輪廓線,而凸出牆面的雨蓬,陽台,柱子,窗台,窗楣,台階,花池等投影線用中粗線畫出,地坪線用加粗線(粗於標準粗度的1.4倍)畫出,其餘如門,窗及牆面分格線,落水管以及材料符號引出線,說明引出線等用細實線畫出.
建築立面圖的比例與平面圖一致,常用1:50,1:100,1:200的比例繪製.
其中建築立面圖是在與房屋立面相平行的投影面上所做得正投影圖,簡稱立面圖.其中反映主要出入口或比較顯著地反映出房屋外貌特徵的那一面立面圖,稱為正立面圖。其餘的立面圖相應稱為背立面圖,側立面圖。通常也可按房屋朝向來命名,如南北立面圖,東西立面圖。建築立面圖大致包括,南北立面圖,東西立面圖四部分,若建築各立面的結構有絲毫差異,都應繪出對應立面的立面圖來詮釋所設計的建築。
命名方式
1.可用朝向命名,立面朝向哪個方向就稱為某方向立面圖;
2.可用外貌特徵命名,其中反映主要出入口或比較顯著地反應房屋外貌特徵的那一面的立面圖;
3.可以立面圖上首尾軸線命名。
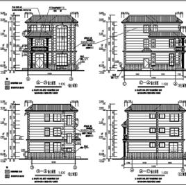
圖示
建築立面圖 CAD版1.畫出室外地面線及房屋的勒腳、台階、花池、門窗、雨棚、陽台、室外樓梯、牆柱、檐口、屋頂、雨水管、牆面分割線等內容;
2.標註出外牆各主要部位的標高。如室外地面、台階頂面、窗台、窗上口、陽台、雨棚、檐口、女兒牆頂、屋頂水箱間及樓梯間屋頂等的標高;
3.注出建築物兩端的定位軸線及其編號;
4.標註引索編號;
5.用文字說明外牆面裝修的材料及其做法。
識讀
1.了解圖名和比例;
2.了解首尾軸線及編號;
3.了解各部分的標高;
4.了解外牆做法;
5.了解各構配件。

